مسابقه طراحی ساختمان مسکونی اریکا 2

2

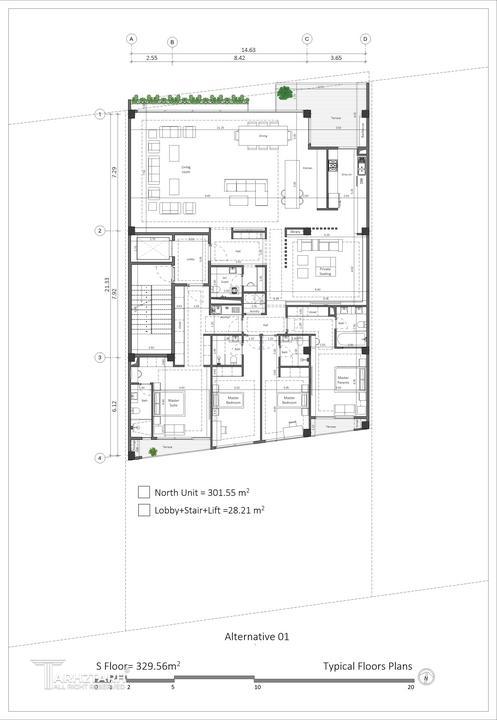
اطلاعات پروژه

گروه معماری آرکسل

نوع مسابقه: طراحی مسکونی
سال انجام پروژه : 1404
نقش: طراح
موقعیت : مشهد
متراژ زیربنا : 2800
مساحت زمین : 499
کارفرما : سعید هاشم‌زاده

خدمات ارائه شده توسط طراح

خدمات طراحی و کانسپت
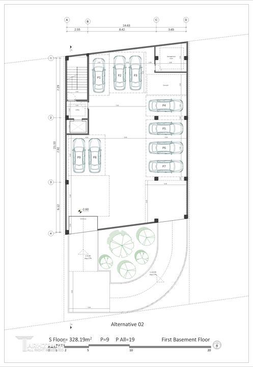
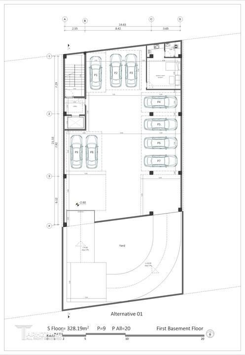
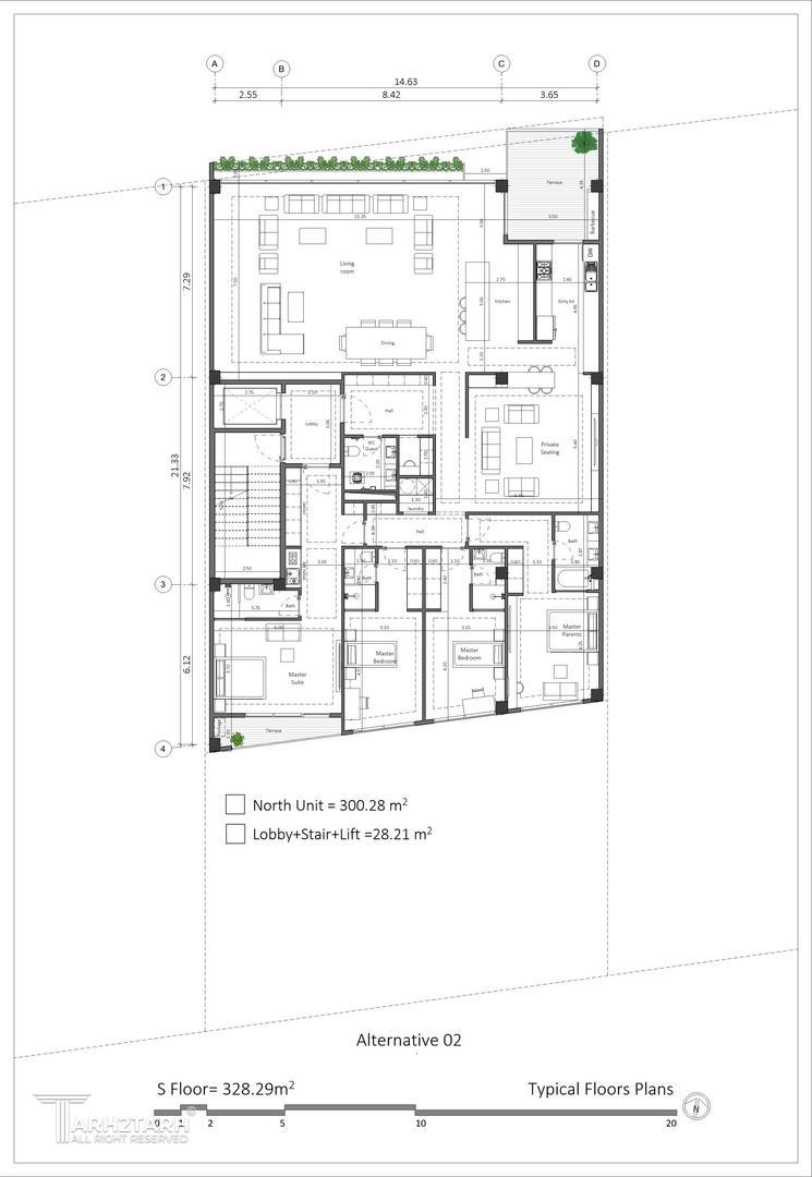
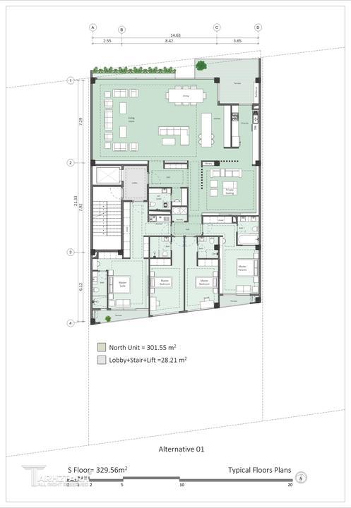
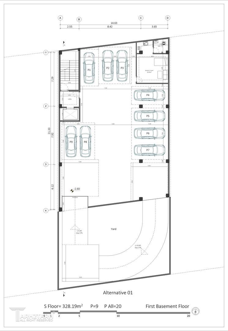
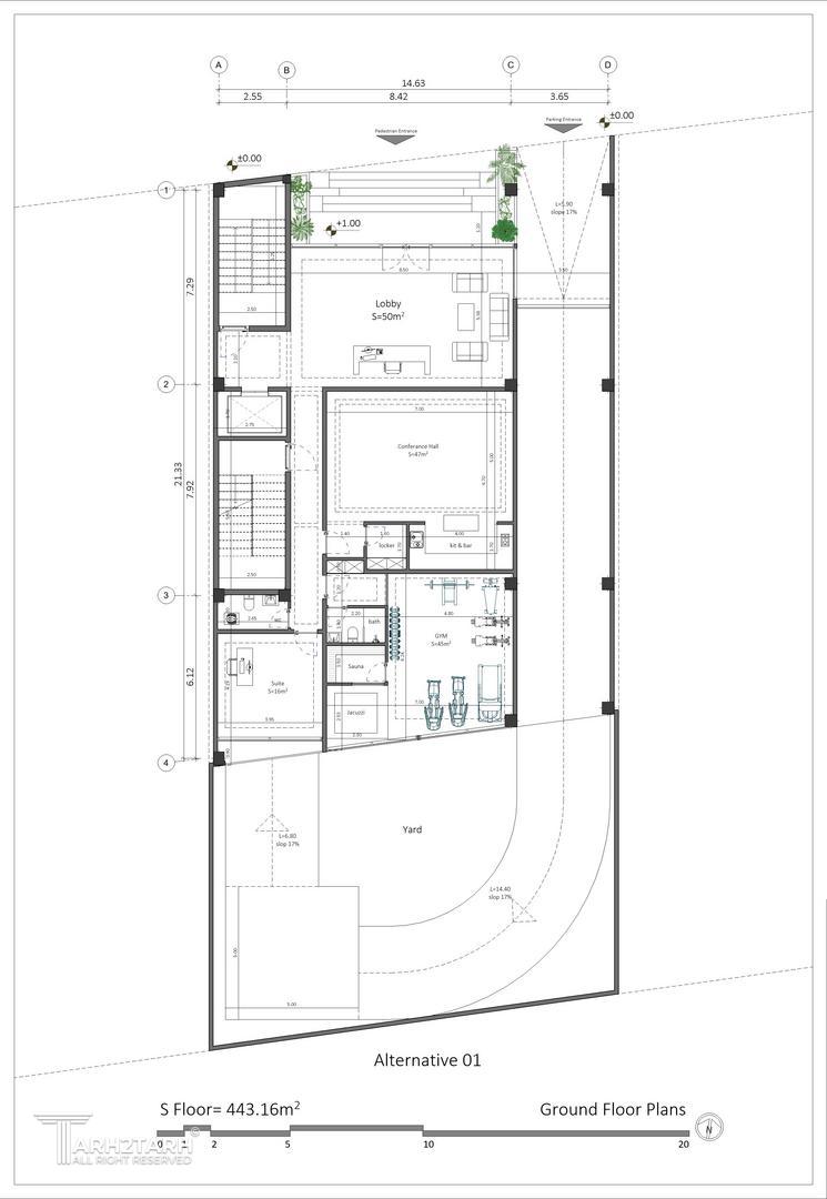
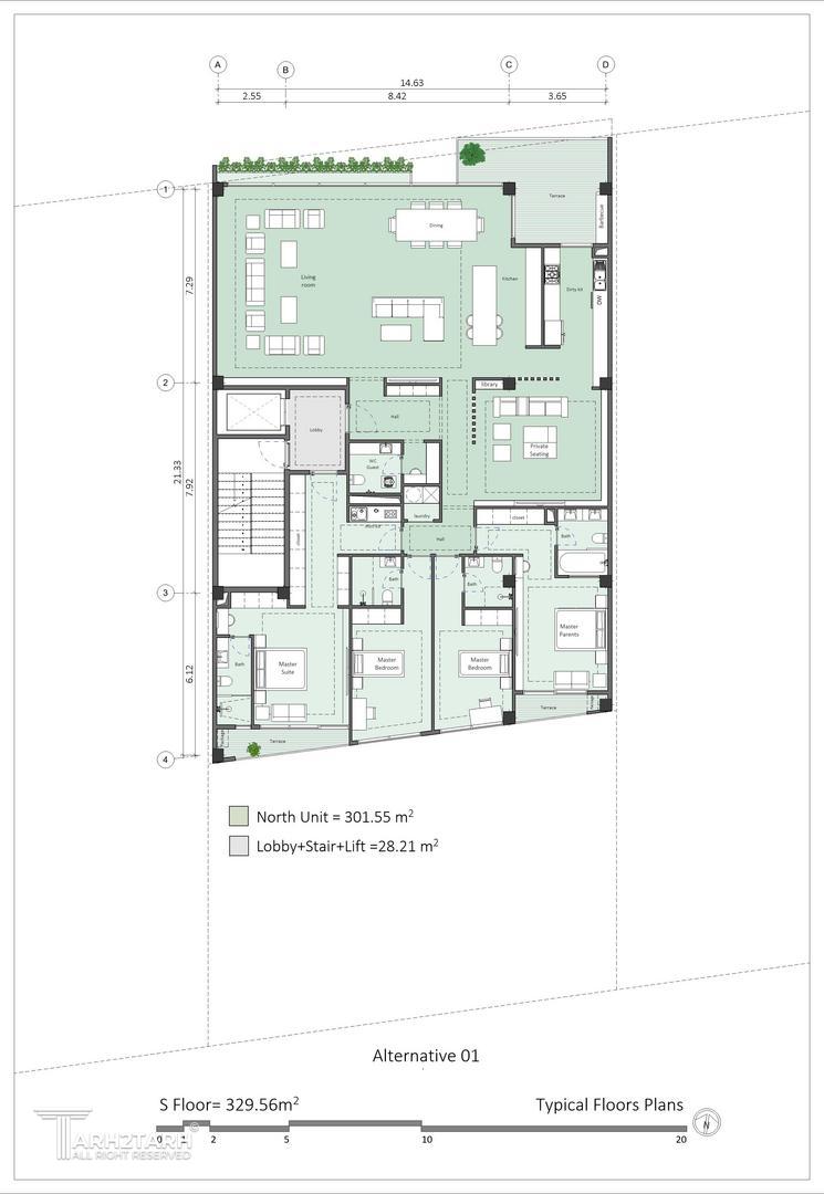
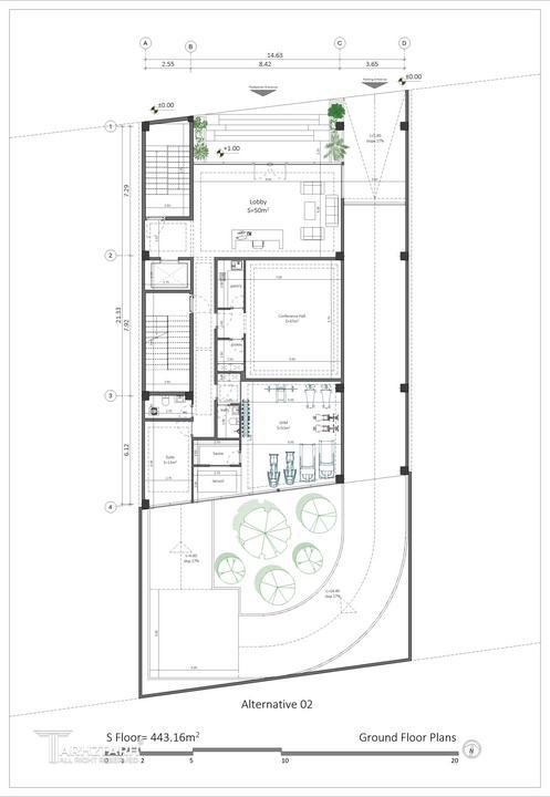
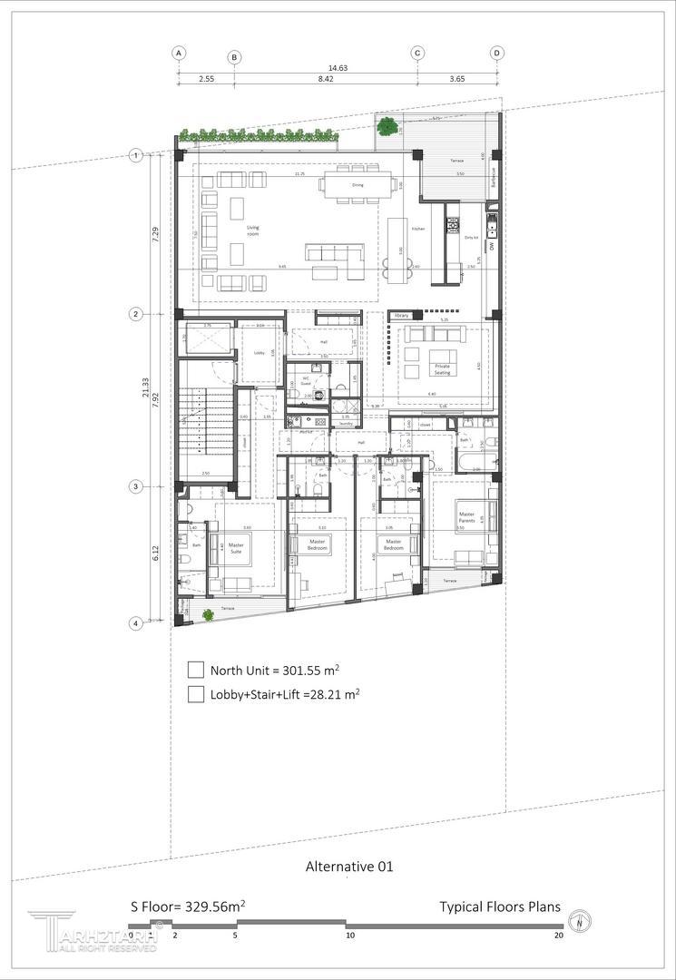
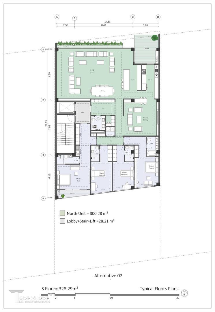
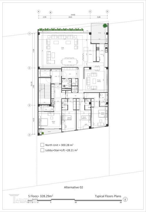
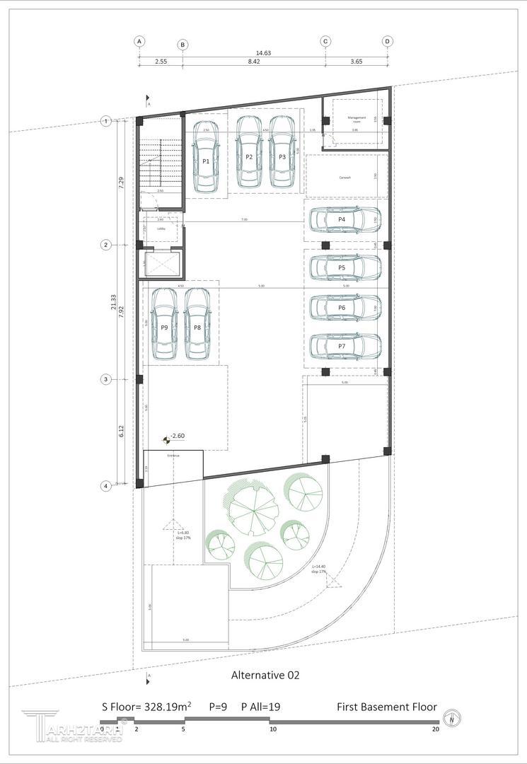
طراحی پلان (نقشه معماری) فاز 1
طراحی نما
طراحی منظر، فضای سبز، لند اسکیپ، روف گاردن و محوطه
طراحی نورپردازی
طراحی کانسپت (معماری)

موقعیت مکانی پروژه

avatar
سعید هاشم‌زاده
طراحی پارکینگ و نما خوب بود. ولی طراحی پلان عالی بود. با تشکر از شما
2 ماه پیش
avatar
ابراهیم احمدزاده
پلان خوب است
2 ماه پیش
پیشنهاد و بازخورد