نفر دوم مسابقه طراحی مسکونی ساختمان اریکا (ظفر)

1

اطلاعات پروژه

ARMINARMANSTUDIO

نوع مسابقه: طراحی مسکونی
سال انجام پروژه : 1403
نقش: طراح
موقعیت : تهران
متراژ زیربنا : 1570
مساحت زمین : 278
کارفرما : سعید هاشم‌زاده

خدمات ارائه شده توسط طراح

خدمات طراحی و کانسپت
طراحی منظر، فضای سبز، لند اسکیپ، روف گاردن و محوطه
طراحی نورپردازی
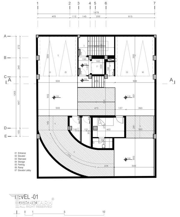
طراحی پلان (نقشه معماری) فاز 1
طراحی نما

موقعیت مکانی پروژه

avatar
نیوشا محلوجی
جزئیات طراحی عالیه 🌷
8 ماه پیش
پیشنهاد و بازخورد