نفر اول مسابقه طراحی مسکونی ساختمان اریکا (ظفر)

0

اطلاعات پروژه

چارچوب استودیو

نوع مسابقه: طراحی مسکونی
سال انجام پروژه : 1403
نقش: طراح
موقعیت : تهران
متراژ زیربنا : 1570
مساحت زمین : 278
کارفرما : سعید هاشم‌زاده

خدمات ارائه شده توسط طراح

خدمات طراحی و کانسپت
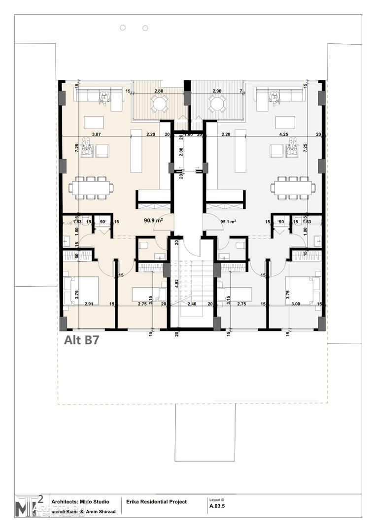
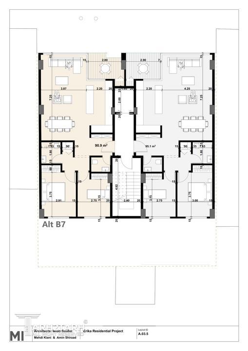
طراحی پلان (نقشه معماری) فاز 1
طراحی نما
طراحی منظر، فضای سبز، لند اسکیپ، روف گاردن و محوطه
طراحی نورپردازی

موقعیت مکانی پروژه

پیشنهاد و بازخورد