اطلاعات پروژه

کارفرما : شرکت ستاوندتیر - میلاد روح الهی
نوع پروژه : طرح اجرایی
وضعیت : در حال اجرا
کاربری : ساختمان مسکونی ویلا آپارتمان
متراژ زمین : 400
متراژ زیربنا : 2400
سبک‌های طراحی: مدرن

خدمات ارائه شده توسط طراح

خدمات طراحی و کانسپت
دکوراسیون داخلی
طراحی منظر، فضای سبز، لند اسکیپ، روف گاردن و محوطه
طراحی نورپردازی
طراحی مبلمان سفارشی
طراحی گرافیک محیطی
طراحی کابینت
طراحی درب
طراحی آبجکت
طراحی کانسپت (معماری)
طراحی نقشه فاز دو معماری
طراحی پلان (نقشه معماری) فاز 1
طراحی نما
طراحی داخلی
خدمات مشاوره و امکانسنجی
مشاوره و برنامه‌ریزی تعیین کاربری پروژه
مشاوره انتخاب مصالح و تکنولوژی‌های نوین ساختمانی
خدمات فنی و مهندسی
اخذ تاییدیه نقشه پلان
اخذ تاییدیه نما
رندرینگ و خدمات فنی
مدل سازی
انجام تغییرات نقشه معماری
کنترل و اصلاح نقشه‌های معماری، سازه و ...
تهیه نقشه معماری فاز دو جهت ارائه به سازمان نظام مهندسی
تهیه نقشه معماری فاز دو اجرایی
تهیه نقشه‌های اجرایی پروژه برای دریافت مجوزهای لازم (شهرداری، نظام مهندسی و …)
خدمات دیگر
رندرینگ
عکاسی معماری
طراحی و چاپ کاتالوگ معماری
طراحی هویت برند، نام نشان تجاری برای پروژه‌های ساختمانی، لوگو

توضیحات پروژه

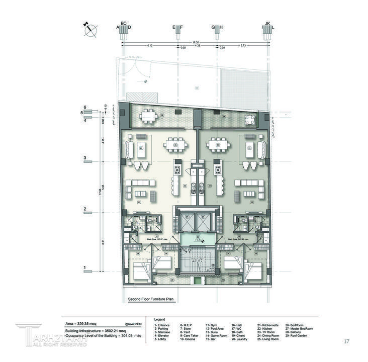
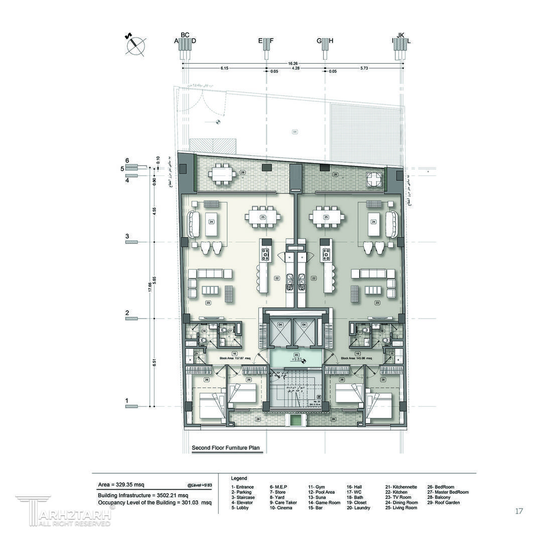
پروژه ویلا آپارتمان تنکابن، در زمینی به مساحت 398/00 متر مربع در شهرستان تنکابن استان مازندران تعریف شده‌است زمین پروژه، از جنوب به سمت کوچه 12 متری با دید جنگل در ارتفاع و از شمال به جاده ساحلی با دید کامل دریا منتهی بوده و از شرق و غرب به ویلاهای مسکونی دو طبقه متصل است. و زمین دارای شیب حدودی 8 درصد به سمت شمال می‌باشد کل ساختمان، در قالب 11 طبقه - یک طبقه زیر زمین و 10 طبقه روی زمین - شامل 11 واحد مسکونی از متراژ 140 متر مربع تا 366 متر مربع با تراس‌های بزرگ و قابل چیدمان رو به دریا، 15 عدد پارکینگ و انباری و همچنین امکامات مشاعی کامل شامل لابی، انباری، سرایداری، استخر، سونا، سالن ورزشی، سالن بازی، سینما خانگی و بام سبز تعریف شده‌است.

موقعیت مکانی پروژه

نظرات
پیشنهاد و بازخورد