اطلاعات پروژه

نقش : سرپرست تیم طراحی
نوع پروژه : کانسپت

توضیحات پروژه

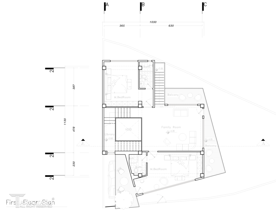
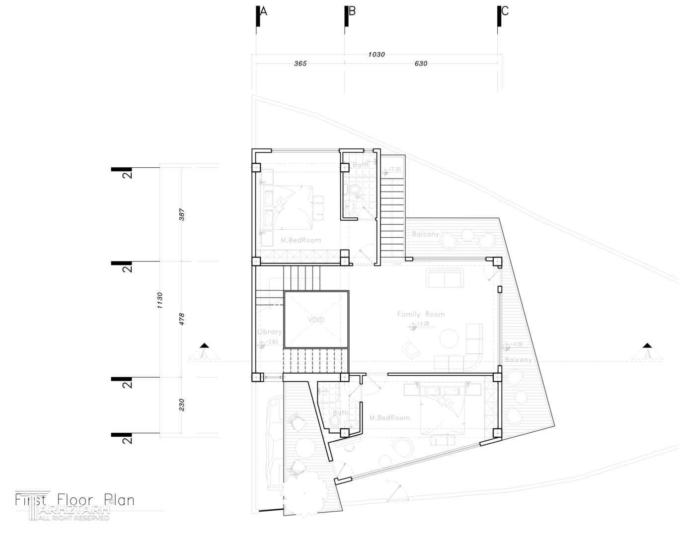
طراحی ویلای نور بر رویکردی مدرن استوار است با حجم های خالص و خطوط ساده که بر وضوح فضایی و شفافیت تاکید دارند. ایجاد ارتباط روان میان فضای داخلی و طبیعت پیرامون برقرار شده است.

نظرات
پیشنهاد و بازخورد