مسابقه طراحی پلان فناخسرو

0

اطلاعات پروژه

امید برزانیان

نوع مسابقه: طراحی مسکونی
سال انجام پروژه : 1401
نقش: طراح
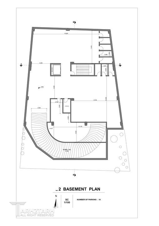
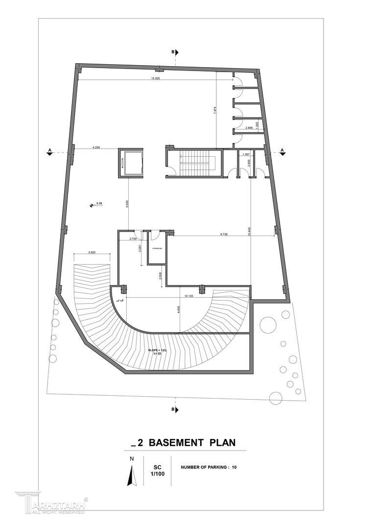
موقعیت : تهران
متراژ زیربنا : 4000
مساحت زمین : 750
کارفرما : معین افضل خانی

خدمات ارائه شده توسط طراح

خدمات طراحی و کانسپت
طراحی پلان (نقشه معماری) فاز 1

موقعیت مکانی پروژه

پیشنهاد و بازخورد