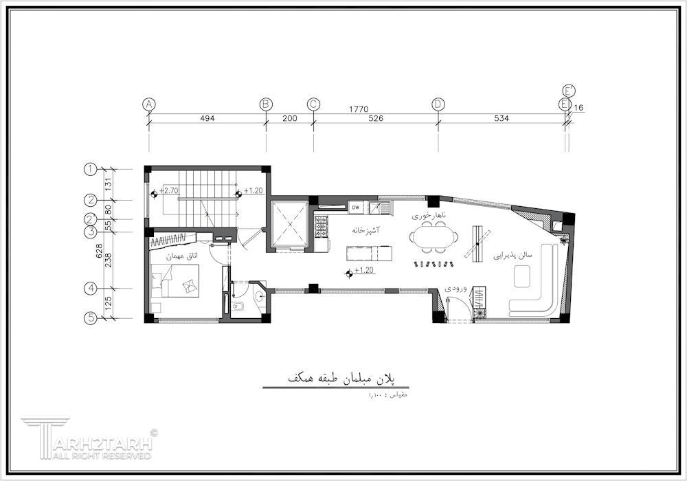
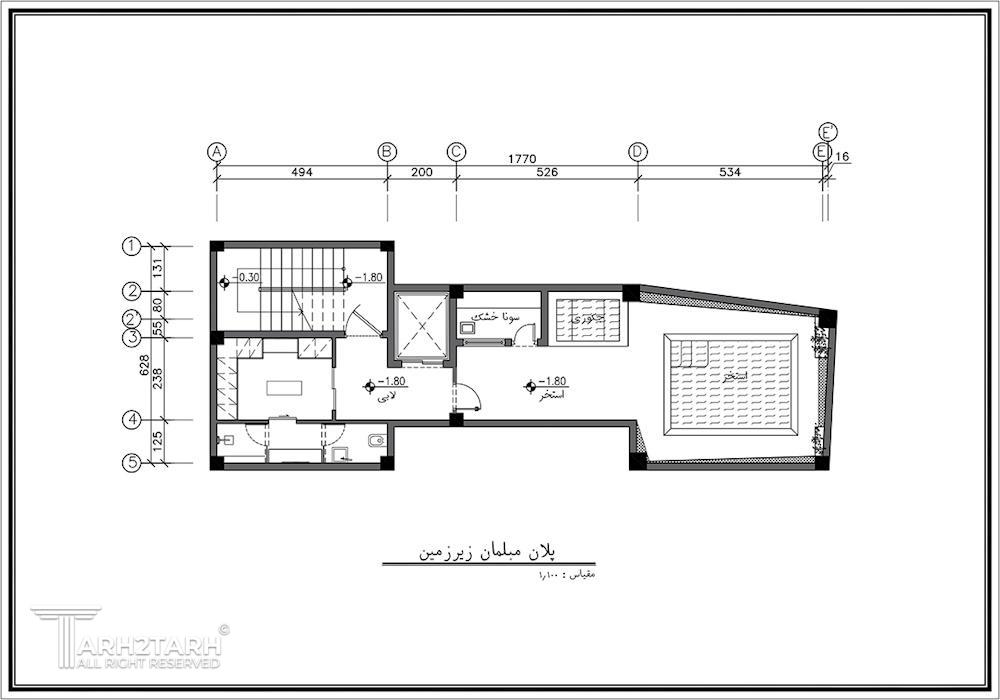
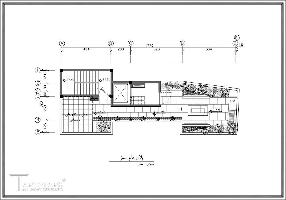
مسابقه طراحی داخلی فرید (نیاوران)

0

اطلاعات پروژه

علیرضا فیضی

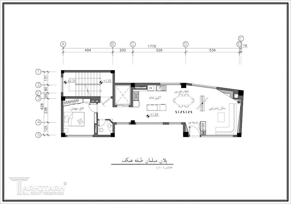
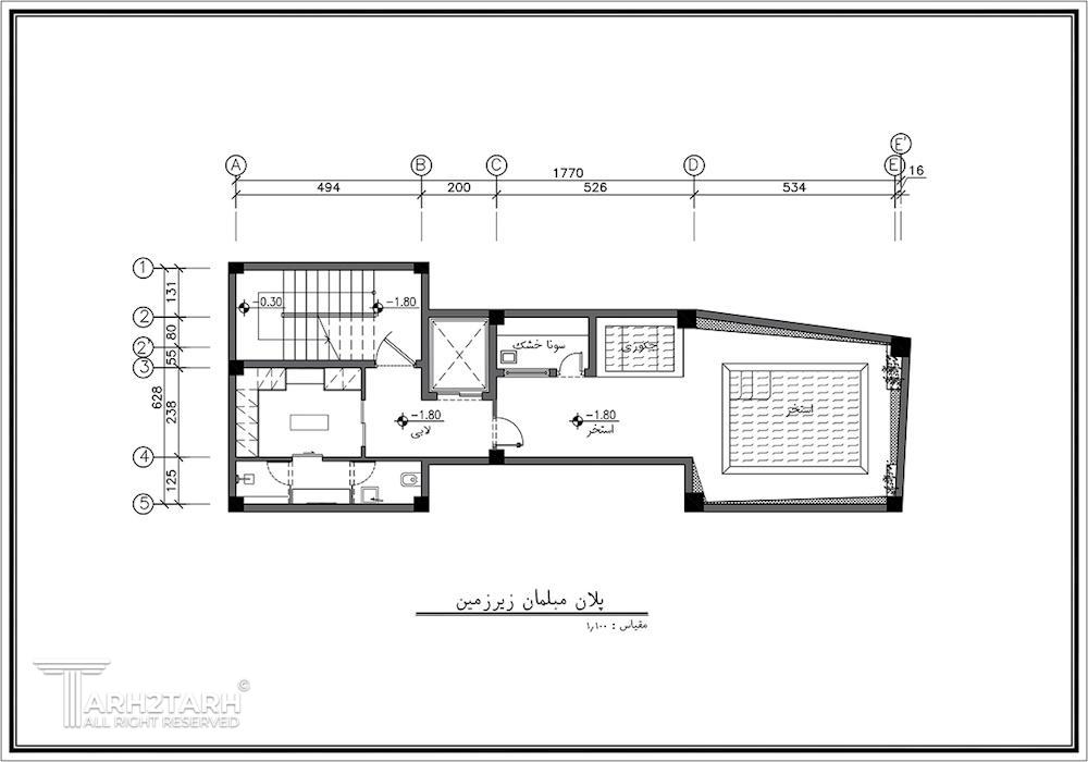
نوع مسابقه: طراحی ویلا
سال انجام پروژه : 1403
نقش: طراح
موقعیت : تهران
متراژ زیربنا : 200
مساحت زمین : 1000
کارفرما : بهساز کاشانه تهران

خدمات ارائه شده توسط طراح

خدمات طراحی و کانسپت
دکوراسیون داخلی

موقعیت مکانی پروژه

پیشنهاد و بازخورد