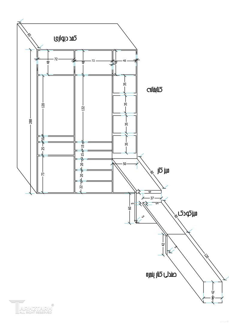
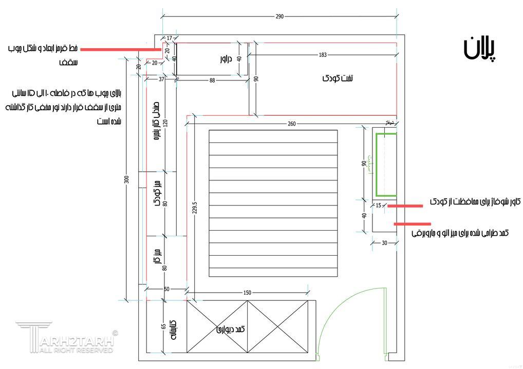
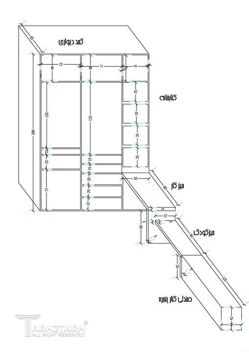
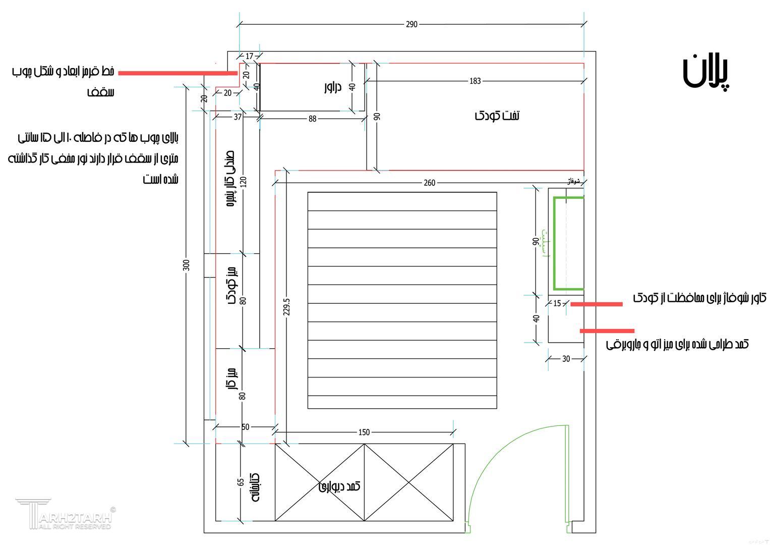
مسابقه اتاق کودک (فرمانیه)

0

اطلاعات پروژه

گلناز معینی خواه

نوع مسابقه: طراحی مسکونی
سال انجام پروژه : 1397
نقش: طراح
موقعیت : تهران
متراژ زیربنا : 12
مساحت زمین : 12
کارفرما : ناصر ولی‌نژاد

خدمات ارائه شده توسط طراح

خدمات طراحی و کانسپت
طراحی داخلی
دکوراسیون داخلی
طراحی کانسپت (معماری)

موقعیت مکانی پروژه

پیشنهاد و بازخورد