مسابقه طراحی پلان و نما ویلای میگون

0

اطلاعات پروژه

کاربر حذف شده

نوع مسابقه: طراحی ویلا
سال انجام پروژه : 1400
نقش: طراح
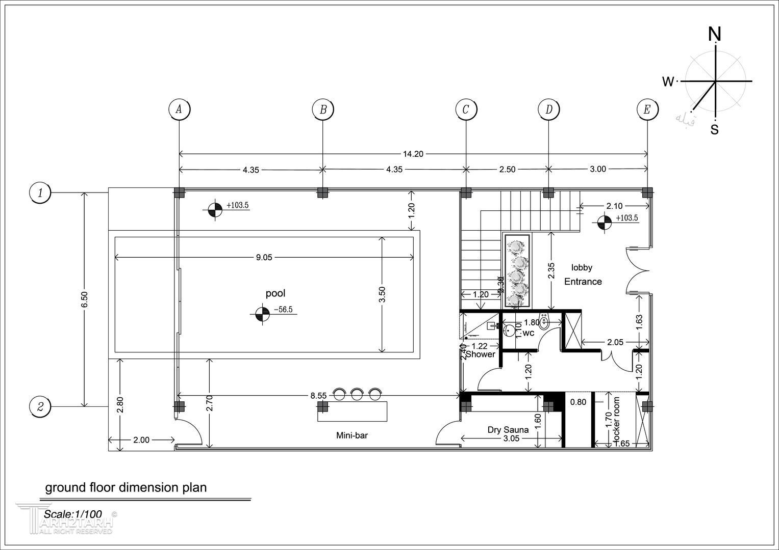
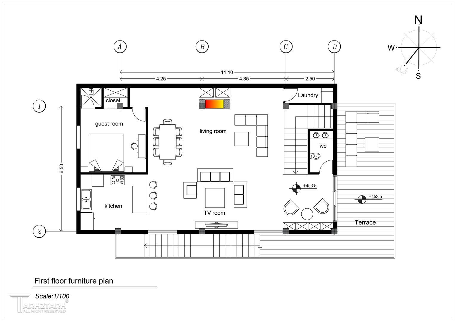
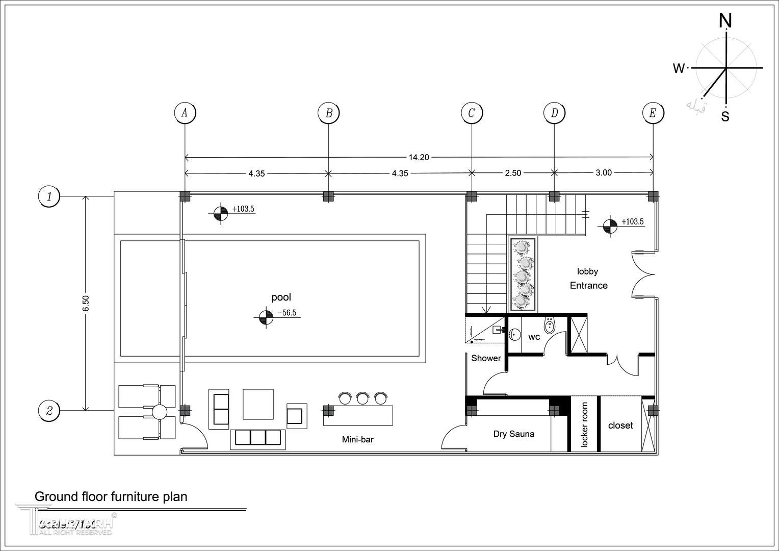
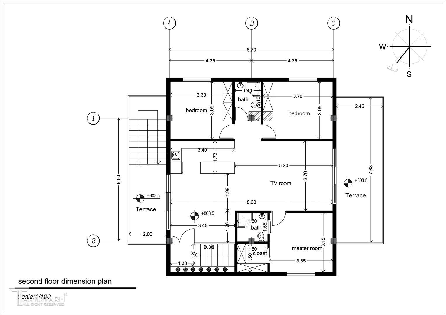
موقعیت : فشم
متراژ زیربنا : 350
مساحت زمین : 500
کارفرما : امینی

موقعیت مکانی پروژه

پیشنهاد و بازخورد