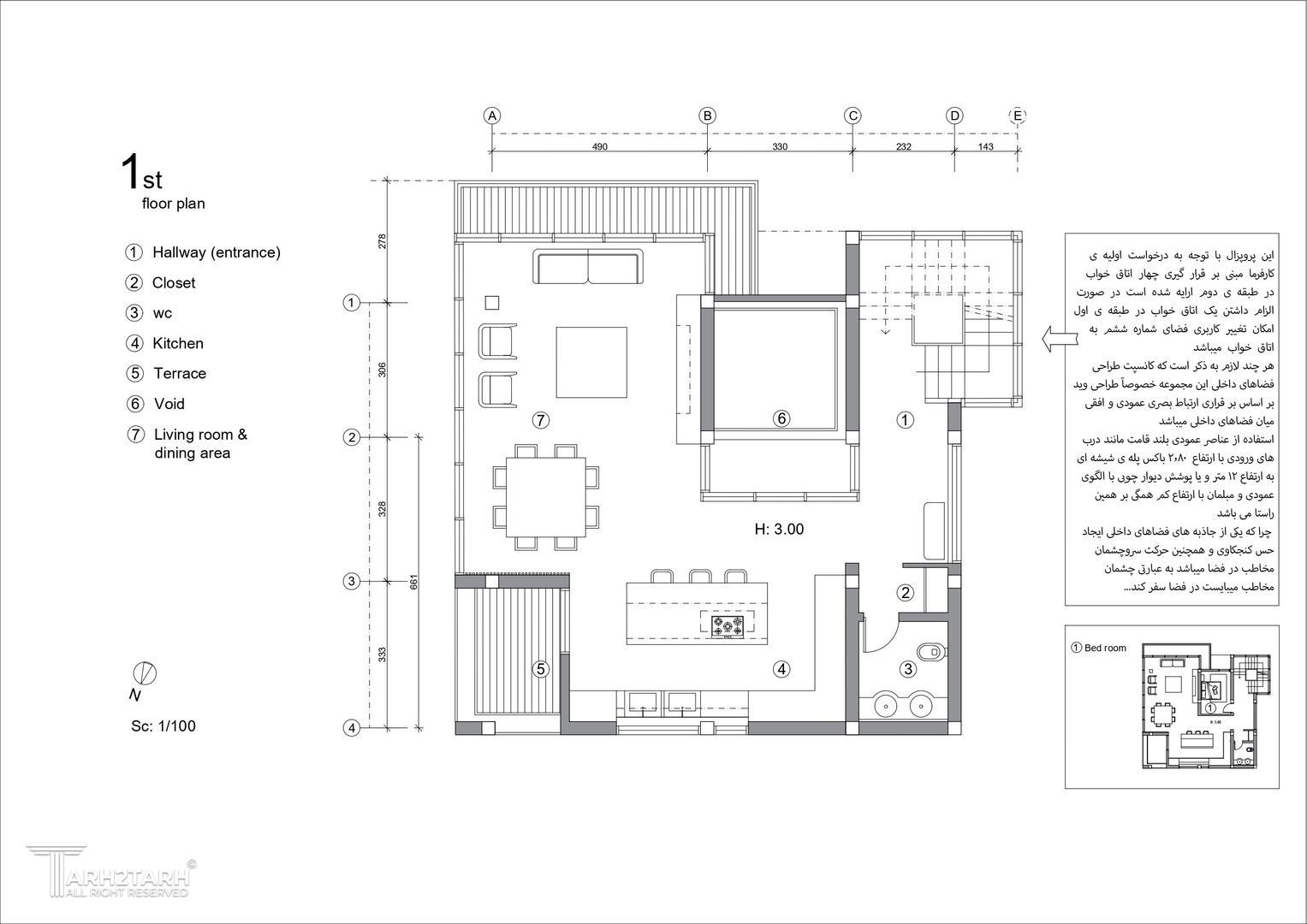
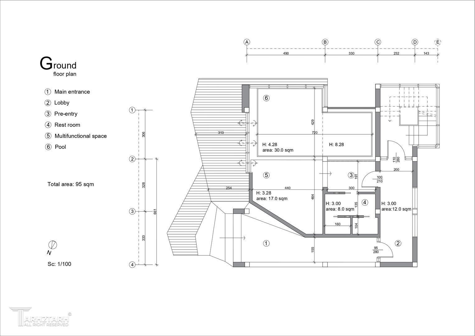
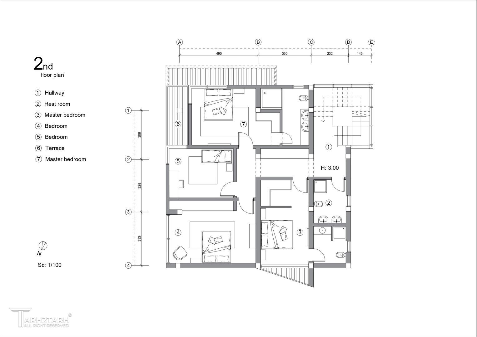
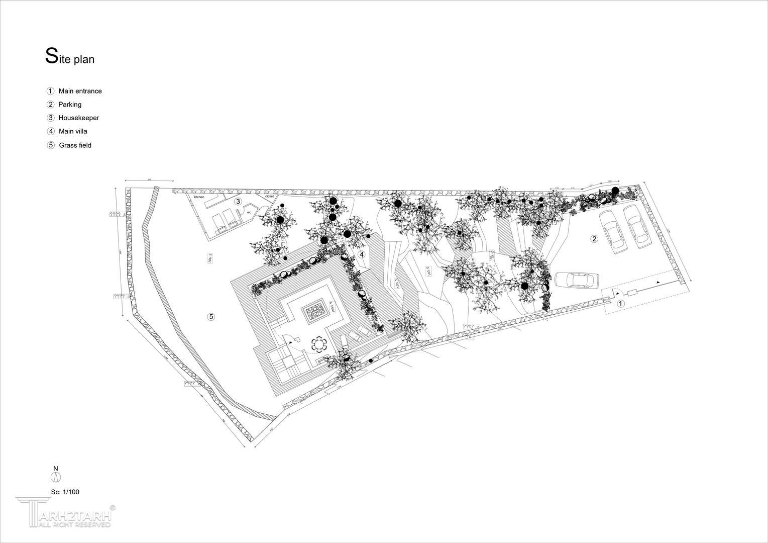
مسابقه طراحی پلان و نما ویلای میگون

0

اطلاعات پروژه

محسن مسعودنیا

نوع مسابقه: طراحی ویلا
سال انجام پروژه : 1400
نقش: طراح
موقعیت : فشم
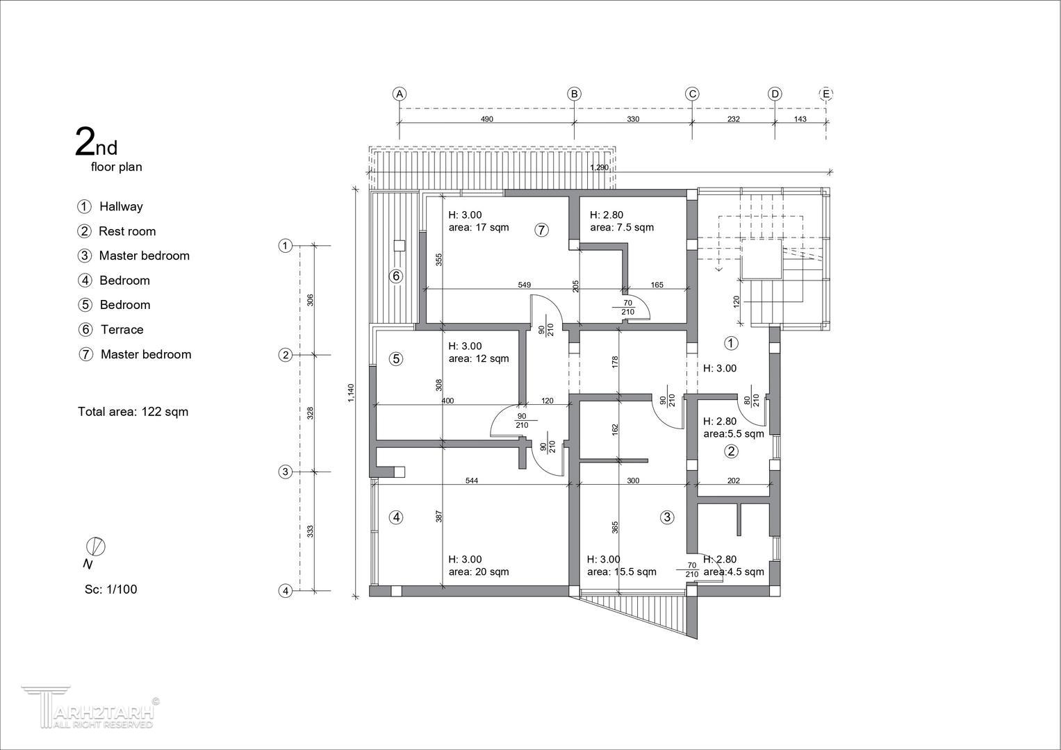
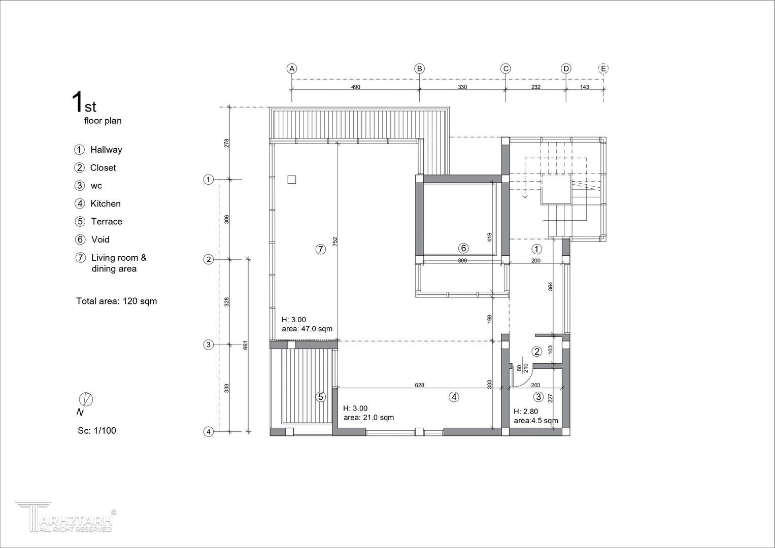
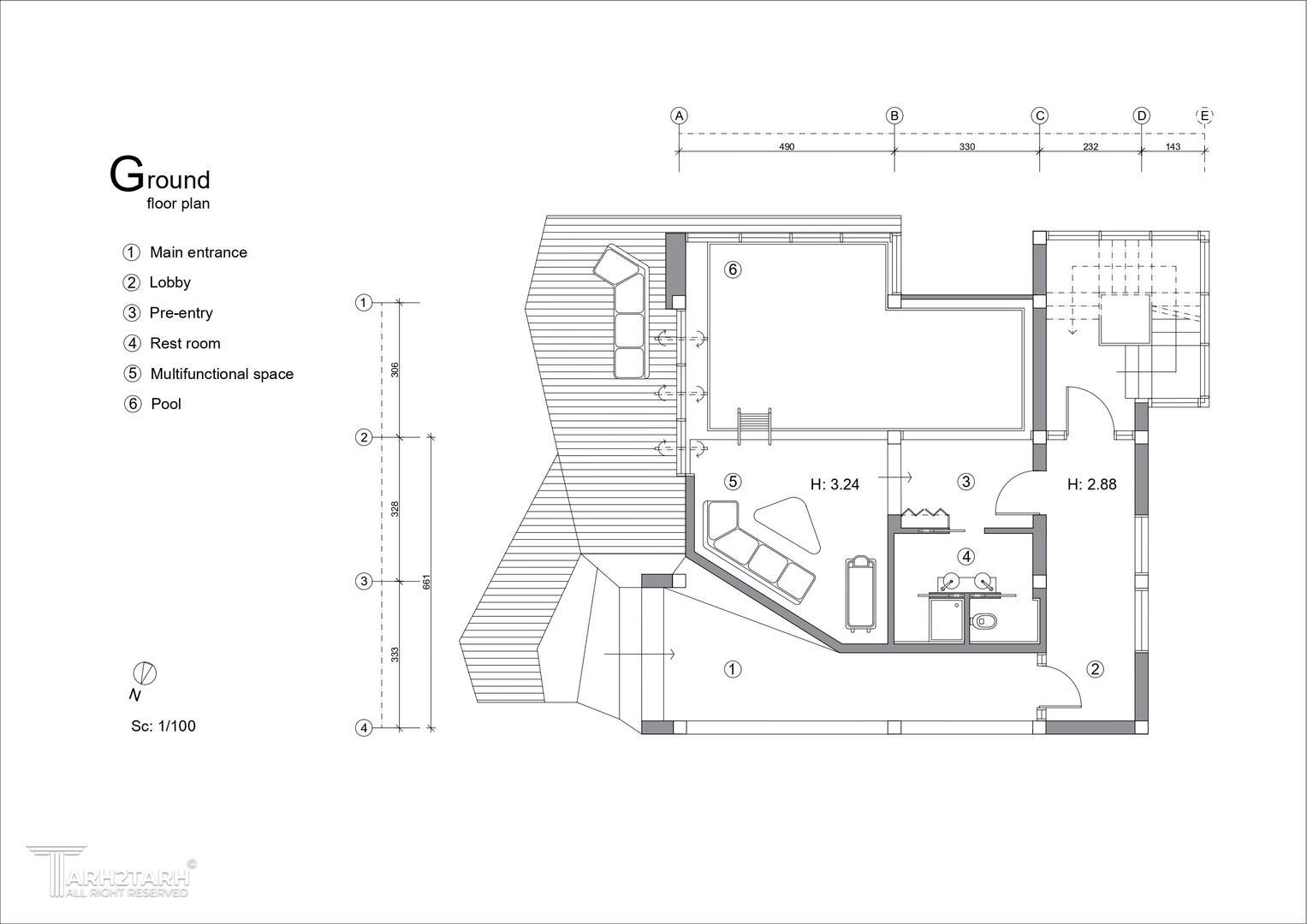
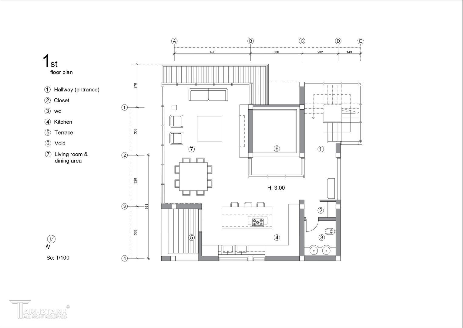
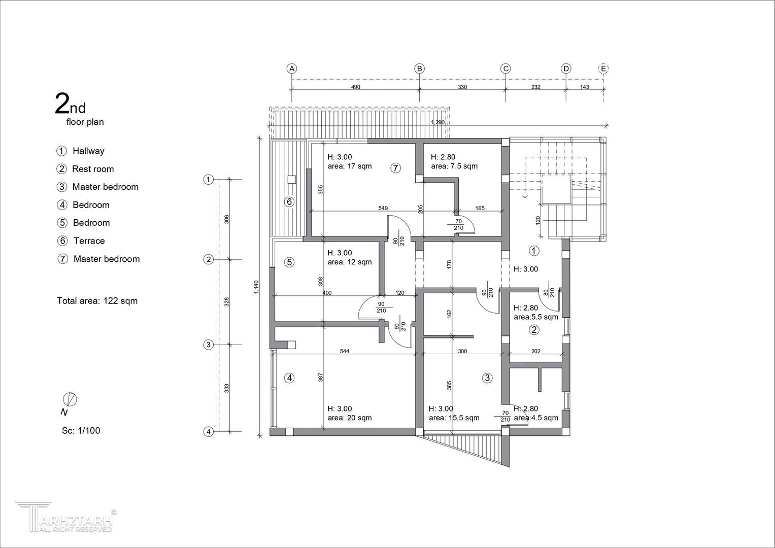
متراژ زیربنا : 350
مساحت زمین : 500
کارفرما : امینی

موقعیت مکانی پروژه

پیشنهاد و بازخورد