مسابقه طراحی مجتمع مسکونی هروی

0

اطلاعات پروژه

حامد رضایی

نوع مسابقه: طراحی مسکونی
سال انجام پروژه : 1400
نقش: طراح
موقعیت : تهران
متراژ زیربنا : 2500
مساحت زمین : 450
کارفرما : سید محمد رضا فروغی

خدمات ارائه شده توسط طراح

خدمات طراحی و کانسپت
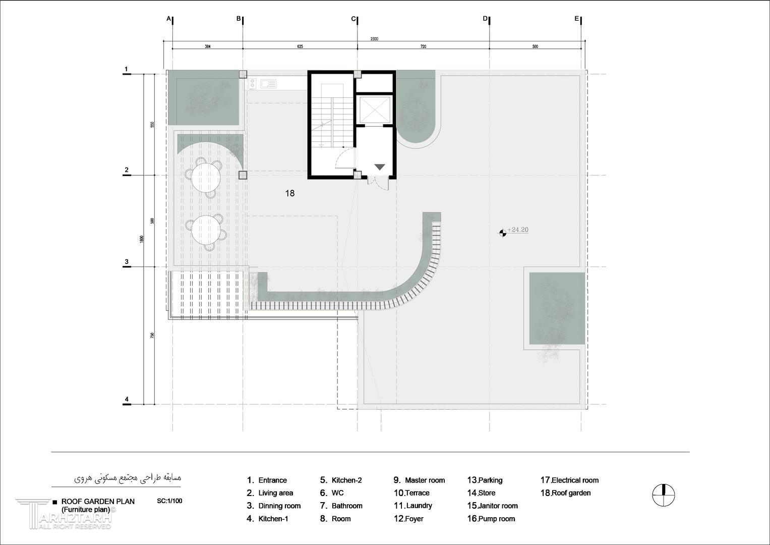
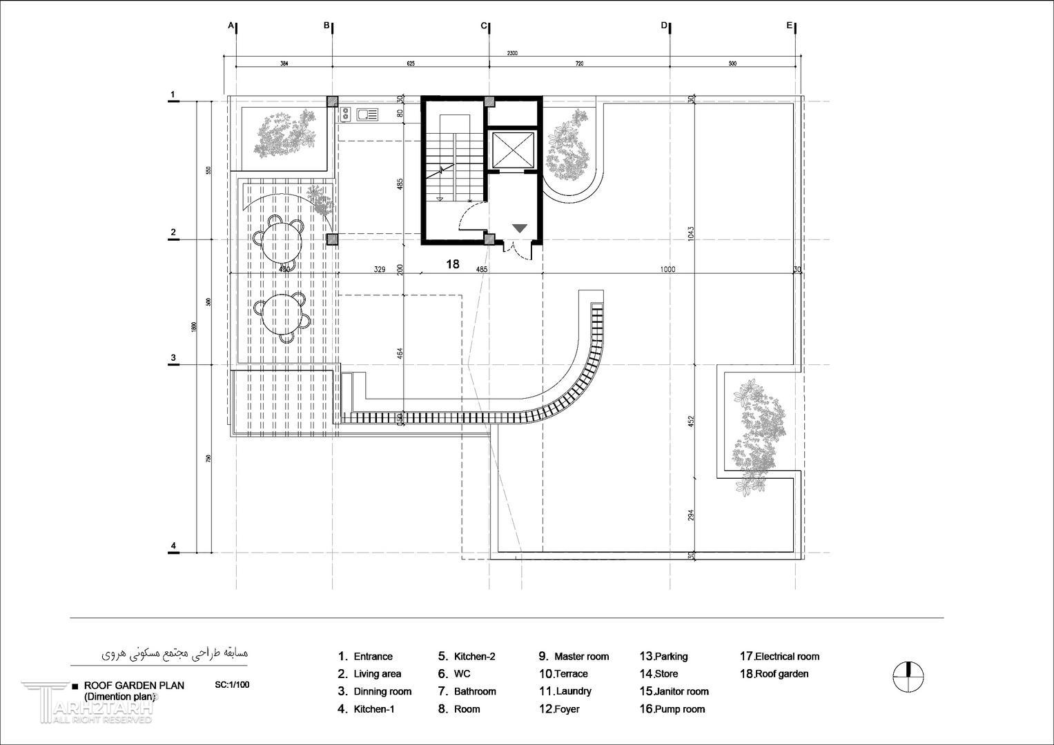
طراحی منظر، فضای سبز، لند اسکیپ، روف گاردن و محوطه
طراحی نورپردازی
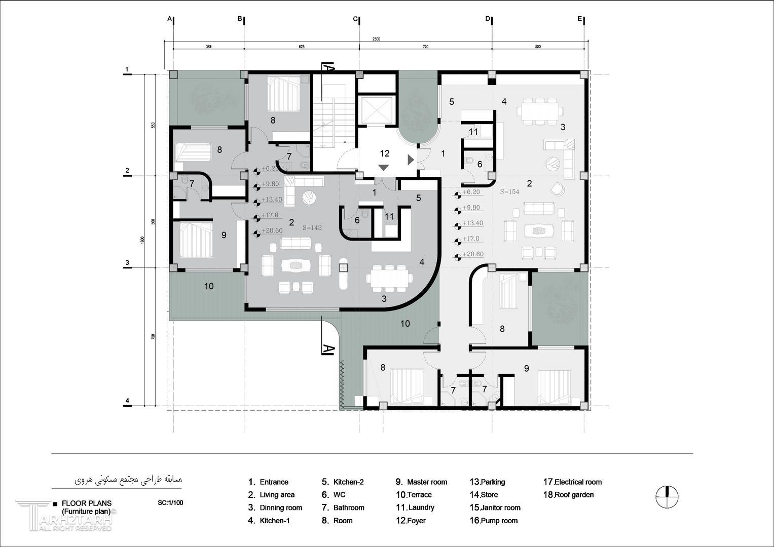
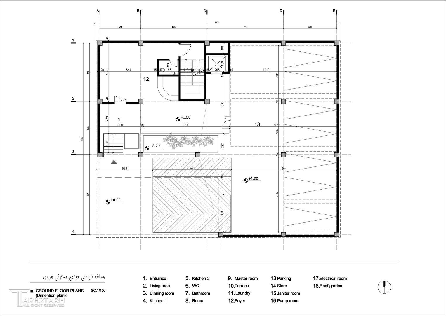
طراحی پلان (نقشه معماری) فاز 1
طراحی نما

موقعیت مکانی پروژه

پیشنهاد و بازخورد