مسابقه طراحی ساختمان مسکونی امپریال رزیدنس کامرانیه ( با امتیاز دو برابر)

0

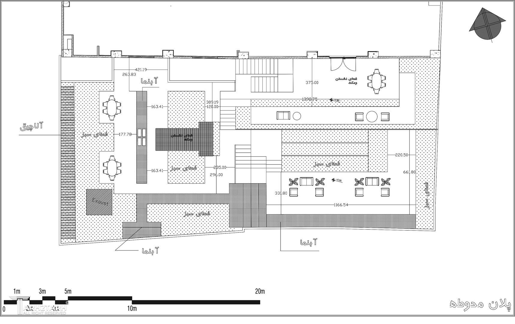
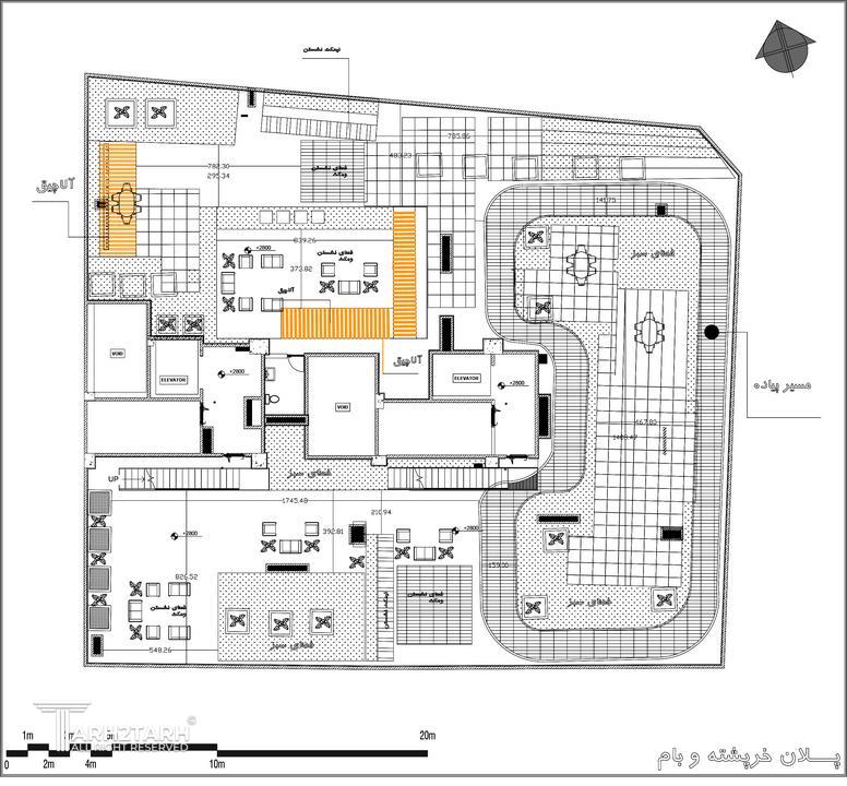
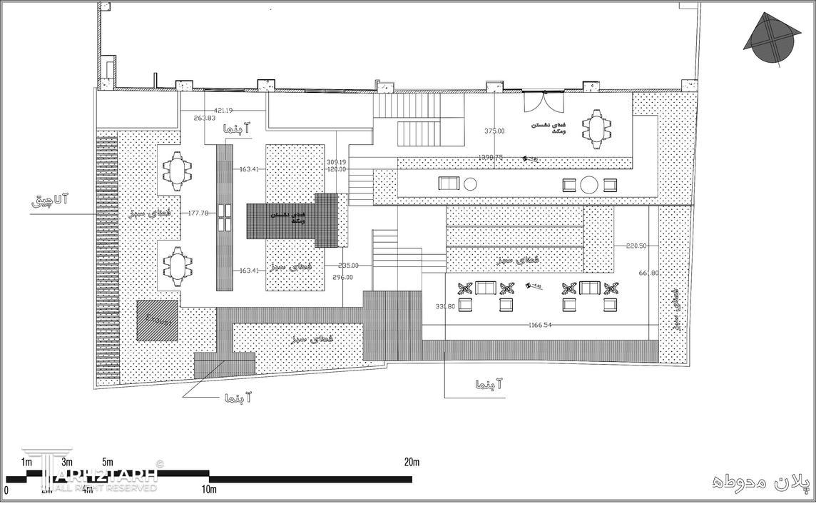
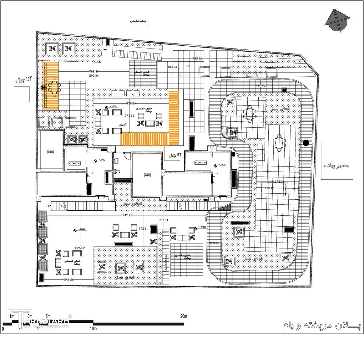
اطلاعات پروژه

مهندس عبدالرضا بارفروش

نوع مسابقه: طراحی مسکونی
سال انجام پروژه : 1404
نقش: طراح
موقعیت : تهران
متراژ زیربنا : 7200
مساحت زمین : 1278
کارفرما : سید جلال موسوی

خدمات ارائه شده توسط طراح

خدمات طراحی و کانسپت
طراحی نما
طراحی داخلی
دکوراسیون داخلی

موقعیت مکانی پروژه

پیشنهاد و بازخورد