نفر سوم مسابقه طراحی مسکونی ساختمان ایراندخت (فرمانیه)

0

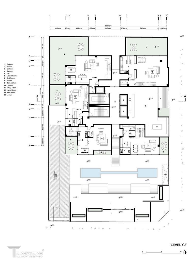
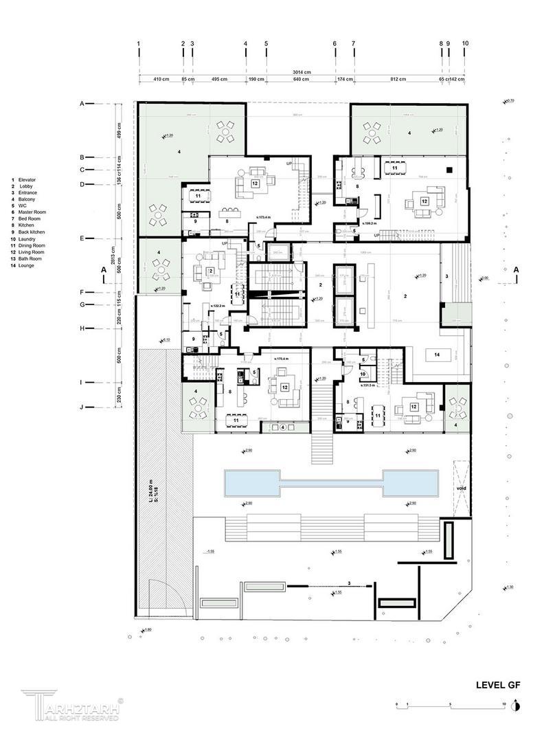
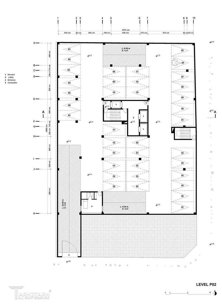
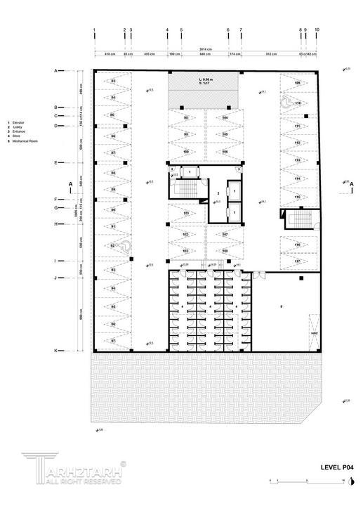
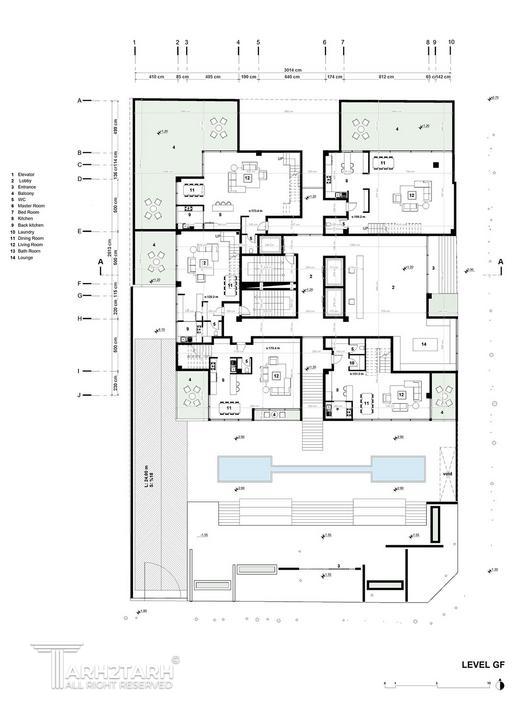
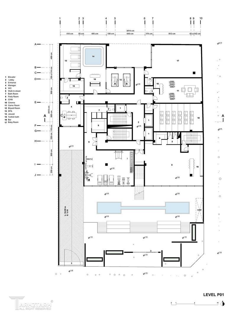
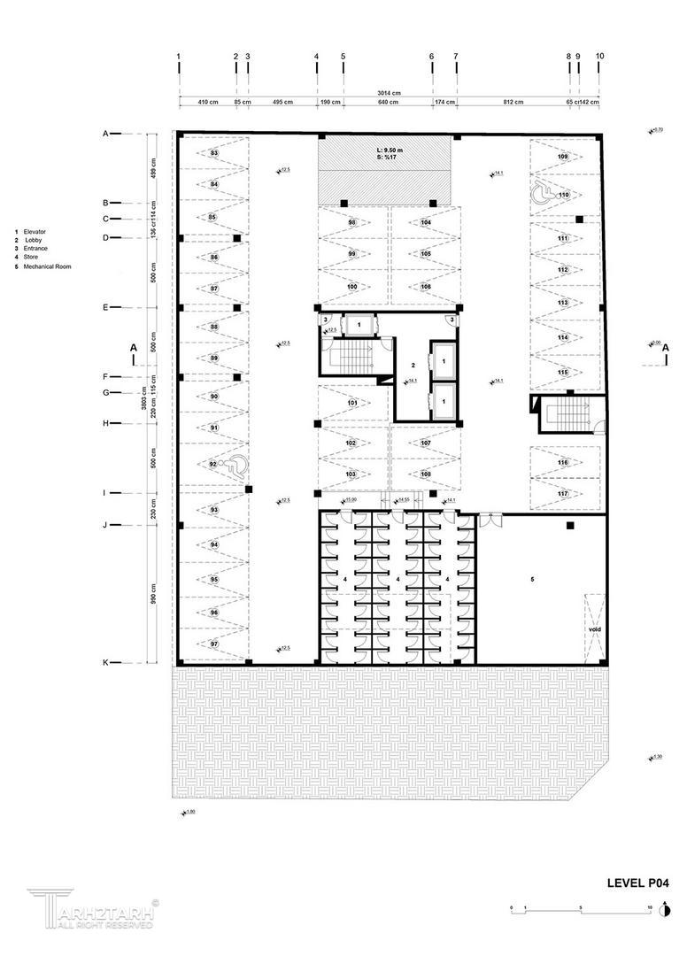
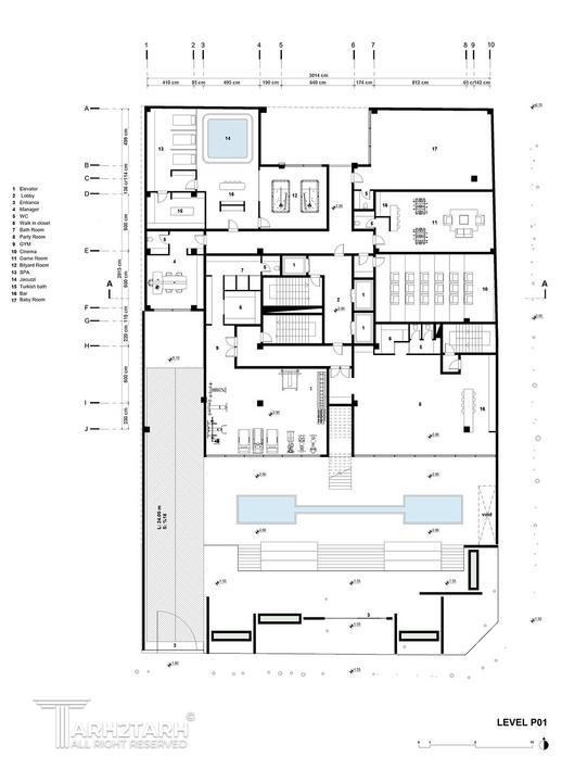
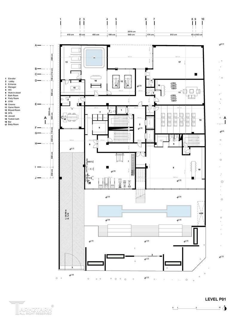
اطلاعات پروژه

ARMINARMANSTUDIO

نوع مسابقه: طراحی مسکونی
سال انجام پروژه : 1403
نقش: طراح
موقعیت : تهران
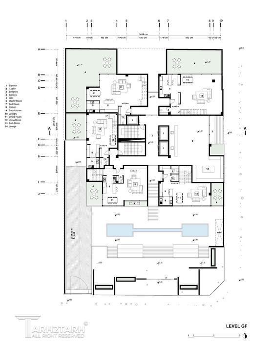
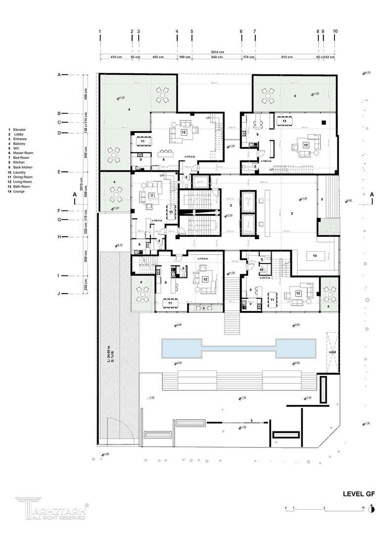
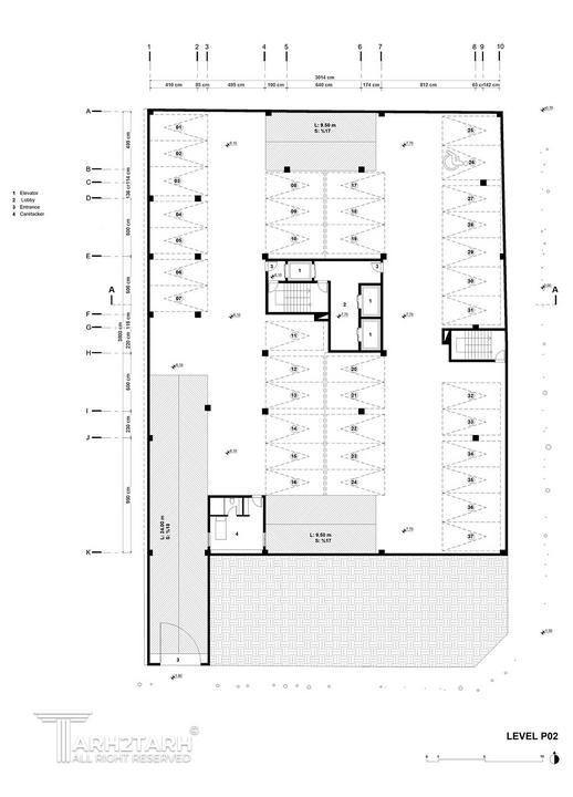
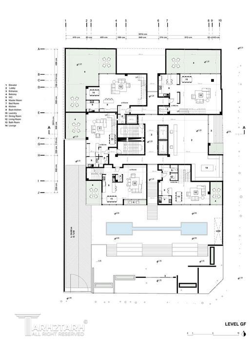
متراژ زیربنا : 12400
کارفرما : حامد شیدا

خدمات ارائه شده توسط طراح

خدمات طراحی و کانسپت
طراحی پلان (نقشه معماری) فاز 1
طراحی نما
طراحی نورپردازی

موقعیت مکانی پروژه

پیشنهاد و بازخورد