مسابقه طراحی پلان و نما ساختمان ایزدشهر

0

اطلاعات پروژه

محمد عباس زاده

نوع مسابقه: طراحی مسکونی
سال انجام پروژه : 1403
نقش: طراح
موقعیت : ایزد شهر
متراژ زیربنا : 6000
مساحت زمین : 1050
کارفرما : Mohamad Roshani

خدمات ارائه شده توسط طراح

خدمات طراحی و کانسپت
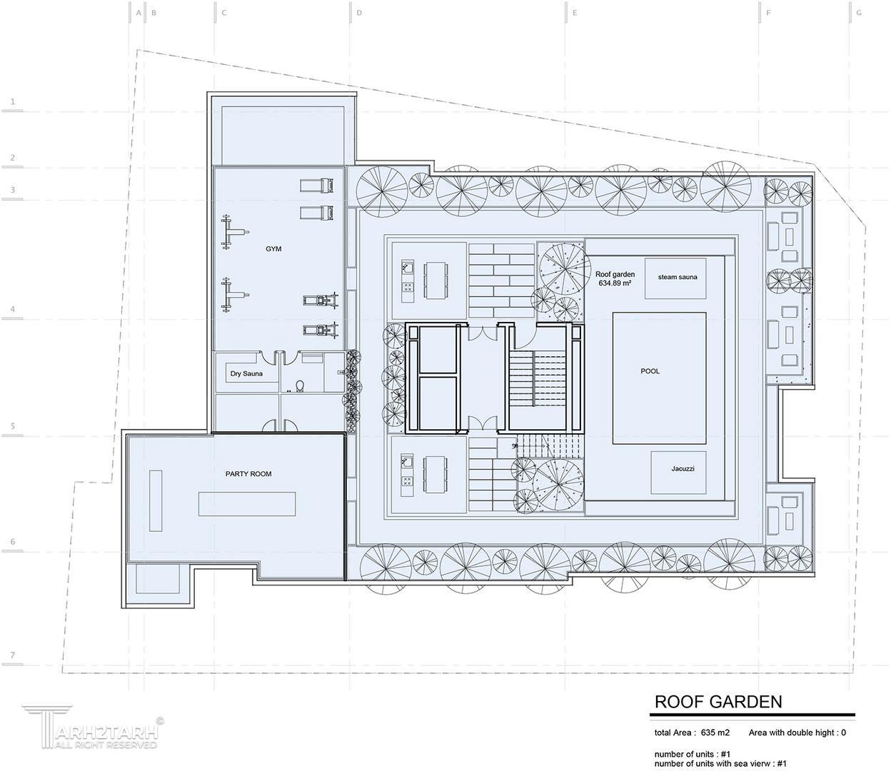
طراحی منظر، فضای سبز، لند اسکیپ، روف گاردن و محوطه
طراحی نورپردازی
طراحی پلان (نقشه معماری) فاز 1
طراحی نما

موقعیت مکانی پروژه

پیشنهاد و بازخورد