نفر اول مسابقه طراحی پلان و نما ساختمان ایزدشهر

0

اطلاعات پروژه

چارچوب استودیو

نوع مسابقه: طراحی مسکونی
سال انجام پروژه : 1403
نقش: طراح
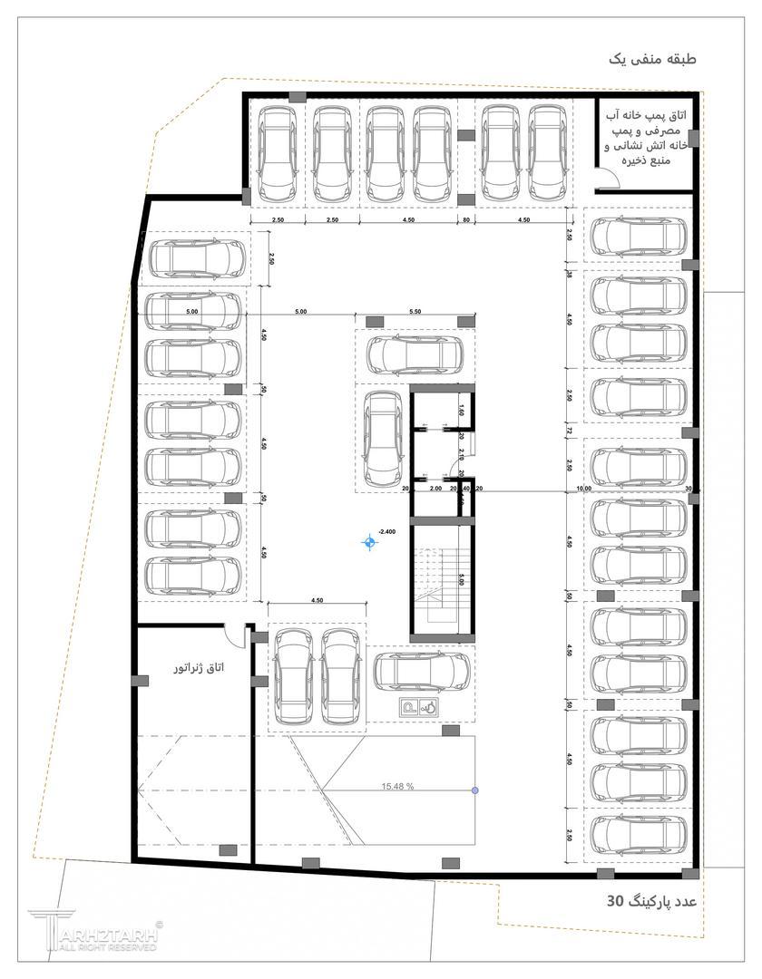
موقعیت : ایزد شهر
متراژ زیربنا : 6000
مساحت زمین : 1050
کارفرما : Mohamad Roshani

خدمات ارائه شده توسط طراح

خدمات طراحی و کانسپت
طراحی پلان (نقشه معماری) فاز 1
طراحی نما
طراحی منظر، فضای سبز، لند اسکیپ، روف گاردن و محوطه
طراحی نورپردازی

موقعیت مکانی پروژه

پیشنهاد و بازخورد