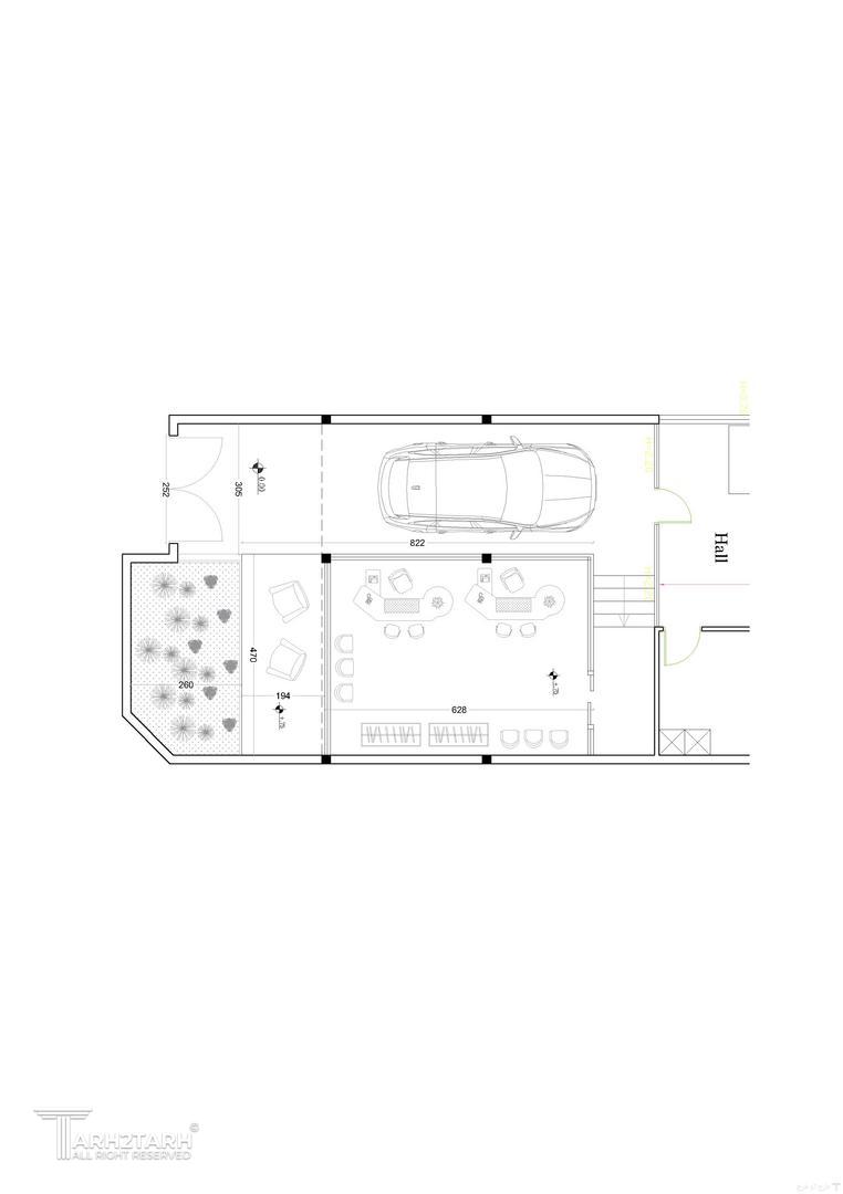
مسابقه طراحی استخر، باغچه و ورودی ویلای جمشیدیه

0

اطلاعات پروژه

گروه معماری آترو

نوع مسابقه: طراحی ویلا
سال انجام پروژه : 1398
نقش: طراح
موقعیت : تهران
متراژ زیربنا : 33
مساحت زمین : 300
کارفرما : طرح تو طرح

موقعیت مکانی پروژه

پیشنهاد و بازخورد