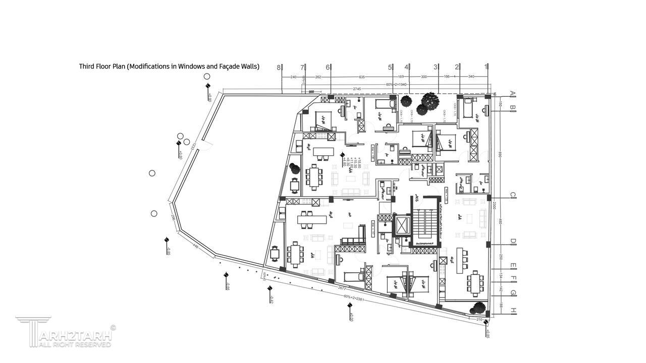
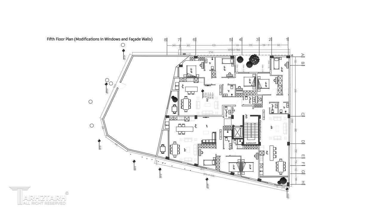
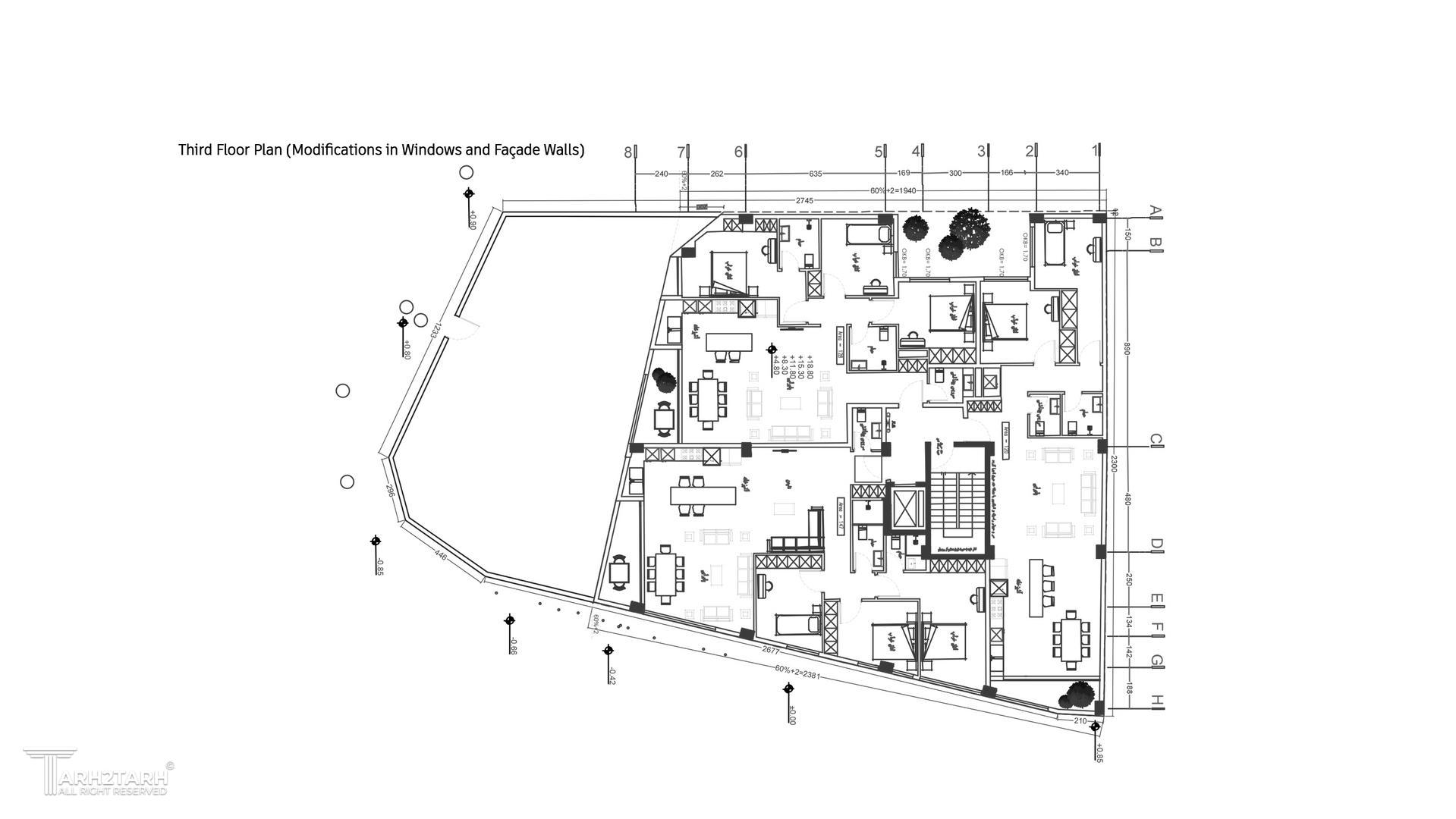
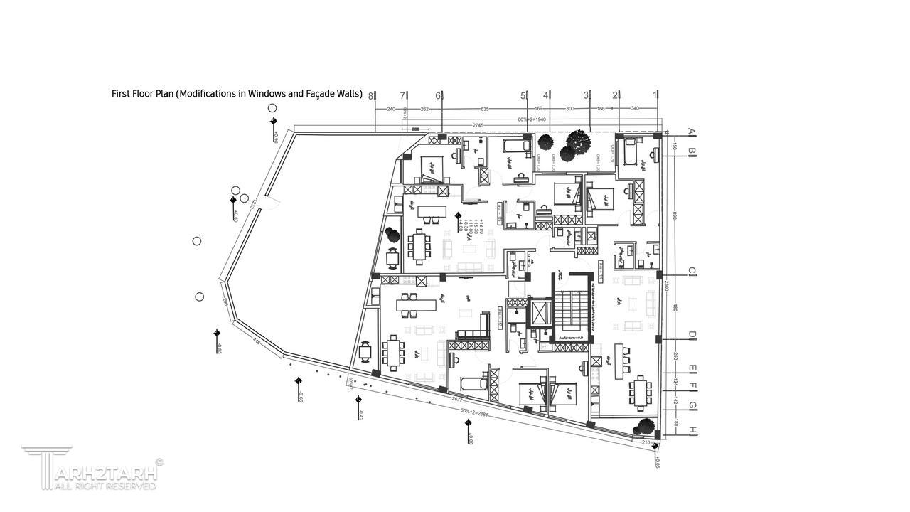
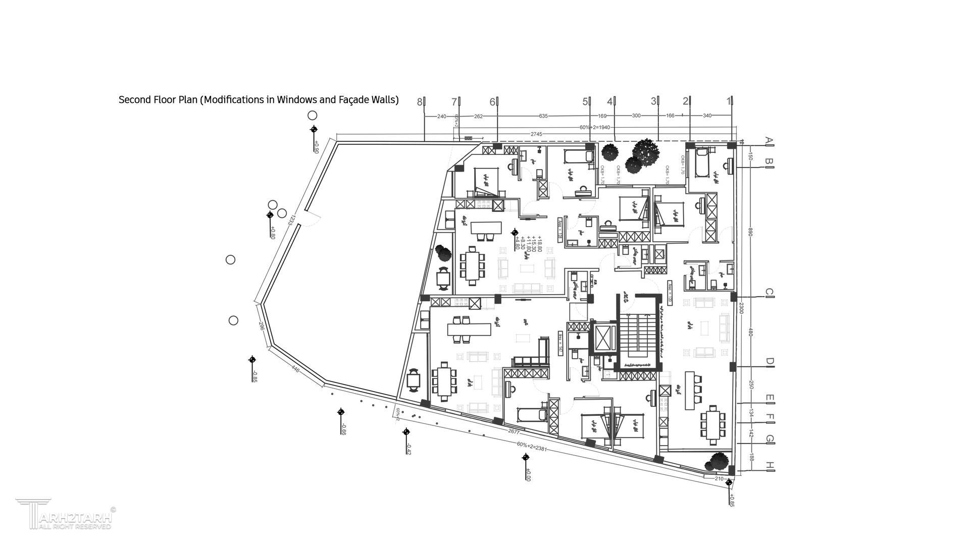
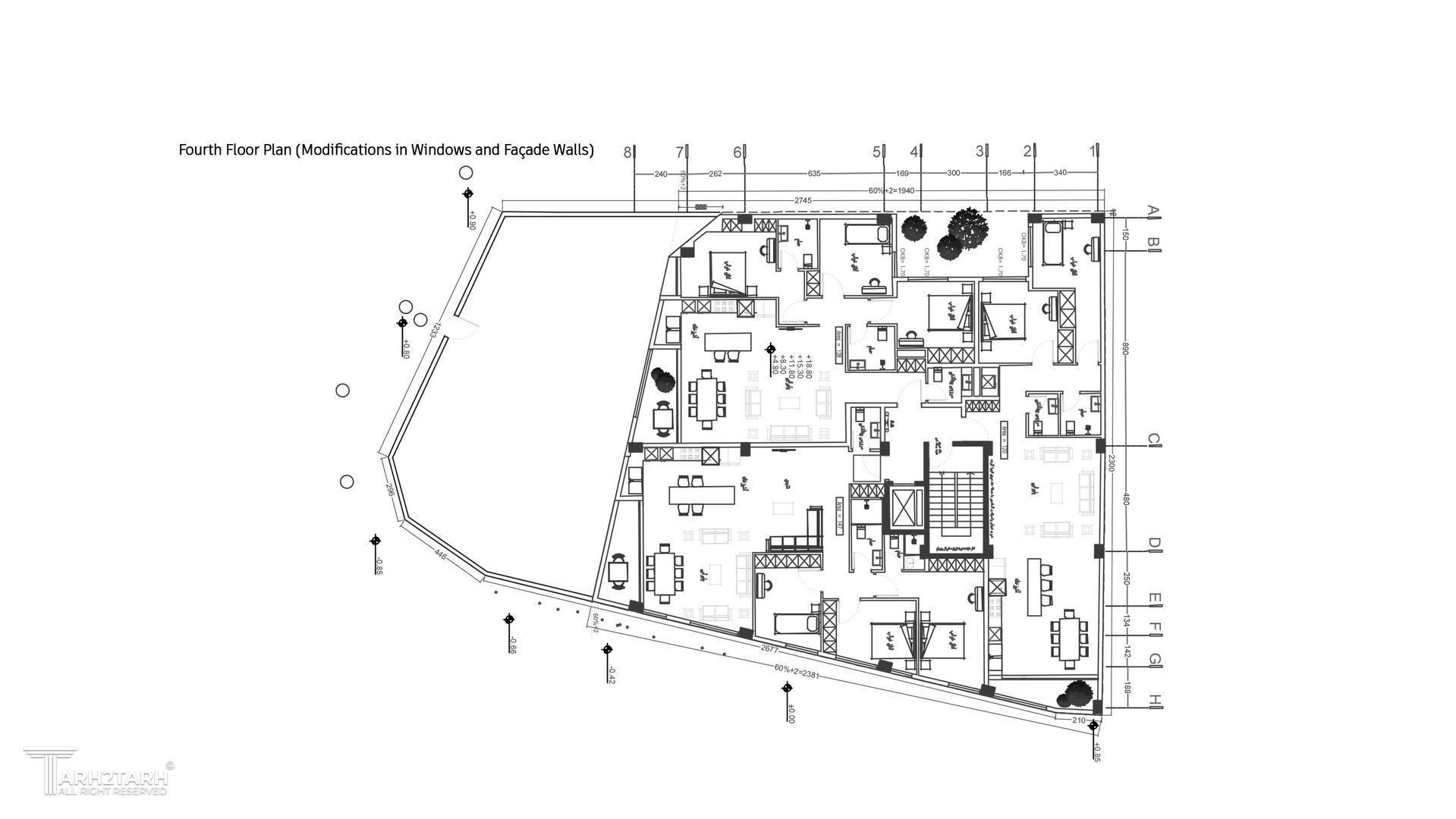
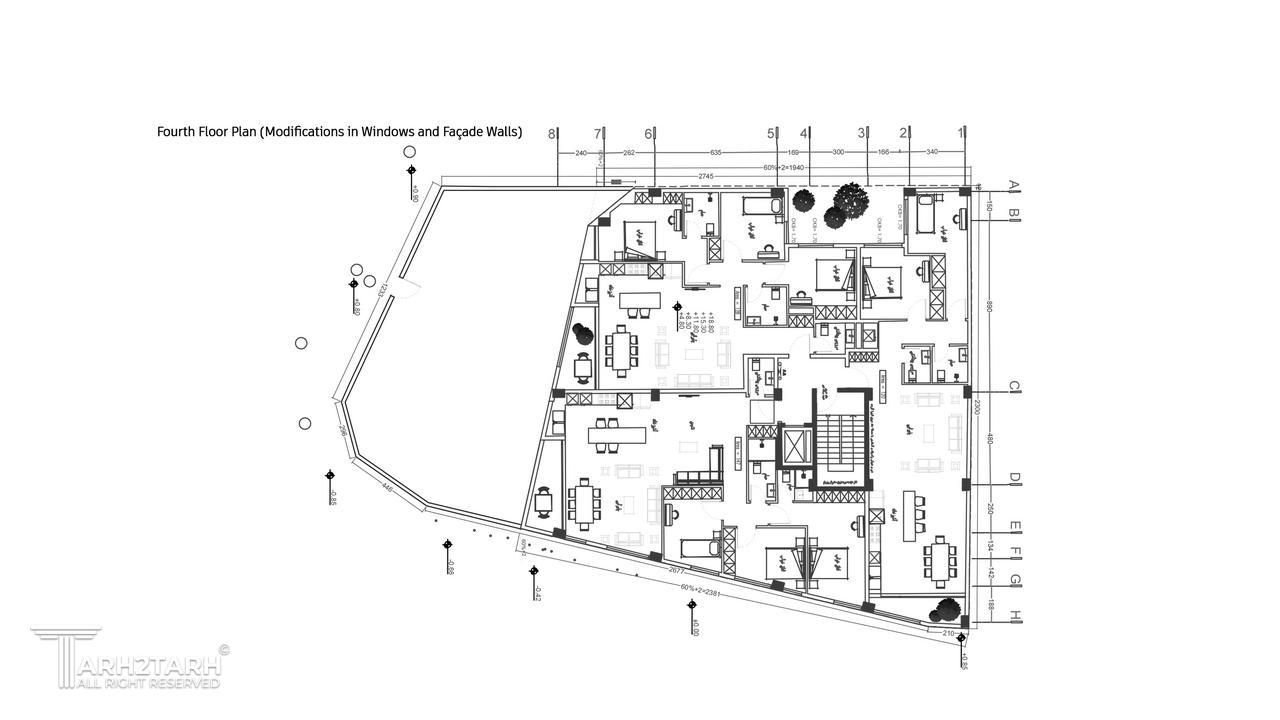
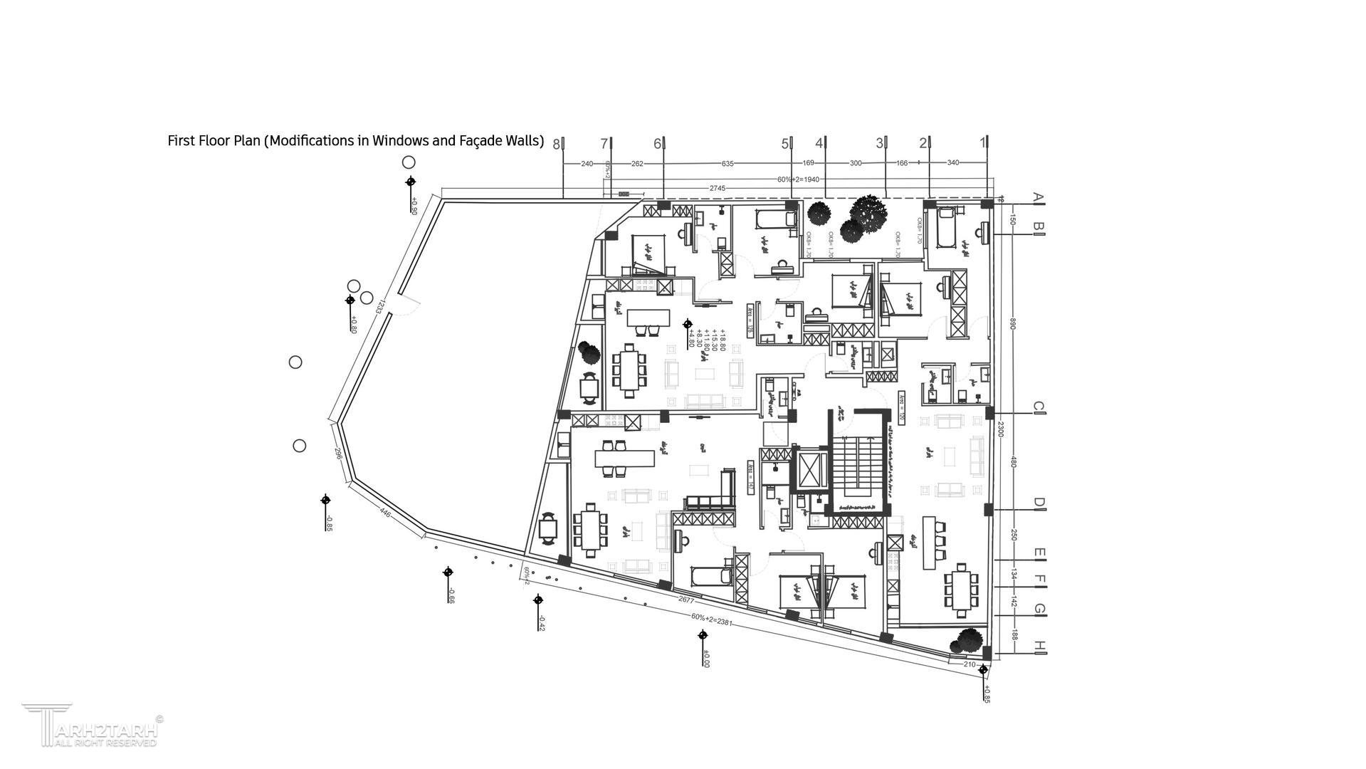
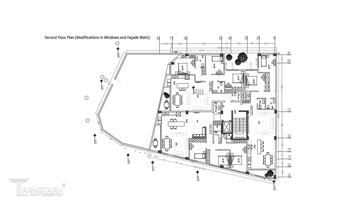
مسابقه طراحی ساختمان مسکونی کیکاووس (دولت)

0

اطلاعات پروژه

محمدرضا انبیاء

نوع مسابقه: طراحی مسکونی
سال انجام پروژه : 1404
نقش: طراح
موقعیت : تهران
متراژ زیربنا : 3000
مساحت زمین : 617
کارفرما : قبادیان

موقعیت مکانی پروژه

پیشنهاد و بازخورد