مسابقه طراحی ویلا خانه دل

0

اطلاعات پروژه

سپی آرت

نوع مسابقه: طراحی ویلا
سال انجام پروژه : 1403
نقش: طراح
موقعیت : کلارآباد
متراژ زیربنا : 450
مساحت زمین : 1000
کارفرما : هوشنگ پاکدست

خدمات ارائه شده توسط طراح

خدمات طراحی و کانسپت
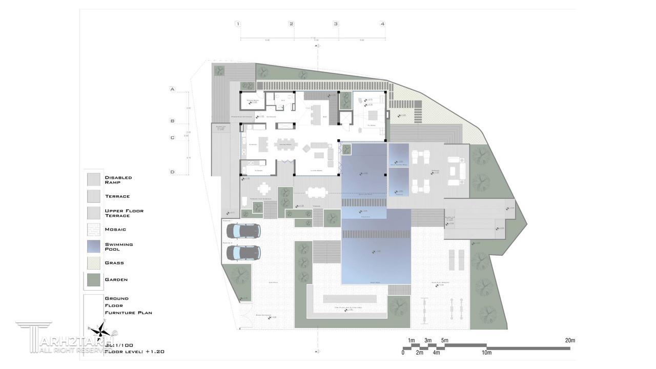
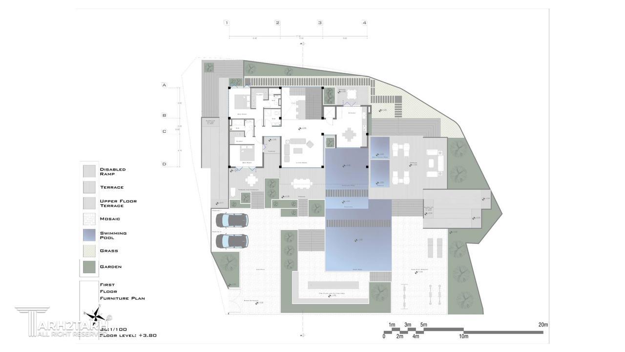
طراحی پلان (نقشه معماری) فاز 1
طراحی نما
طراحی نورپردازی

موقعیت مکانی پروژه

پیشنهاد و بازخورد