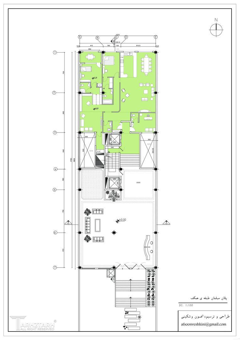
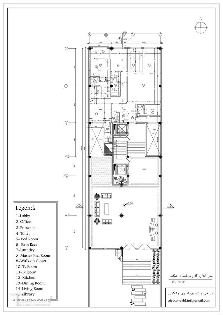
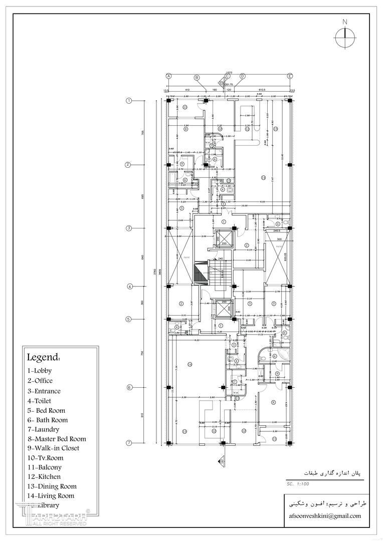
مسابقه طراحی پلان پروژه کوهیار

0

اطلاعات پروژه

افسون وشکینی

نوع مسابقه: طراحی مسکونی
سال انجام پروژه : 1397
نقش: طراح
موقعیت : تهران
متراژ زیربنا : 5300
مساحت زمین : 700
کارفرما : Shayegh

موقعیت مکانی پروژه

پیشنهاد و بازخورد