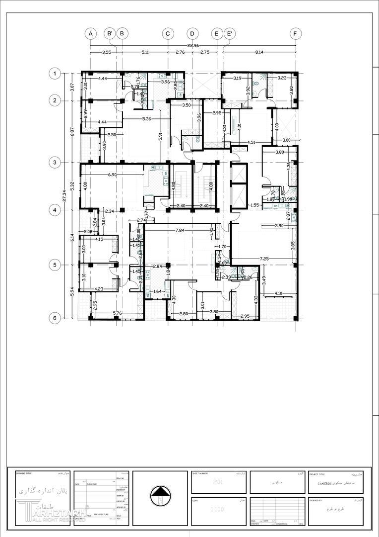
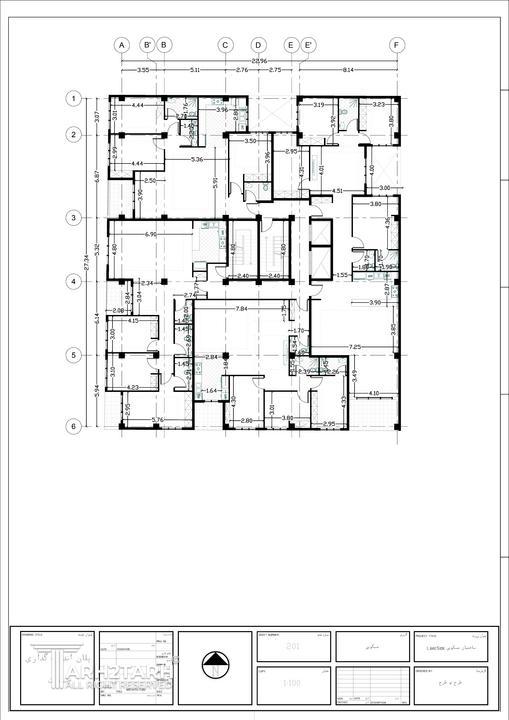
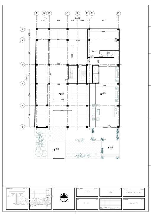
مسابقه طراحی پلان LakeSide1

0

اطلاعات پروژه

مریم صمدی

نوع مسابقه: طراحی مسکونی
سال انجام پروژه : 1400
نقش: طراح
موقعیت : تهران
متراژ زیربنا : 5600
مساحت زمین : 650
کارفرما : امیر امینی

خدمات ارائه شده توسط طراح

خدمات طراحی و کانسپت
طراحی پلان (نقشه معماری) فاز 1

موقعیت مکانی پروژه

پیشنهاد و بازخورد