مسابقه طراحی پلانLakeSide2

0

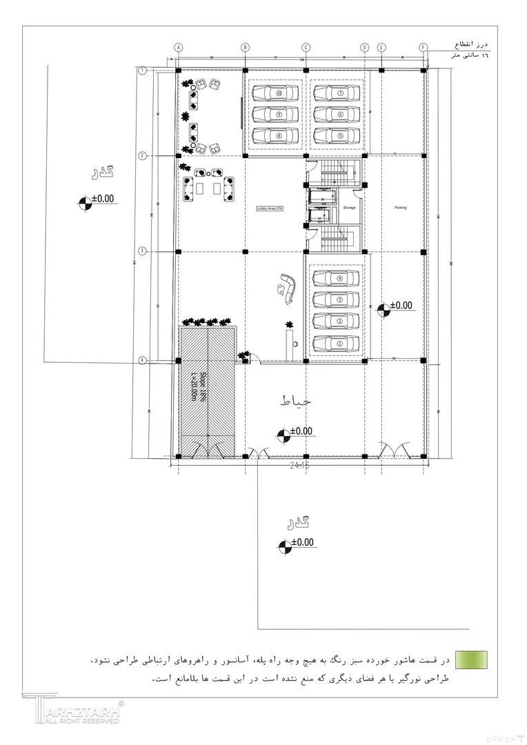
اطلاعات پروژه

کاربر حذف شده

نوع مسابقه: طراحی مسکونی
سال انجام پروژه : 1400
نقش: طراح
موقعیت : تهران
متراژ زیربنا : 5600
مساحت زمین : 650
کارفرما : امیر امینی

موقعیت مکانی پروژه

پیشنهاد و بازخورد