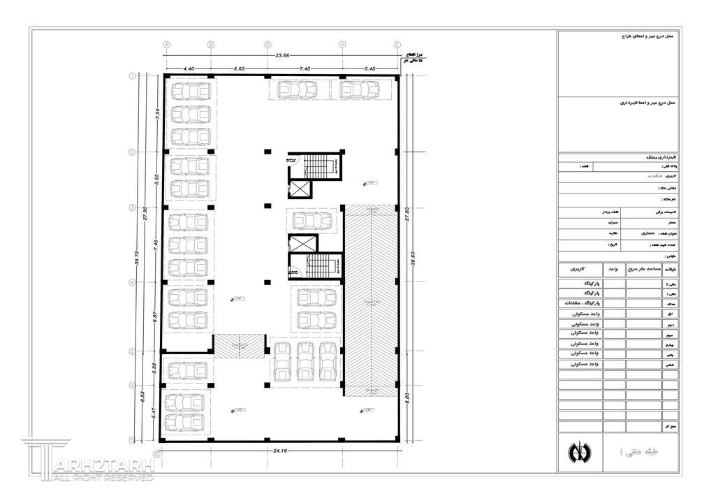
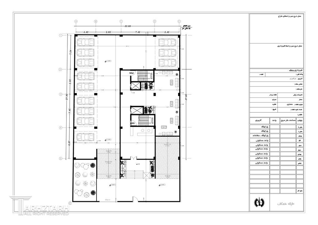
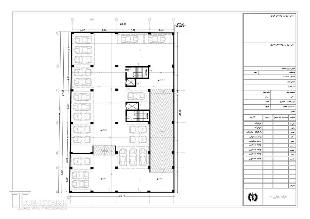
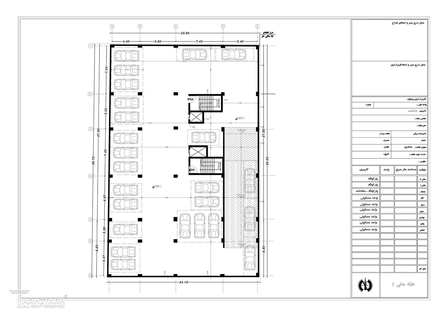
مسابقه طراحی پلانLakeSide2

0

اطلاعات پروژه

بهروز عبدوی

نوع مسابقه: طراحی مسکونی
سال انجام پروژه : 1400
نقش: طراح
موقعیت : تهران
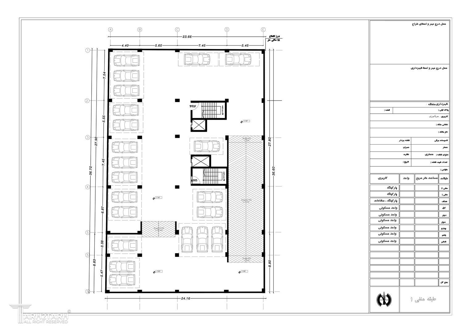
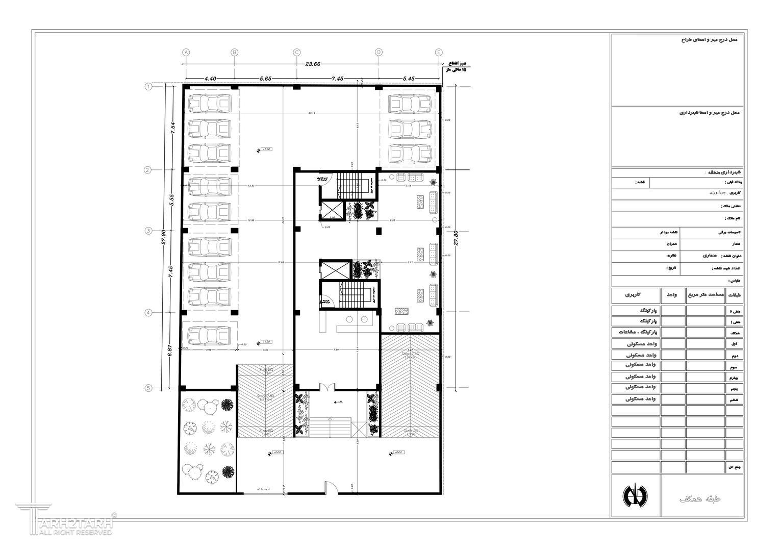
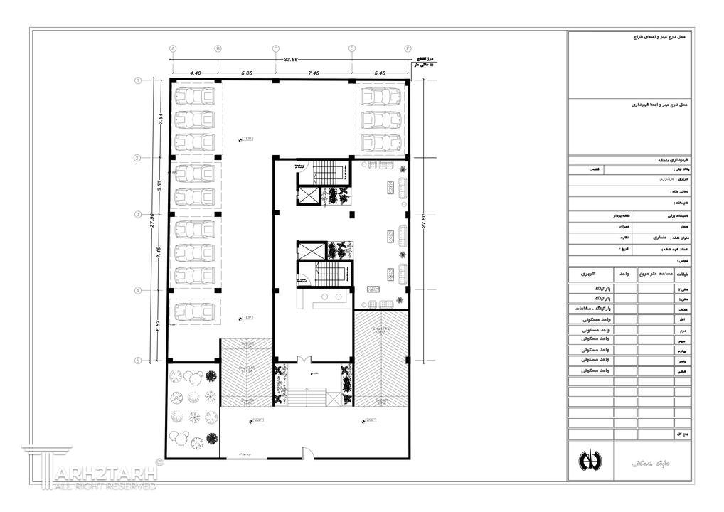
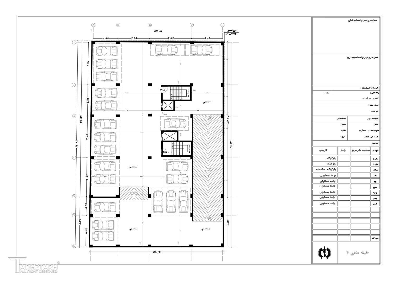
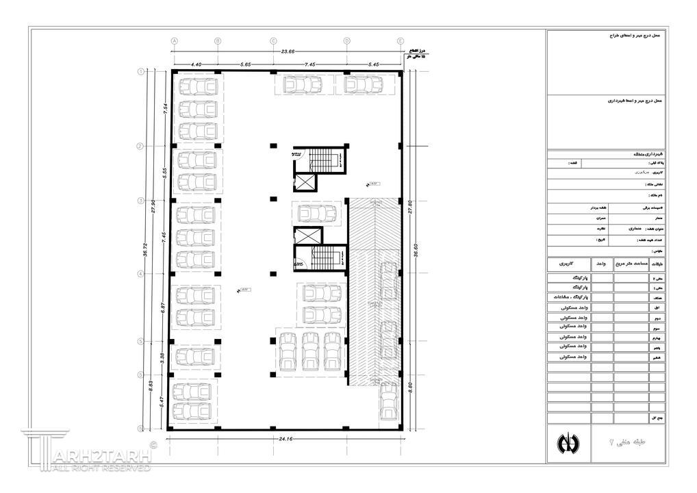
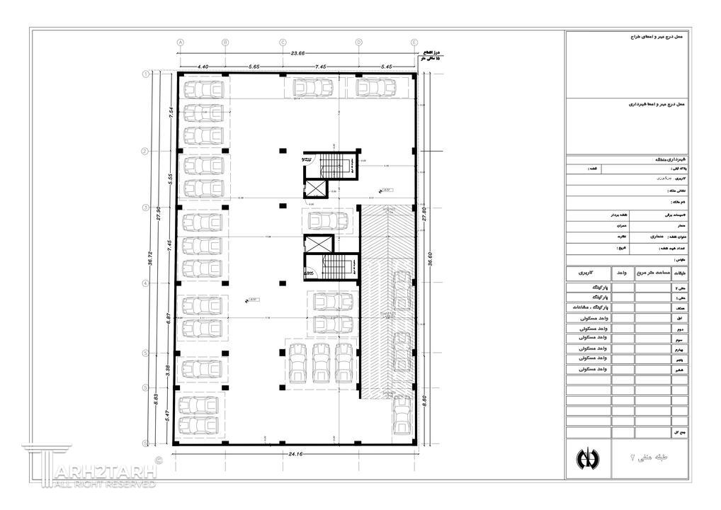
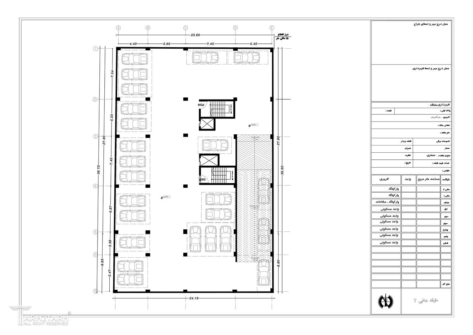
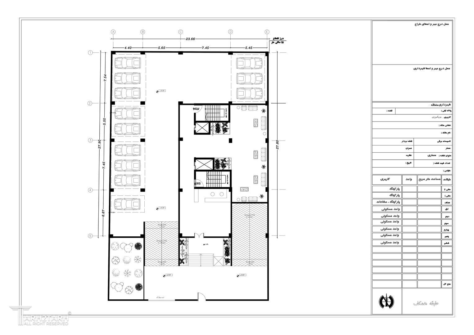
متراژ زیربنا : 5600
مساحت زمین : 650
کارفرما : امیر امینی

موقعیت مکانی پروژه

پیشنهاد و بازخورد