مسابقه طراحی خانه لواسان شهرک پرواز

0

اطلاعات پروژه

سامان غلامی

نوع مسابقه: طراحی ویلا
سال انجام پروژه : 1402
نقش: طراح
موقعیت : لواسان
متراژ زیربنا : 400
مساحت زمین : 160
کارفرما : دکتر مهدی بنی اسدی

خدمات ارائه شده توسط طراح

خدمات طراحی و کانسپت
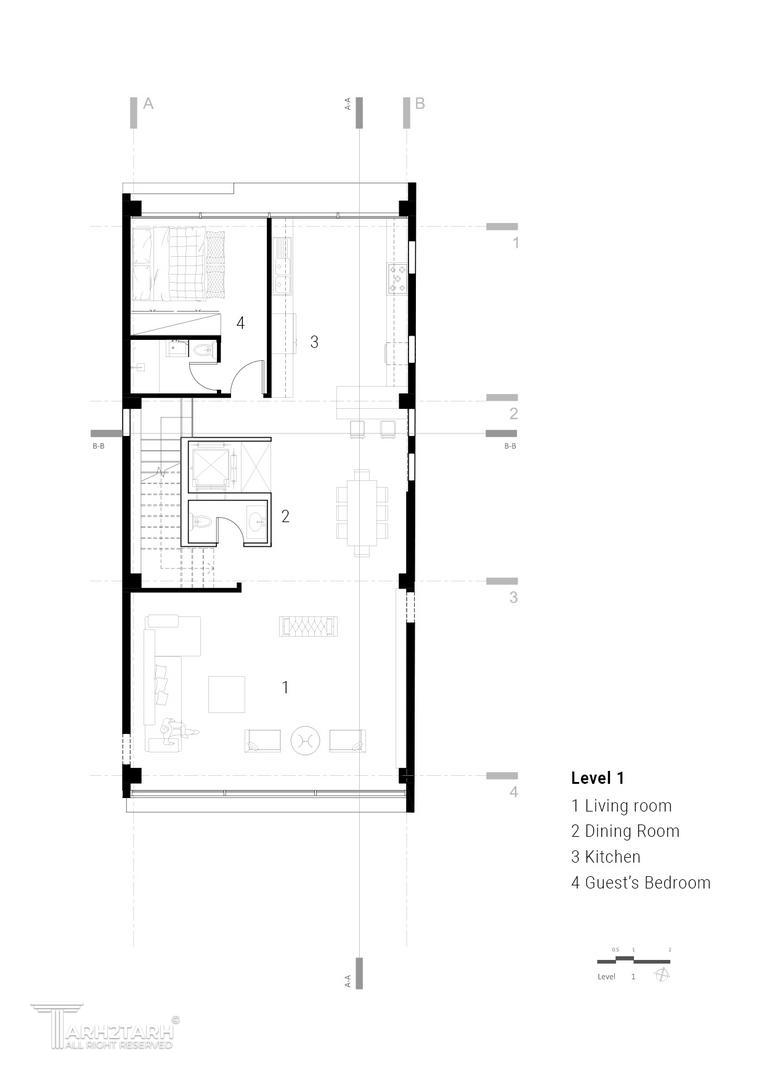
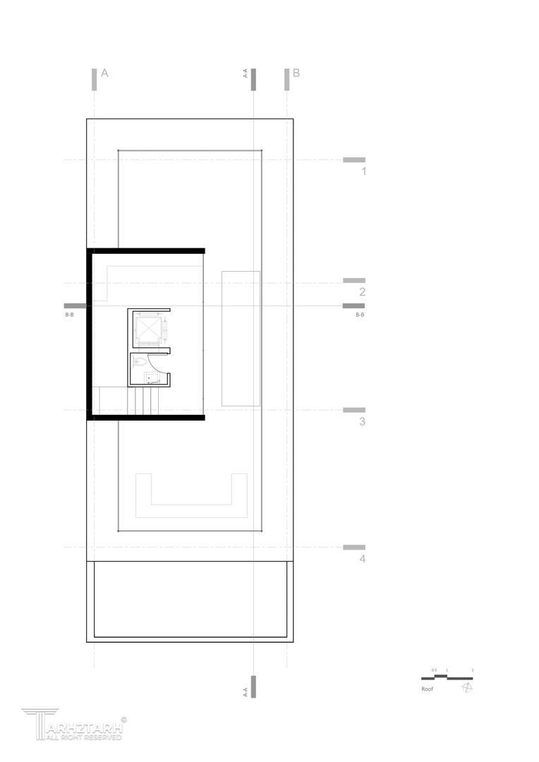
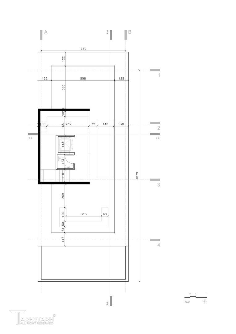
طراحی پلان (نقشه معماری) فاز 1
طراحی نما
طراحی داخلی
طراحی منظر، فضای سبز، لند اسکیپ، روف گاردن و محوطه
طراحی نورپردازی

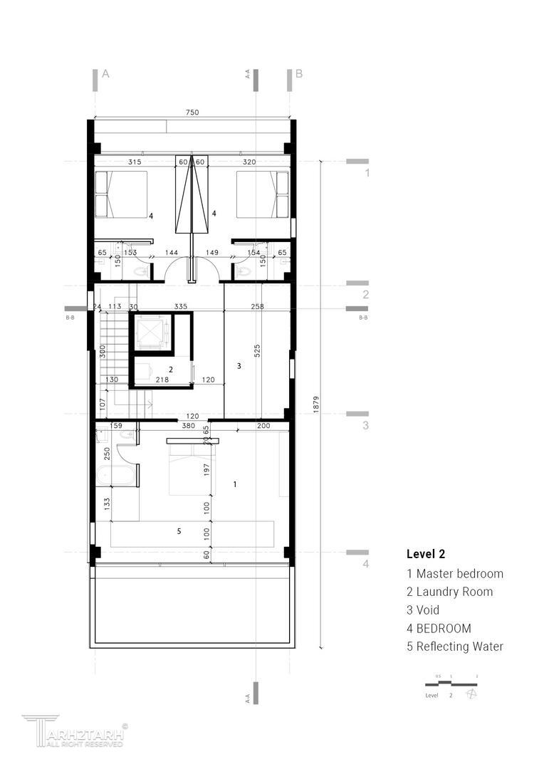
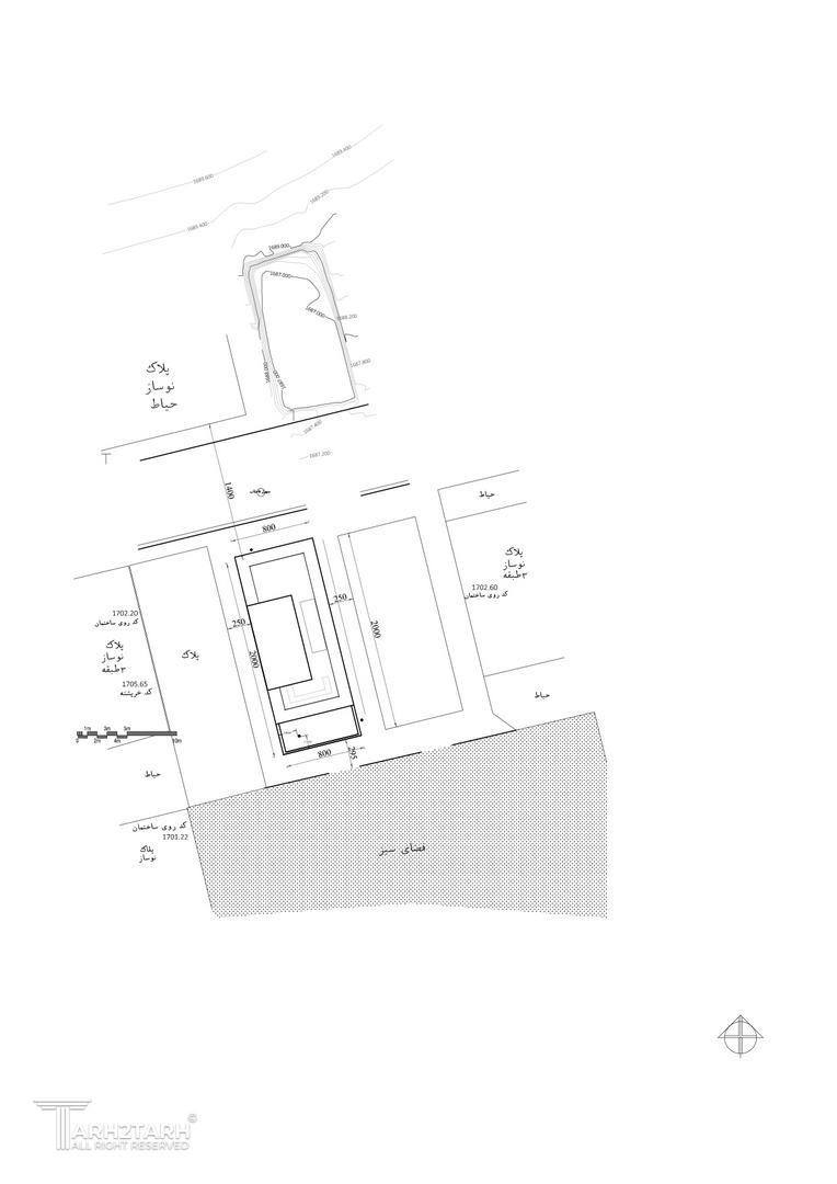
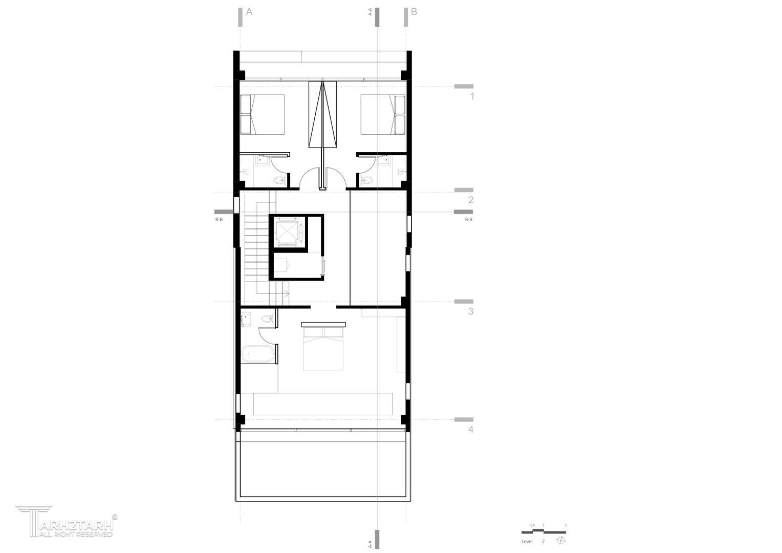
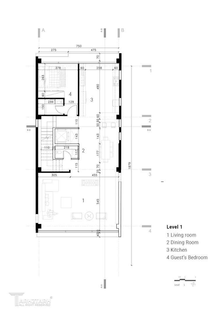
موقعیت مکانی پروژه

پیشنهاد و بازخورد