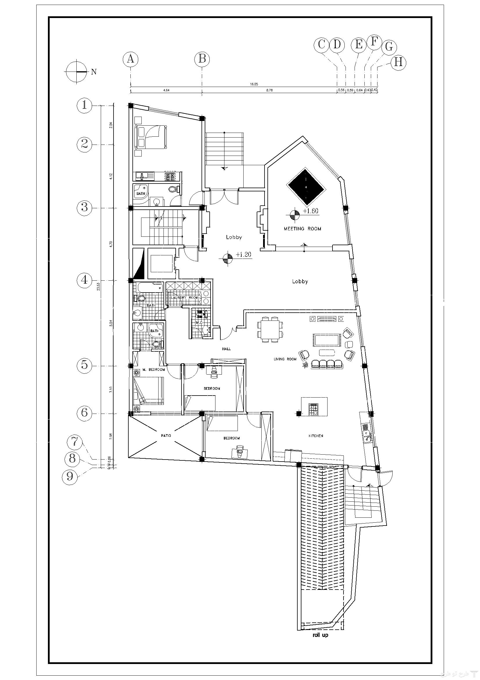
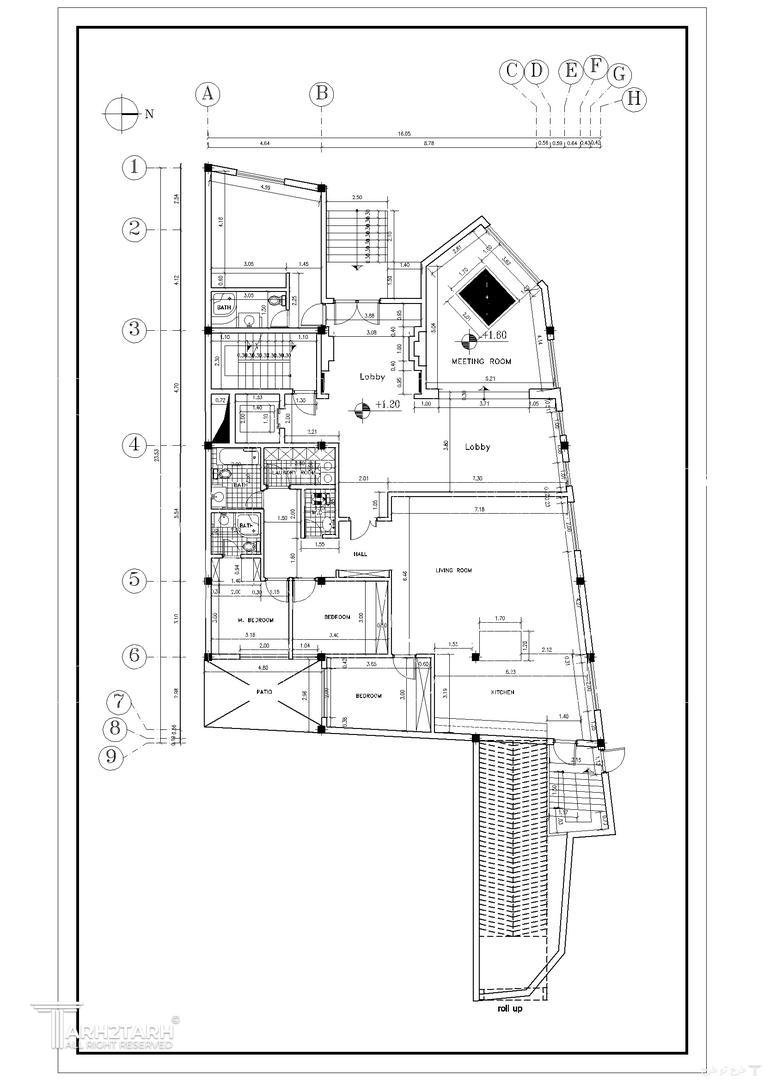
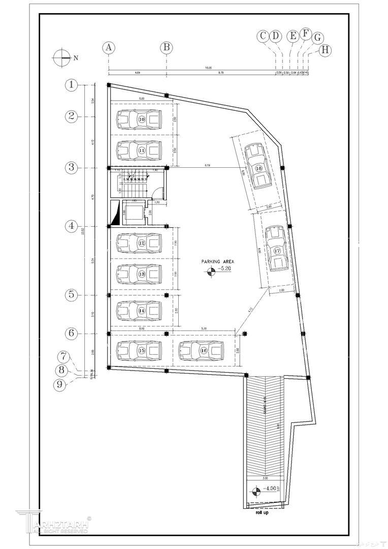
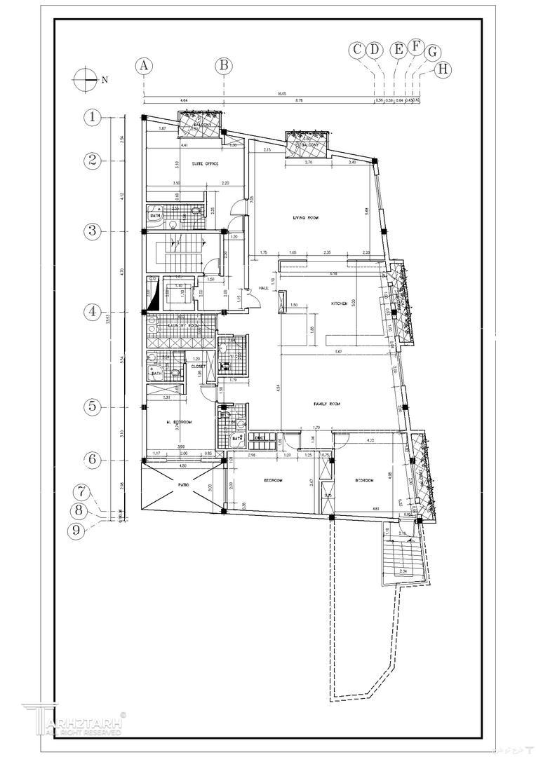
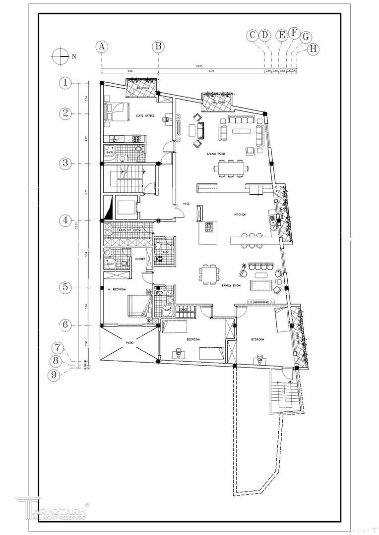
مسابقه طراحی پلان پروژه مانا

0

اطلاعات پروژه

نوشین رکنی

نوع مسابقه: طراحی مسکونی
سال انجام پروژه : 1398
نقش: طراح
موقعیت : شاهرود
متراژ زیربنا : 7450
مساحت زمین : 5000
کارفرما : Morteza Abolhasani

موقعیت مکانی پروژه

پیشنهاد و بازخورد