نفر دوم مسابقه طراحی ساختمان مسکونی مهر لواسان

0

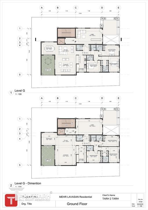
اطلاعات پروژه

دفترمعماری چکاد

نوع مسابقه: طراحی مسکونی
سال انجام پروژه : 1403
نقش: طراح
موقعیت : لواسان
متراژ زیربنا : 1500
مساحت زمین : 491
کارفرما : حسین طواف

خدمات ارائه شده توسط طراح

خدمات طراحی و کانسپت
طراحی پلان (نقشه معماری) فاز 1
طراحی نما
طراحی منظر، فضای سبز، لند اسکیپ، روف گاردن و محوطه
طراحی نورپردازی

موقعیت مکانی پروژه

پیشنهاد و بازخورد