مسابقه طراحی ساختمان مسکونی مدرنا

0

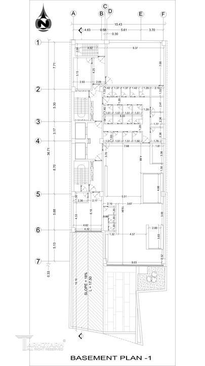
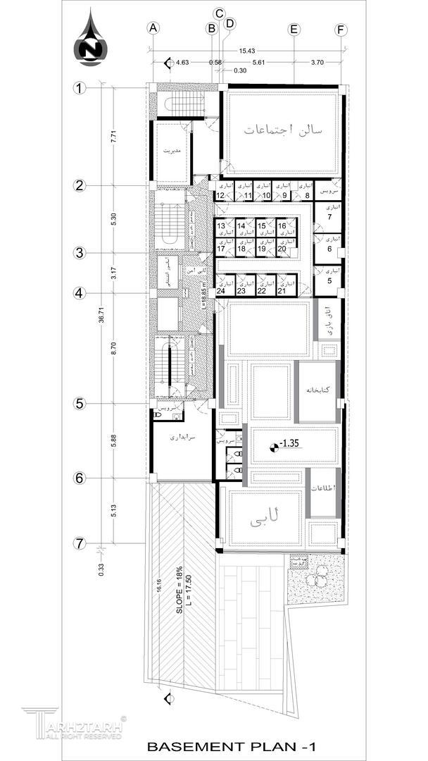
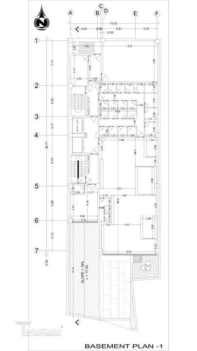
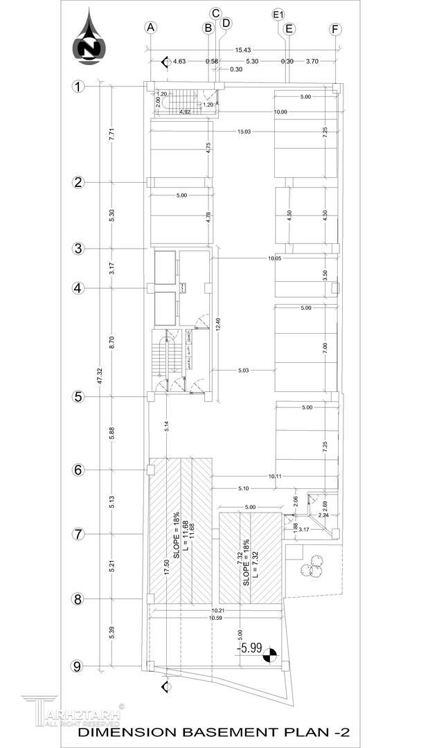
اطلاعات پروژه

hoodad-amirvahed

نوع مسابقه: طراحی مسکونی
سال انجام پروژه : 1404
نقش: طراح
موقعیت : تهران
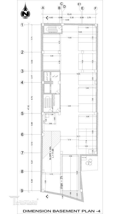
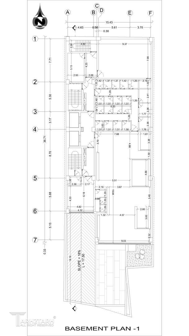
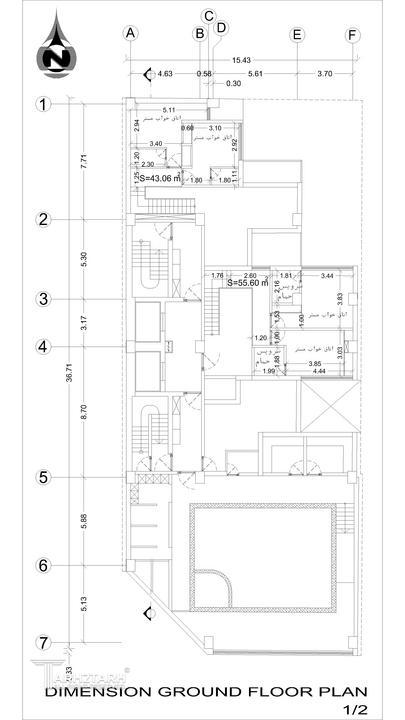
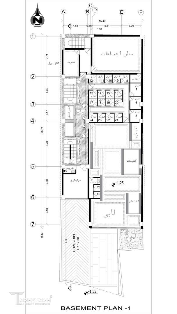
متراژ زیربنا : 6750
مساحت زمین : 799
کارفرما : سعید زمانی فر

خدمات ارائه شده توسط طراح

خدمات طراحی و کانسپت
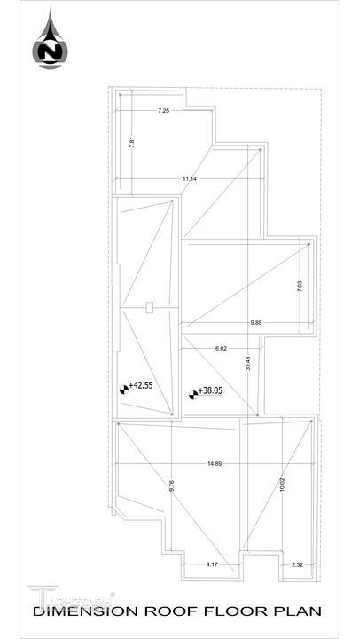
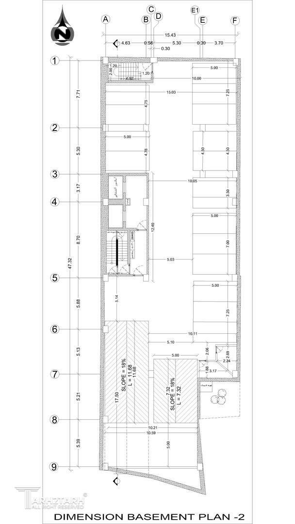
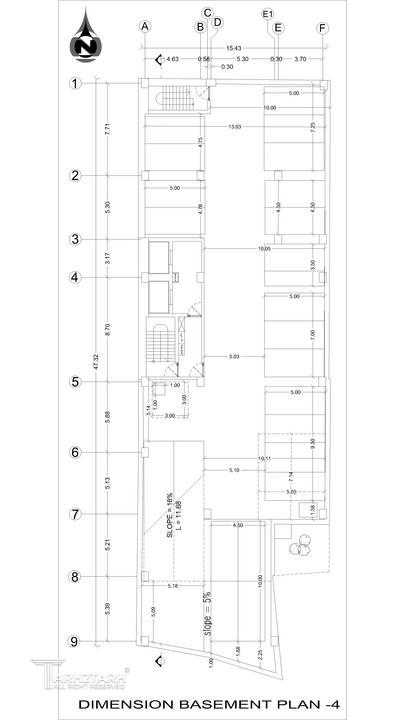
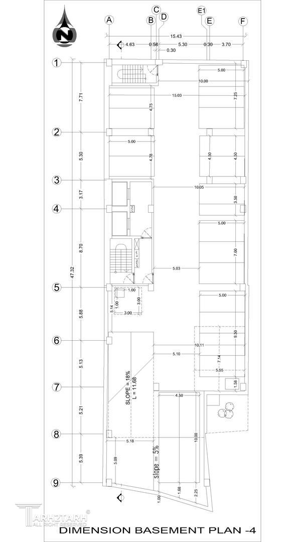
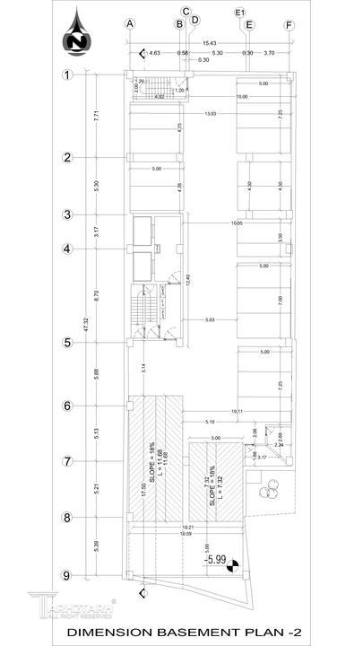
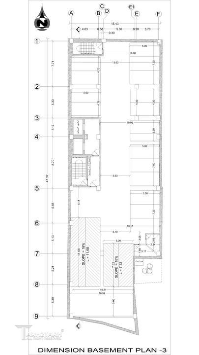
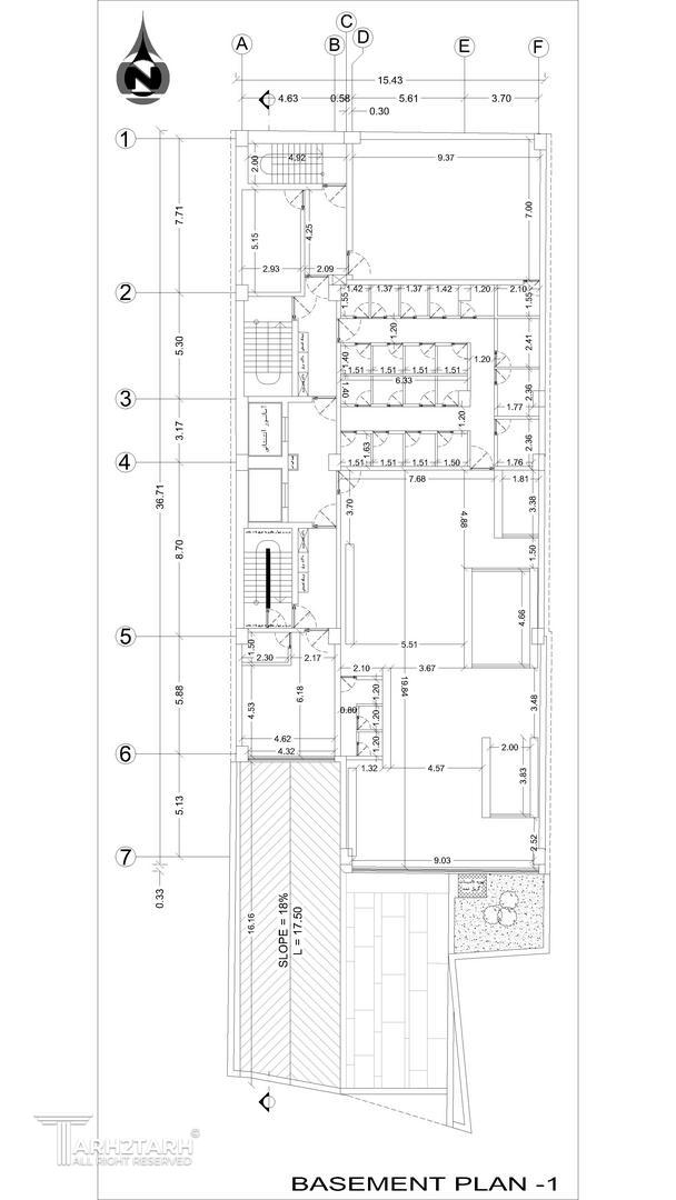
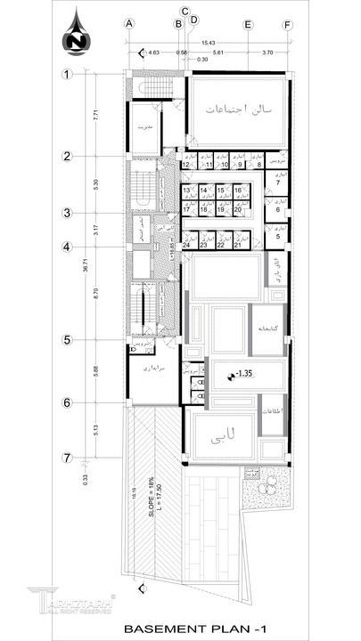
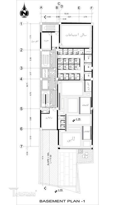
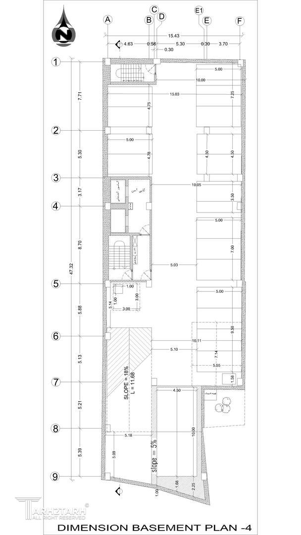
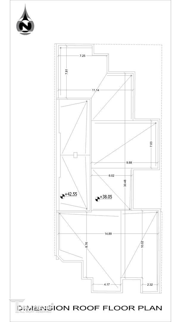
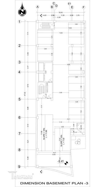
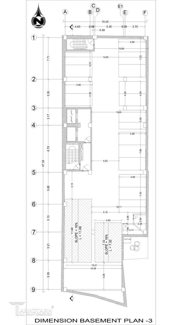
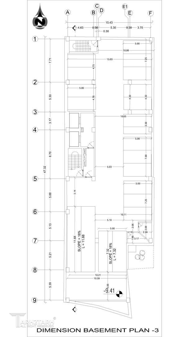
طراحی پلان (نقشه معماری) فاز 1
طراحی نما
طراحی منظر، فضای سبز، لند اسکیپ، روف گاردن و محوطه
طراحی نورپردازی

موقعیت مکانی پروژه

پیشنهاد و بازخورد