مسابقه طراحی ویلا نمک آبرود

0

اطلاعات پروژه

بهنام قربانی برزگر

نوع مسابقه: طراحی ویلا
سال انجام پروژه : 1401
نقش: طراح
موقعیت : چالوس
متراژ زیربنا : 313
مساحت زمین : 450
کارفرما : محمد احتشامی

خدمات ارائه شده توسط طراح

خدمات طراحی و کانسپت
طراحی منظر، فضای سبز، لند اسکیپ، روف گاردن و محوطه
طراحی نورپردازی
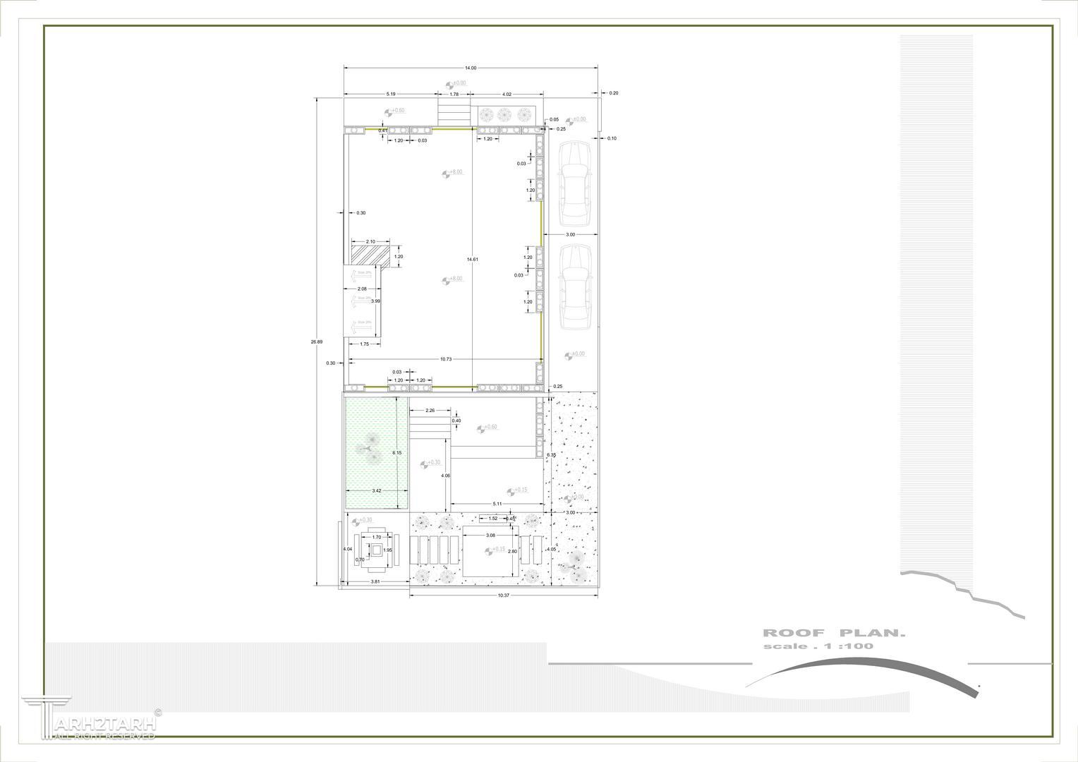
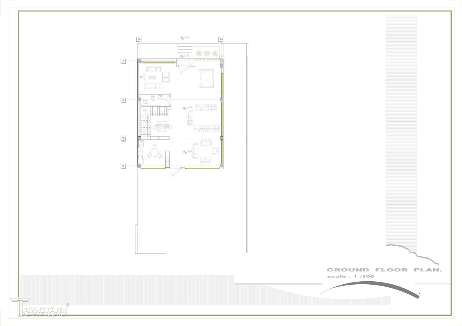
طراحی پلان (نقشه معماری) فاز 1
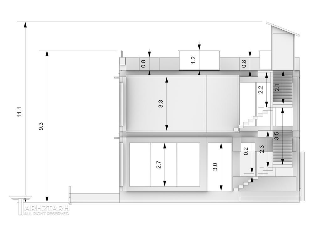
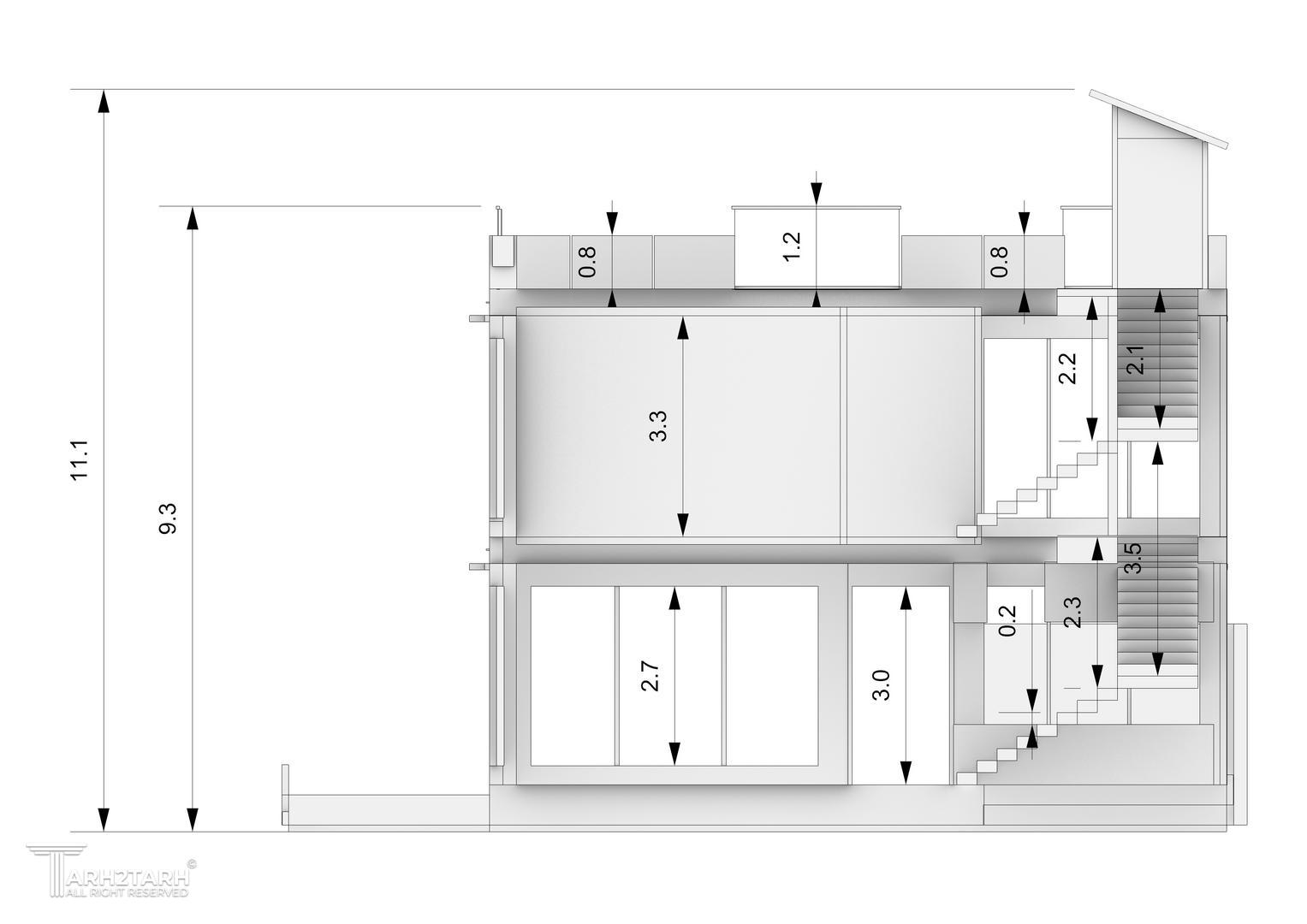
طراحی نما

موقعیت مکانی پروژه

پیشنهاد و بازخورد