نفر سوم مسابقه طراحی ویلا نارنج

0

اطلاعات پروژه

Diyar Architects

نوع مسابقه: طراحی ویلا
سال انجام پروژه : 1401
نقش: طراح
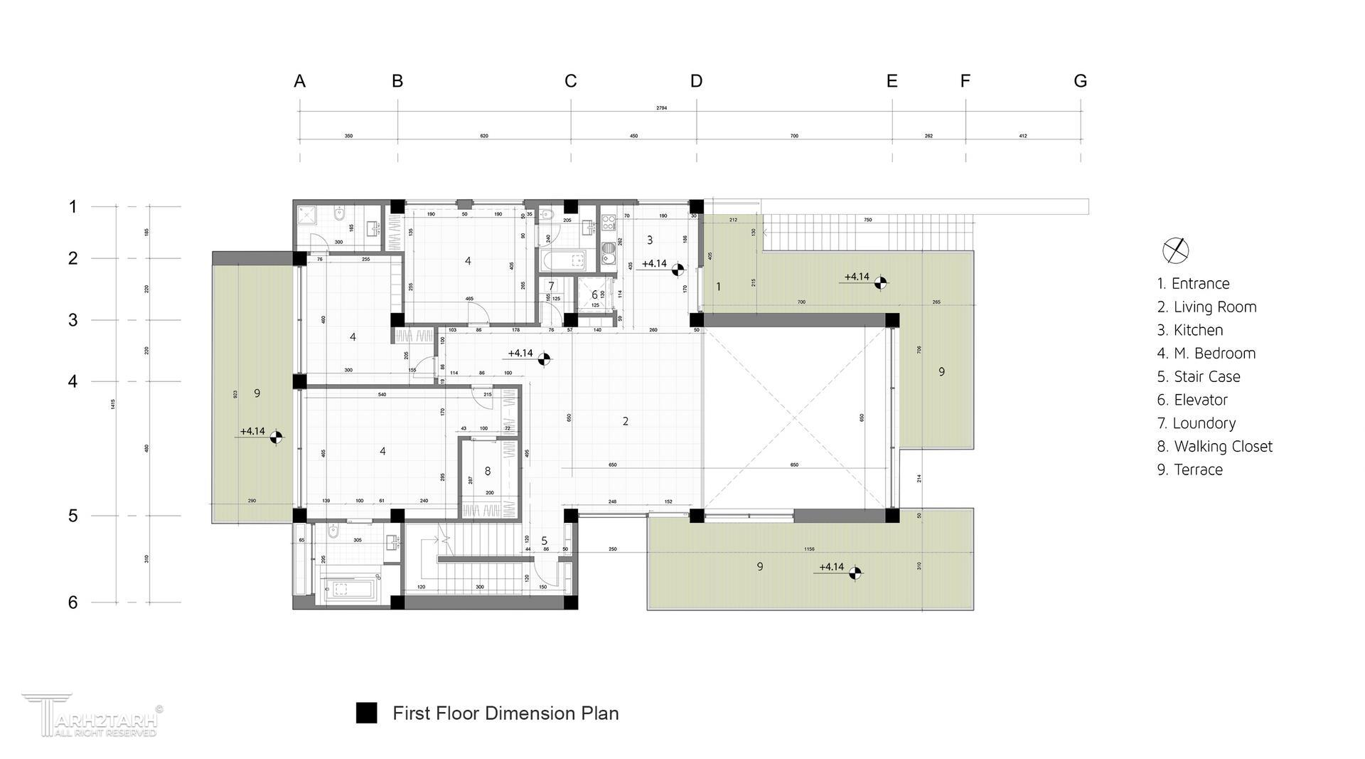
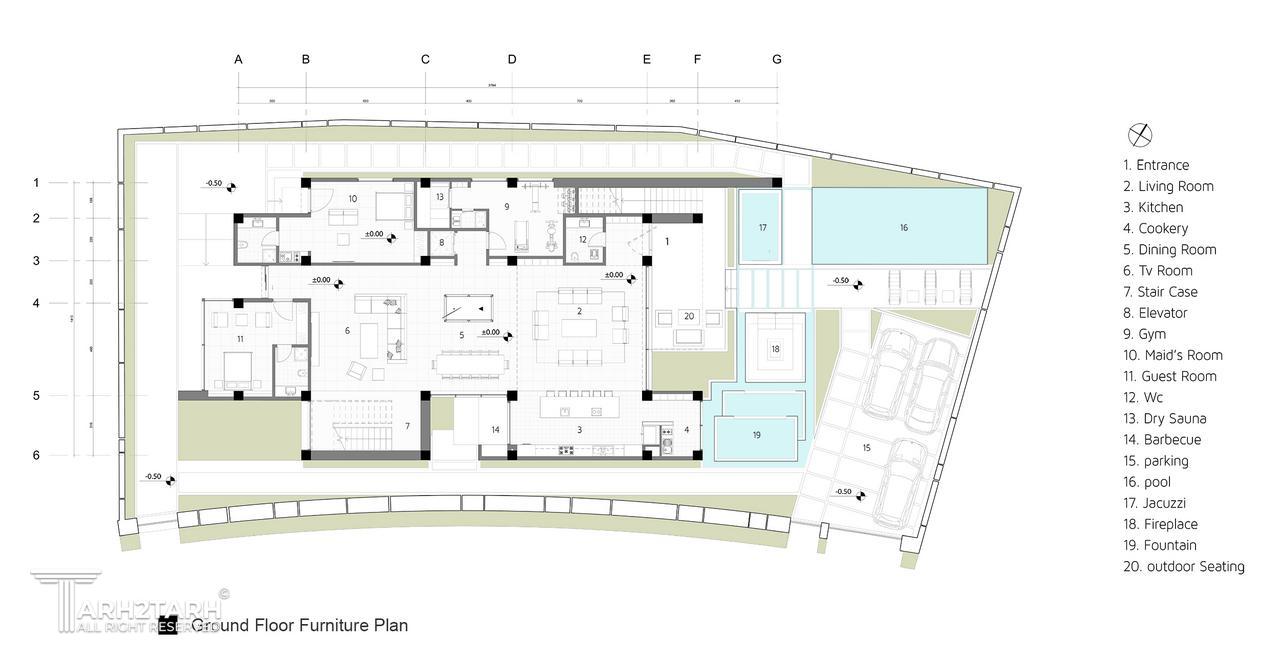
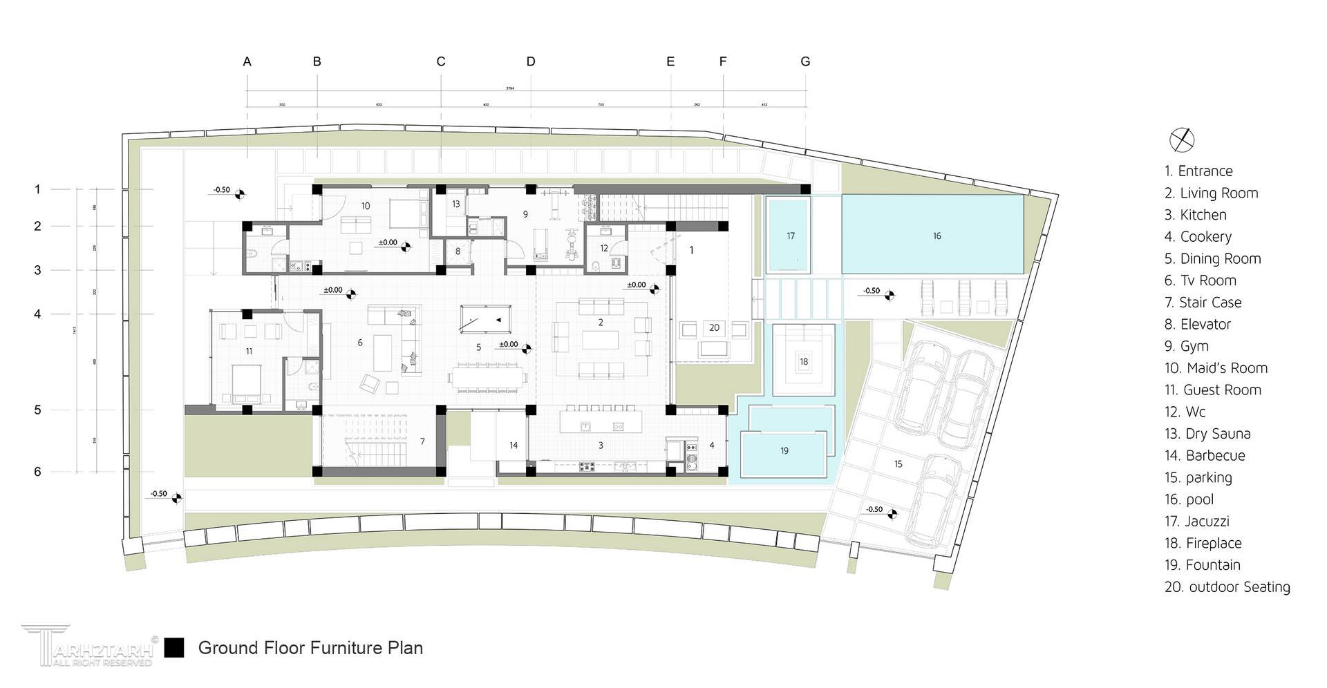
متراژ زیربنا : 600
کارفرما : جعفری

خدمات ارائه شده توسط طراح

خدمات طراحی و کانسپت
طراحی منظر، فضای سبز، لند اسکیپ، روف گاردن و محوطه
طراحی نورپردازی
طراحی پلان (نقشه معماری) فاز 1
طراحی نما
طراحی داخلی
پیشنهاد و بازخورد