مسابقه طراحی پلان و نما ساختمان نومل

0

اطلاعات پروژه

امیر حسین جعفری

نوع مسابقه: طراحی مسکونی
سال انجام پروژه : 1402
نقش: طراح
موقعیت : تهران
متراژ زیربنا : 1730
مساحت زمین : 450
کارفرما : گروه ساختمانی بنیان

خدمات ارائه شده توسط طراح

خدمات طراحی و کانسپت
طراحی نورپردازی
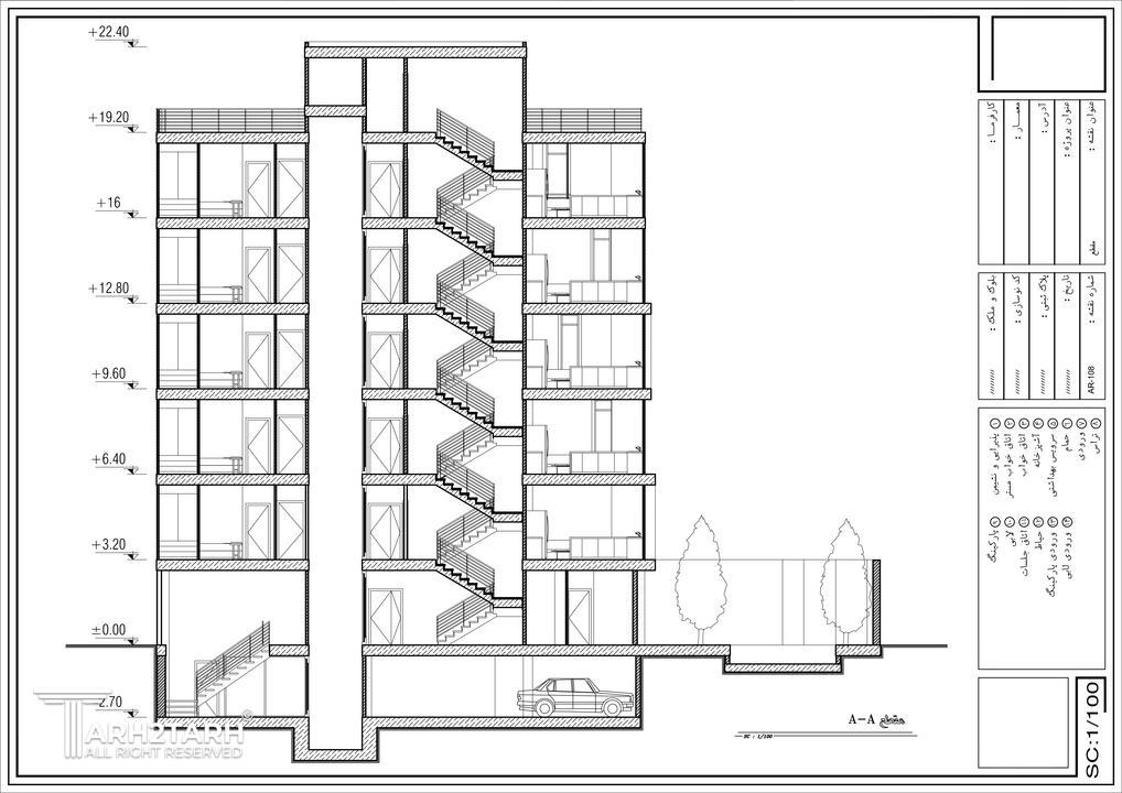
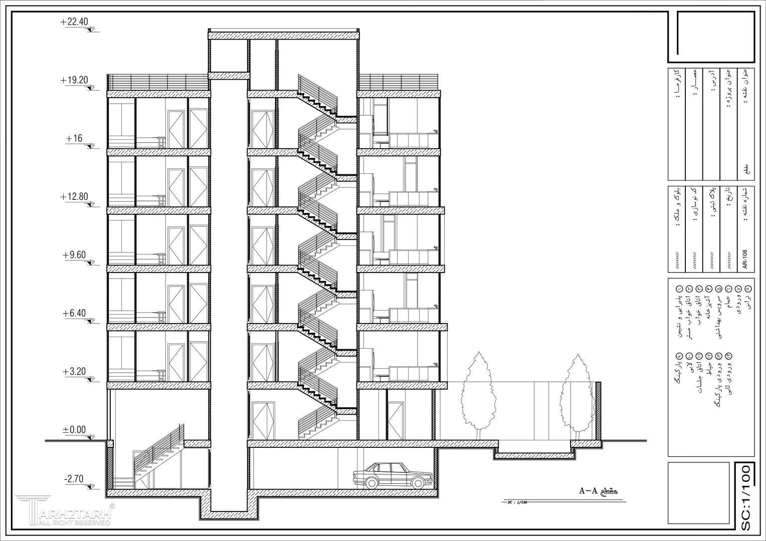
طراحی پلان (نقشه معماری) فاز 1
طراحی نما

موقعیت مکانی پروژه

پیشنهاد و بازخورد