نفر دوم مسابقه طراحی ویلا اُلند 20

0

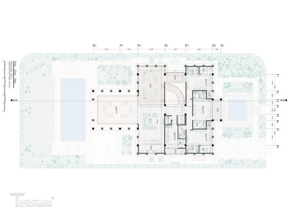
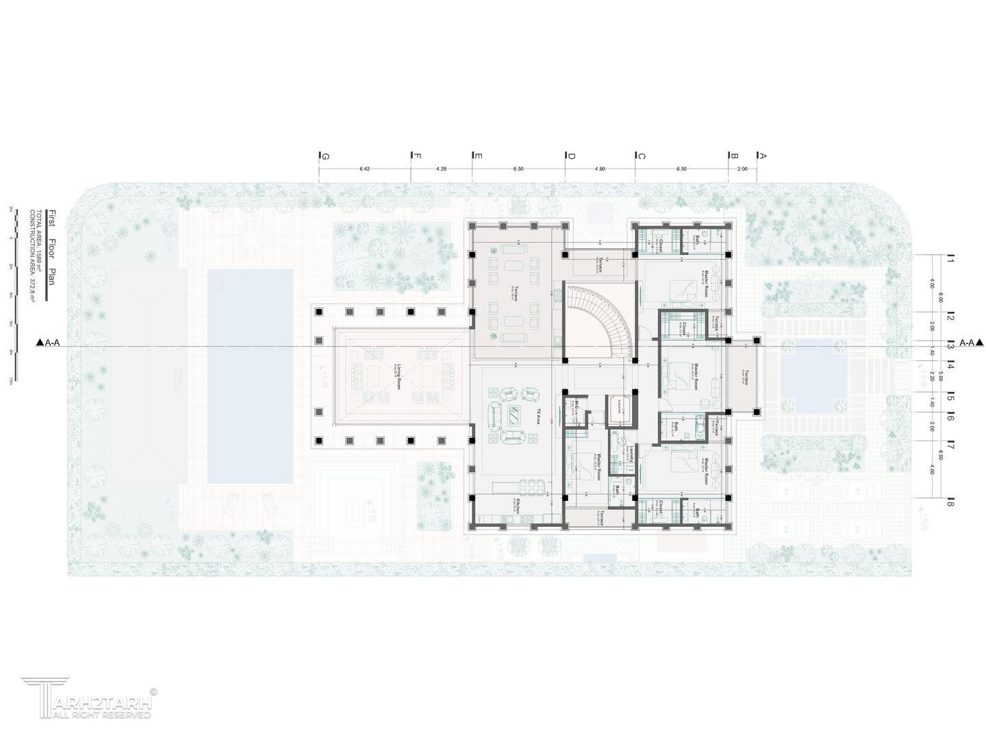
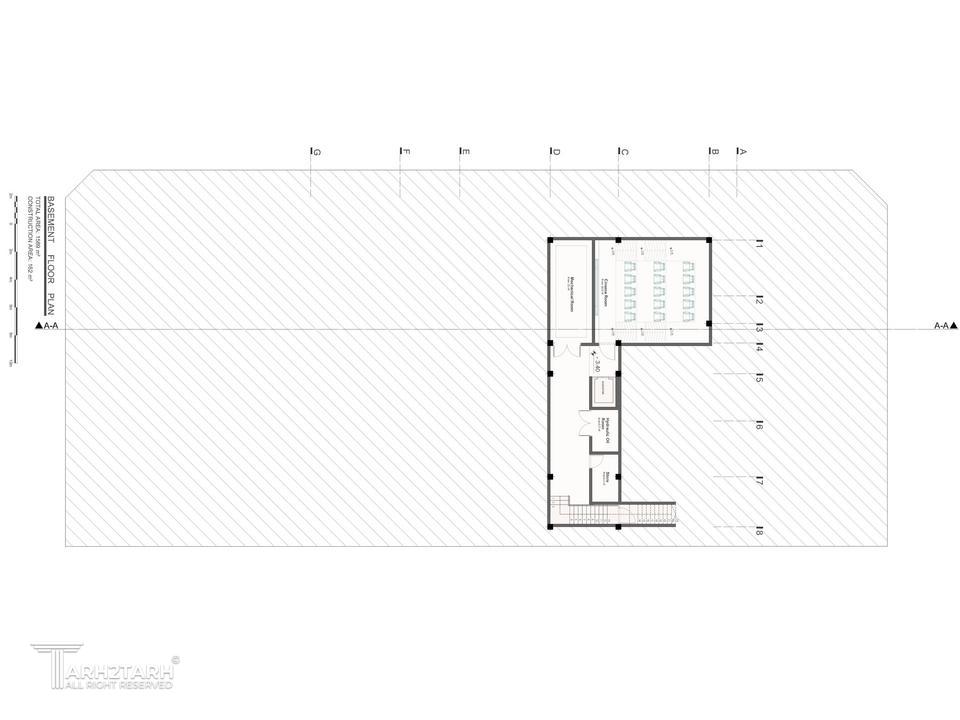
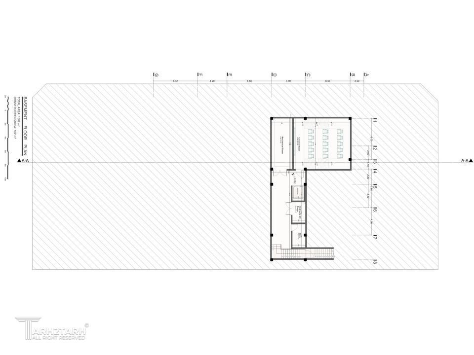
اطلاعات پروژه

Radius office

نوع مسابقه: طراحی ویلا
سال انجام پروژه : 1404
نقش: طراح
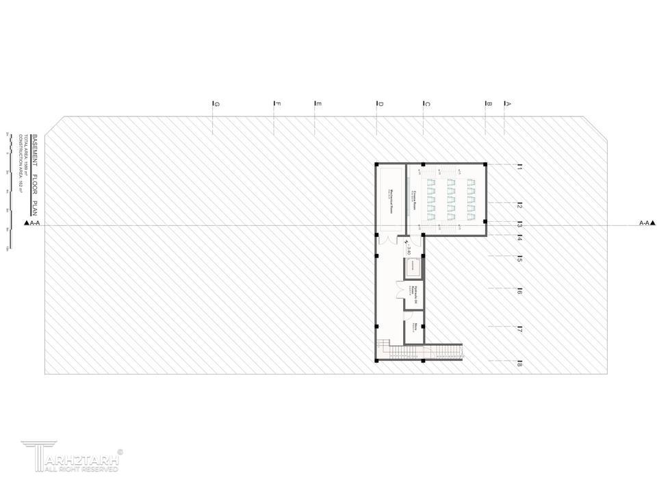
موقعیت : عباس آباد
متراژ زیربنا : 900
مساحت زمین : 1500
کارفرما : مهدی بیاتی

خدمات ارائه شده توسط طراح

خدمات طراحی و کانسپت
طراحی پلان (نقشه معماری) فاز 1
طراحی داخلی
دکوراسیون داخلی
طراحی منظر، فضای سبز، لند اسکیپ، روف گاردن و محوطه
طراحی نورپردازی
طراحی مبلمان سفارشی
پیشنهاد و بازخورد