مسابقه طراحی ویلا الند 20

0

اطلاعات پروژه

ARMINARMANSTUDIO

نوع مسابقه: طراحی ویلا
سال انجام پروژه : 1404
نقش: طراح
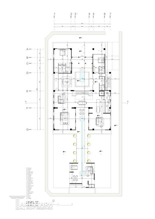
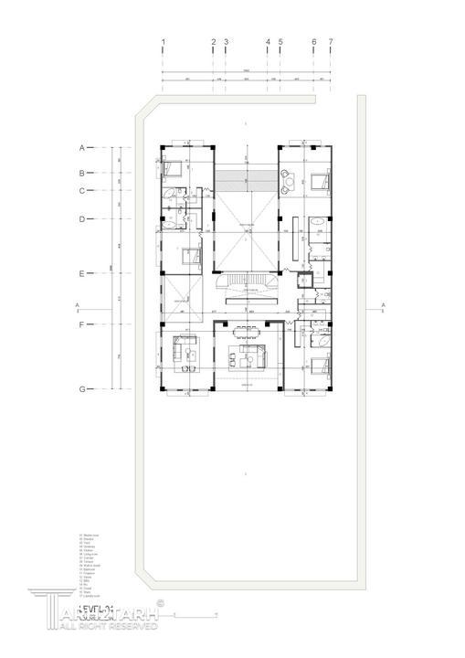
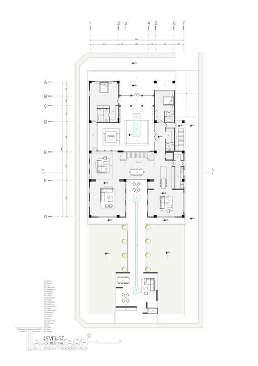
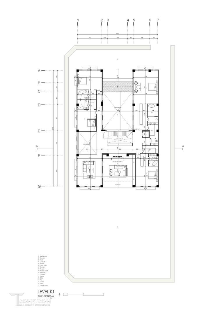
موقعیت : عباس آباد
متراژ زیربنا : 900
مساحت زمین : 1500
کارفرما : مهدی بیاتی

خدمات ارائه شده توسط طراح

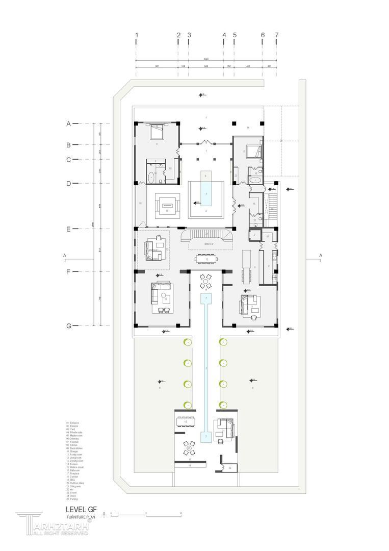
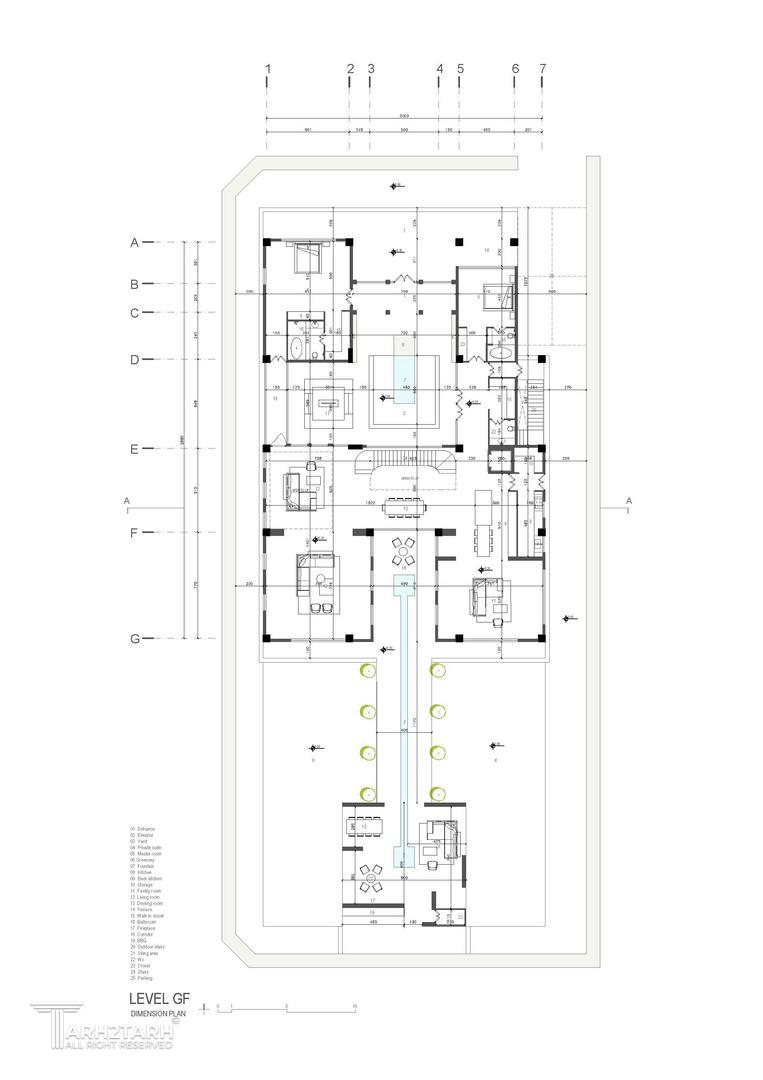
خدمات طراحی و کانسپت
دکوراسیون داخلی
طراحی منظر، فضای سبز، لند اسکیپ، روف گاردن و محوطه
طراحی نورپردازی
طراحی مبلمان سفارشی
طراحی پلان (نقشه معماری) فاز 1
طراحی داخلی
پیشنهاد و بازخورد