مسابقه توده گذاری ویلاها و طراحی ساختمان مشاعات شهرک الند (Oland)

0

اطلاعات پروژه

MAA Studio

نوع مسابقه: طراحی ویلا
سال انجام پروژه : 1402
نقش: طراح
موقعیت : عباس آباد
متراژ زیربنا : 1200
مساحت زمین : 30000
کارفرما : ARTabesh

خدمات ارائه شده توسط طراح

خدمات طراحی و کانسپت
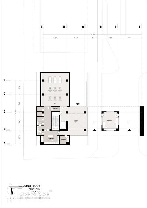
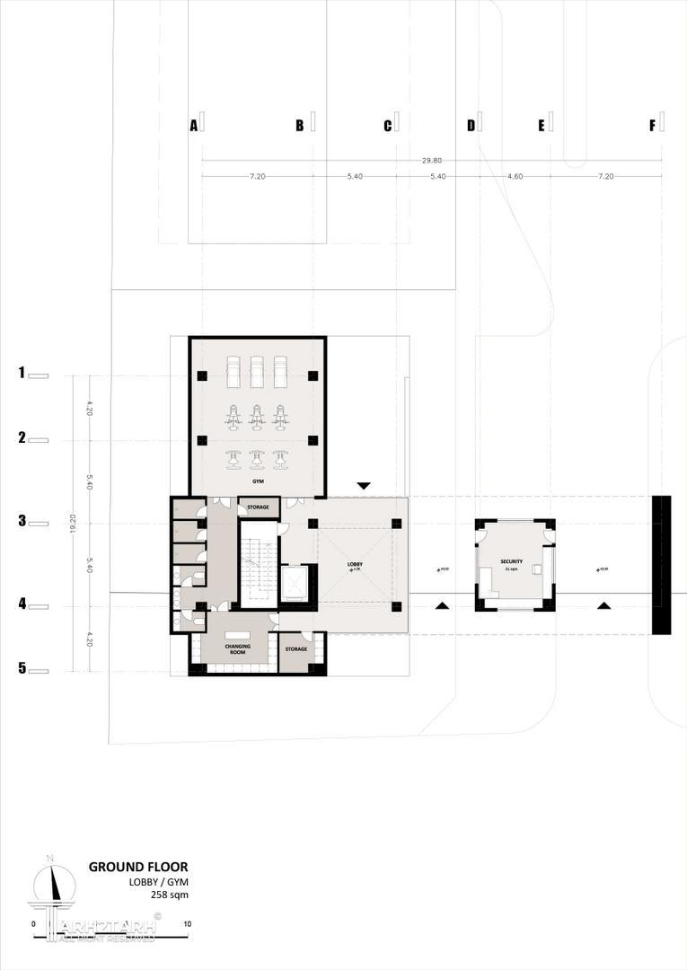
طراحی پلان (نقشه معماری) فاز 1
طراحی نما
طراحی منظر، فضای سبز، لند اسکیپ، روف گاردن و محوطه
طراحی نورپردازی

موقعیت مکانی پروژه

پیشنهاد و بازخورد