نفر دوم مسابقه طراحی ویلا الند 7 (شهرک الند)

0

اطلاعات پروژه

محمدصادق فروغی

نوع مسابقه: طراحی ویلا
سال انجام پروژه : 1404
نقش: طراح
موقعیت : کلارآباد
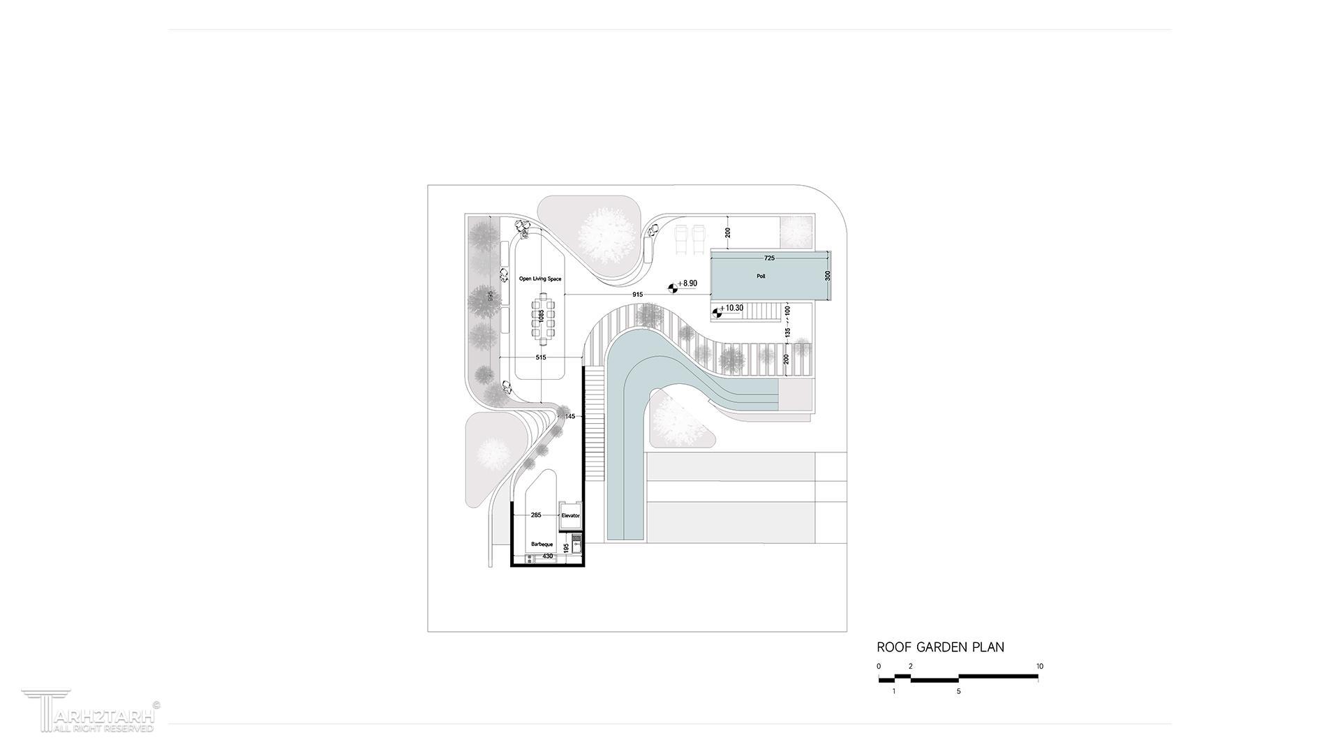
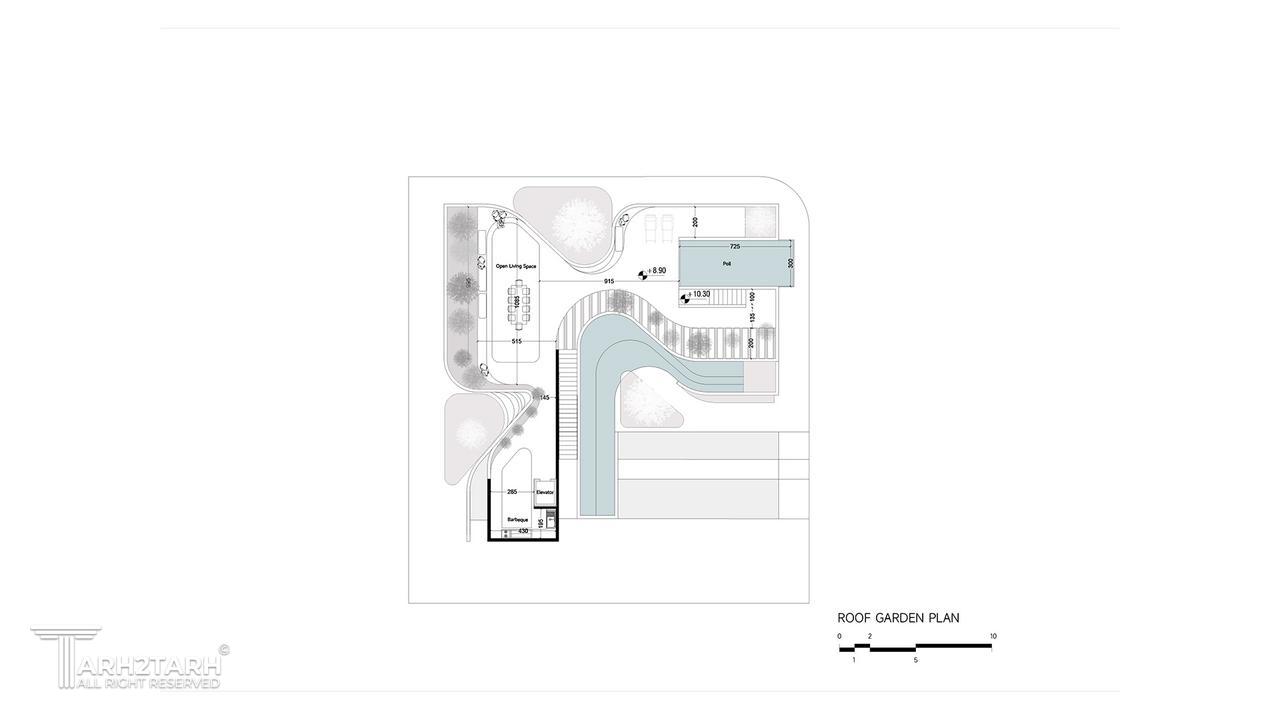
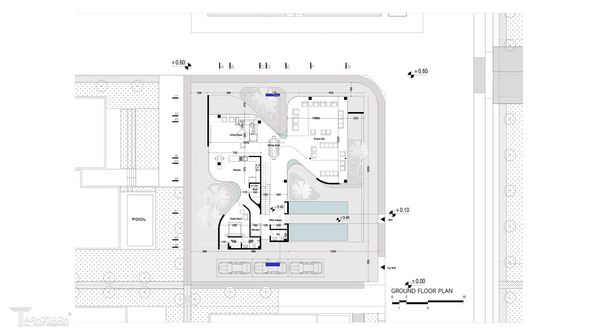
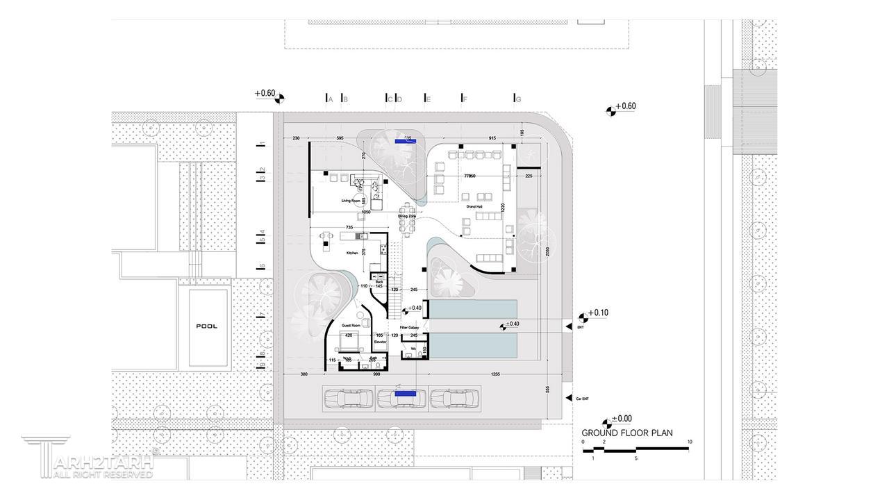
متراژ زیربنا : 820
مساحت زمین : 650
کارفرما : محمدرضا توسلی نیا

موقعیت مکانی پروژه

پیشنهاد و بازخورد