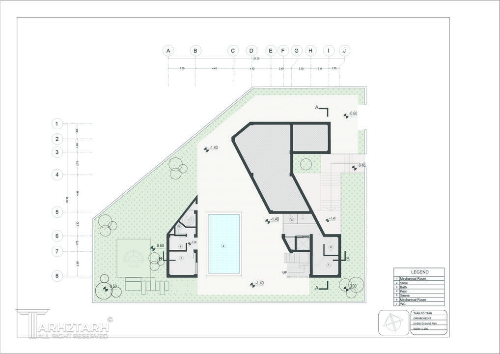
مسابقه طراحی ویلا اردیبهشت

0

اطلاعات پروژه

SeHe

نوع مسابقه: طراحی ویلا
سال انجام پروژه : 1403
نقش: طراح
موقعیت : عباس آباد
متراژ زیربنا : 400
مساحت زمین : 400
کارفرما : احمد نیو

خدمات ارائه شده توسط طراح

خدمات طراحی و کانسپت
طراحی منظر، فضای سبز، لند اسکیپ، روف گاردن و محوطه
طراحی نورپردازی
طراحی پلان (نقشه معماری) فاز 1
طراحی نما
طراحی داخلی
پیشنهاد و بازخورد