مسابقه طراحی ساختمان مسکونی پالیزلند

0

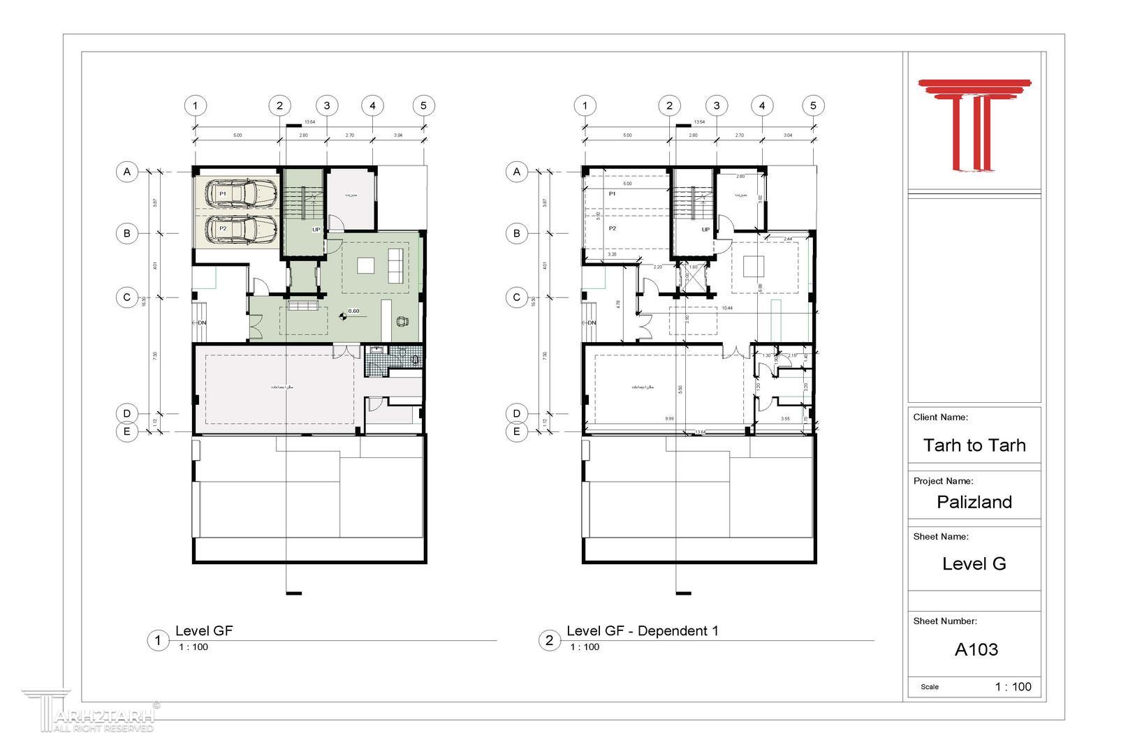
اطلاعات پروژه

دفترمعماری چکاد

نوع مسابقه: طراحی مسکونی
سال انجام پروژه : 1403
نقش: طراح
موقعیت : تهران
متراژ زیربنا : 1900
مساحت زمین : 350
کارفرما : شهرزاد قاضی زاده

خدمات ارائه شده توسط طراح

خدمات طراحی و کانسپت
طراحی پلان (نقشه معماری) فاز 1
طراحی نما
طراحی منظر، فضای سبز، لند اسکیپ، روف گاردن و محوطه

موقعیت مکانی پروژه

پیشنهاد و بازخورد