مسابقه طراحی ساختمان مسکونی پرنا

0

اطلاعات پروژه

سنا رستگار-امیرمحمد رزاقی

نوع مسابقه: طراحی مسکونی
سال انجام پروژه : 1401
نقش: طراح
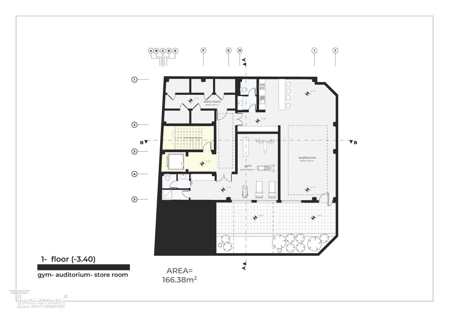
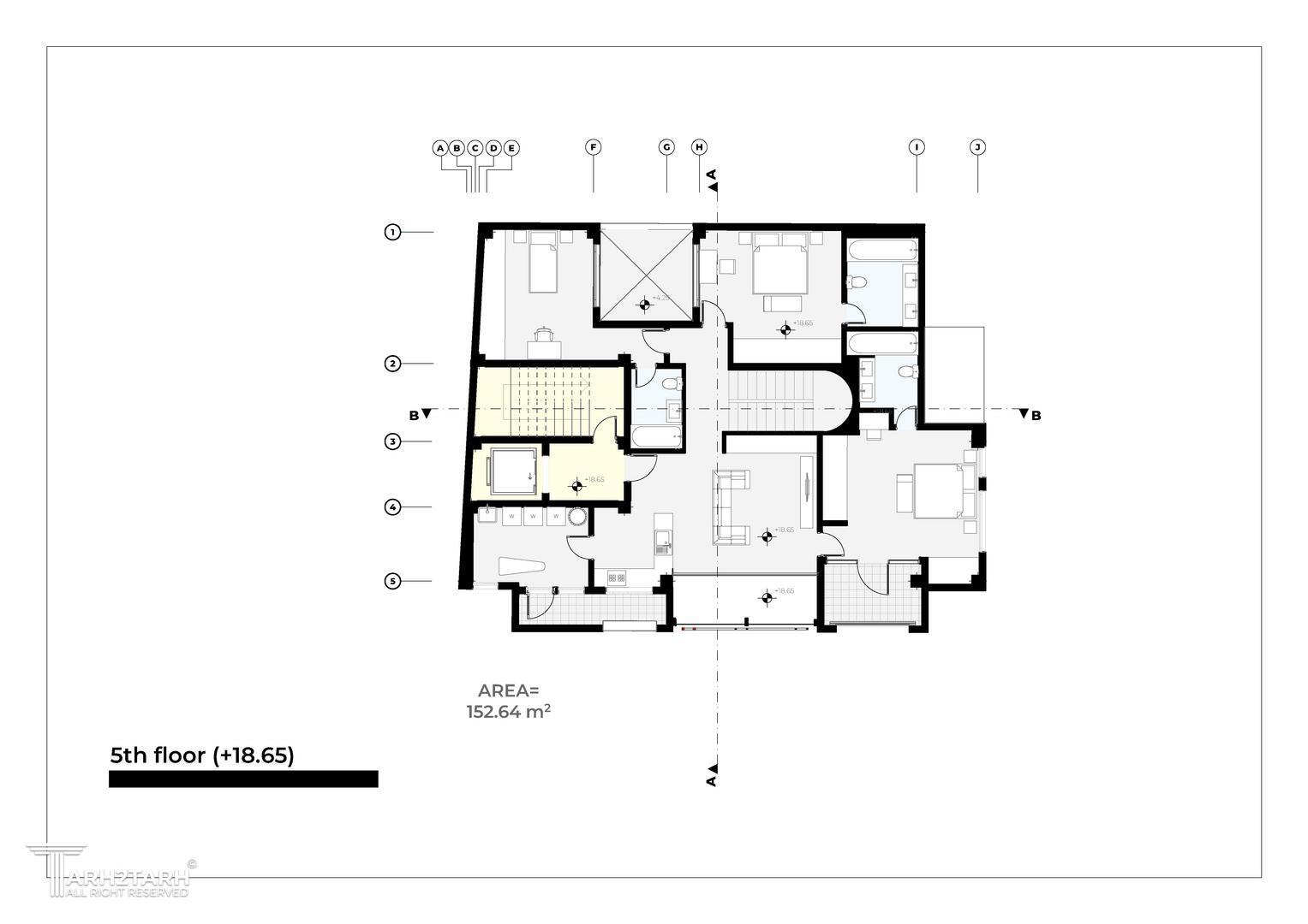
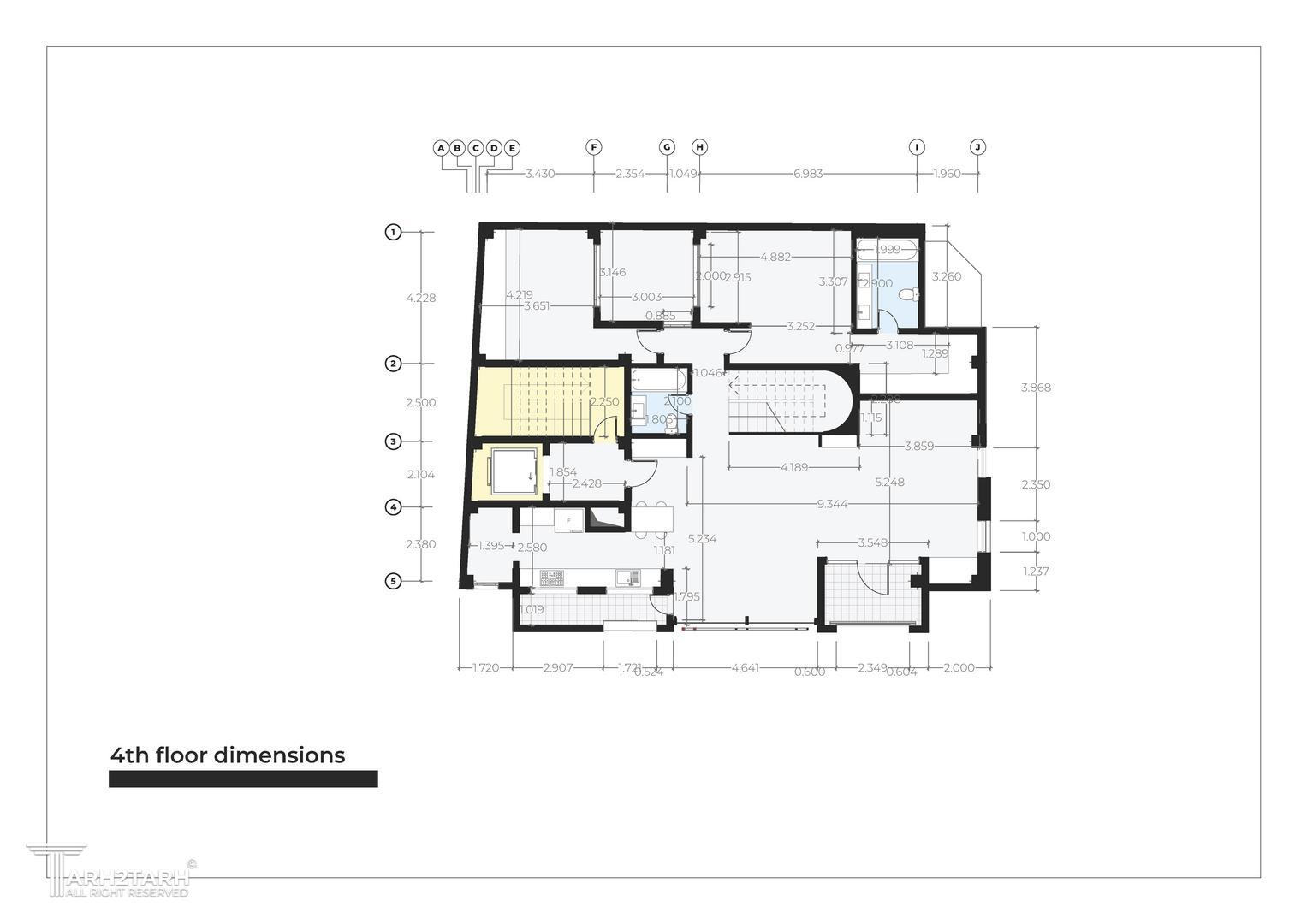
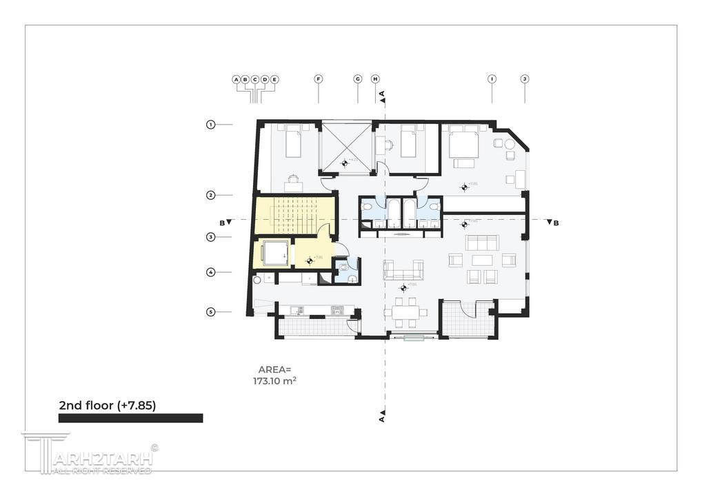
موقعیت : تبریز
متراژ زیربنا : 1400
مساحت زمین : 300
کارفرما : بهنام شجاعی

خدمات ارائه شده توسط طراح

خدمات طراحی و کانسپت
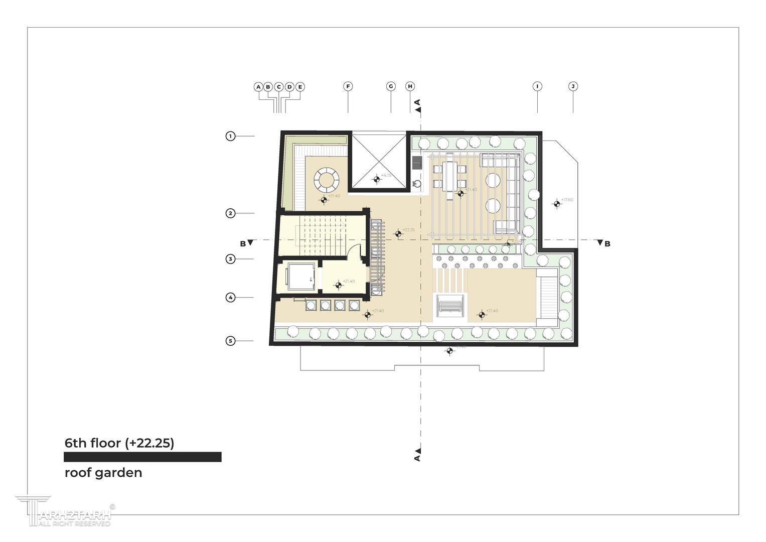
طراحی منظر، فضای سبز، لند اسکیپ، روف گاردن و محوطه
طراحی نورپردازی
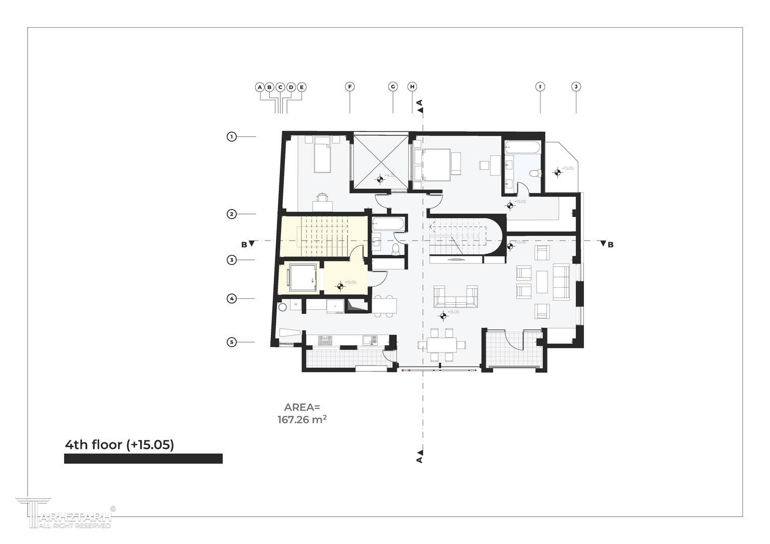
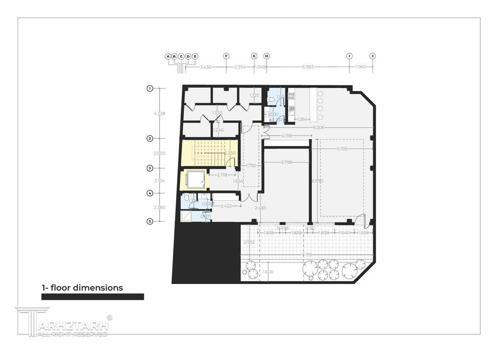
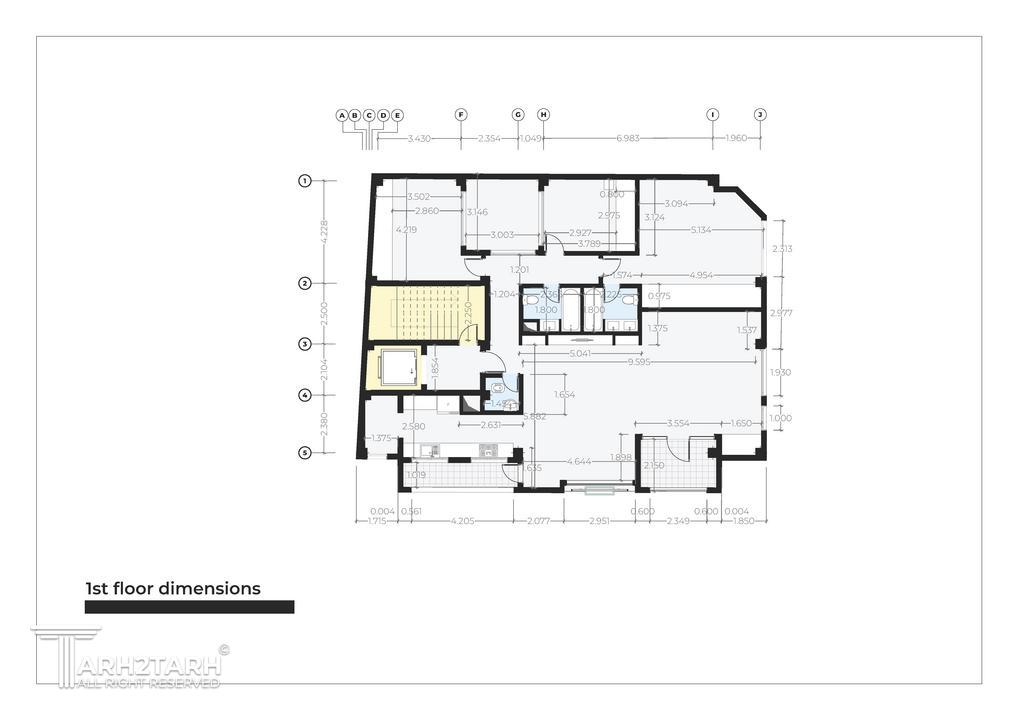
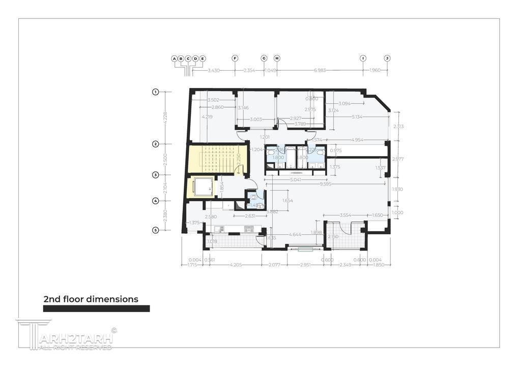
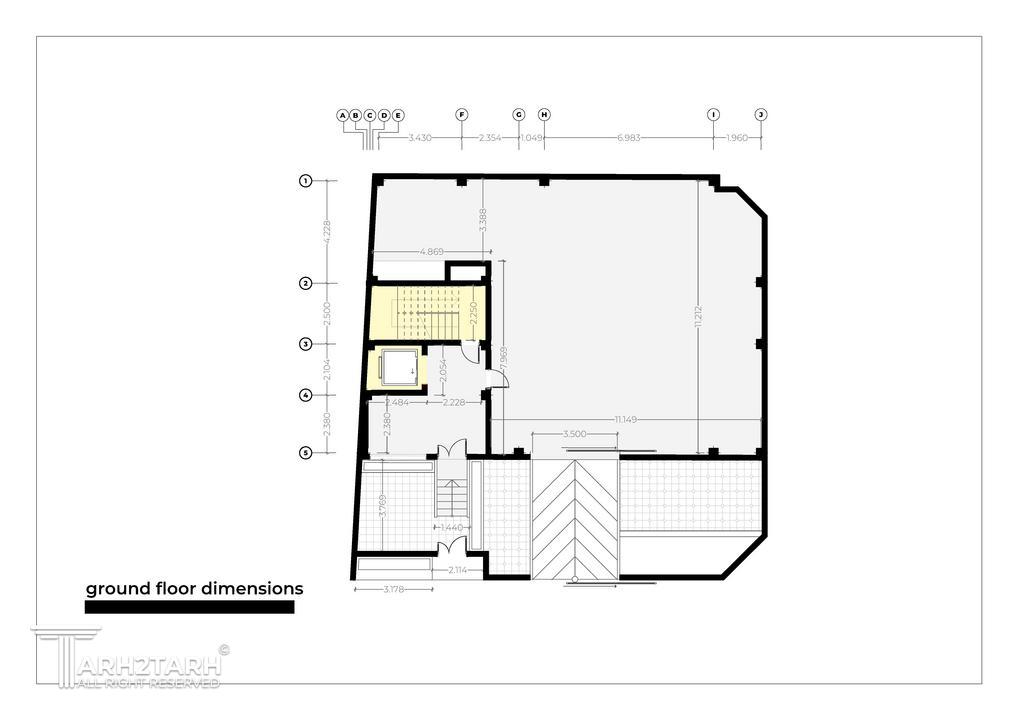
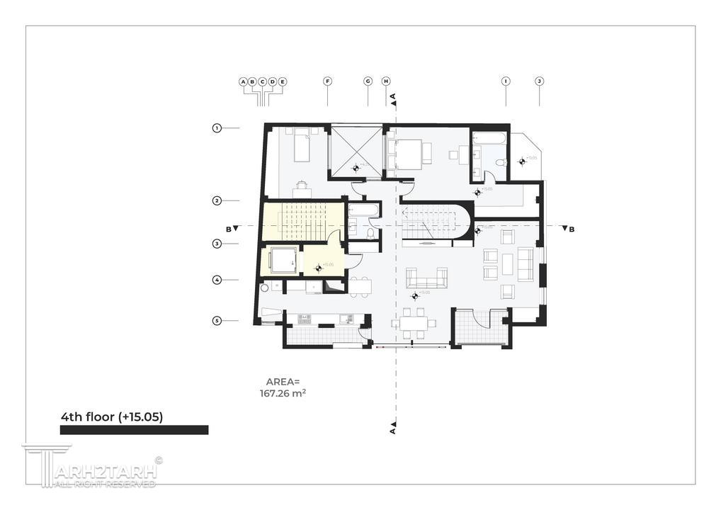
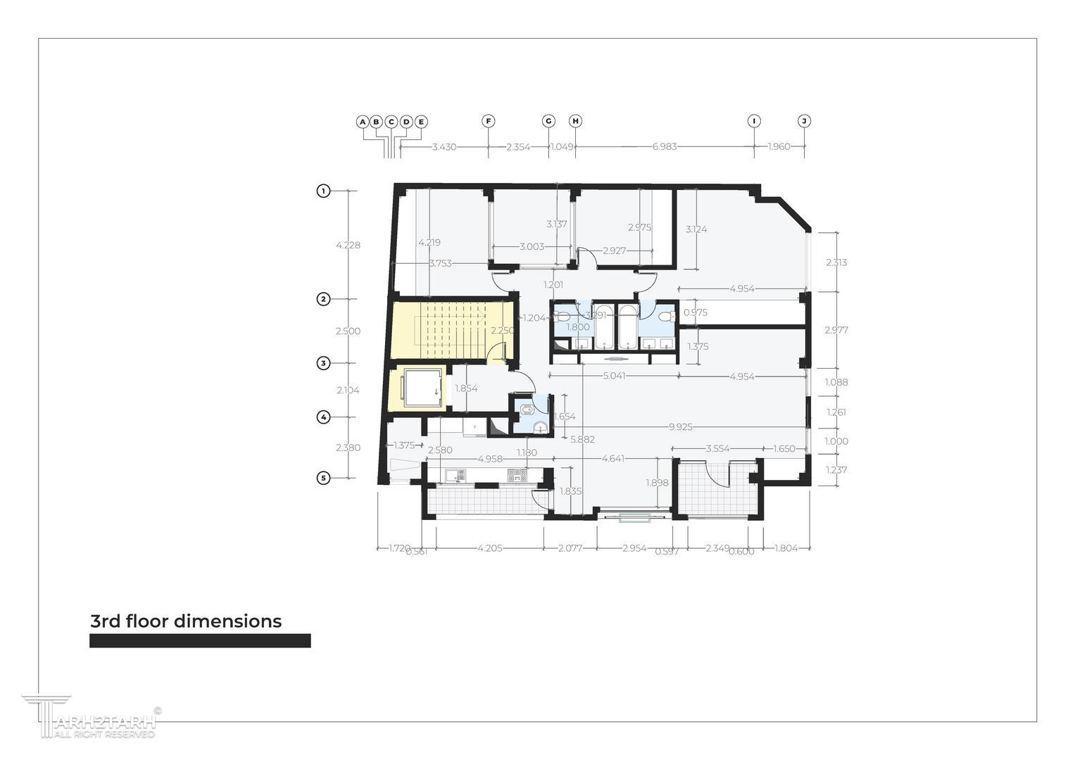
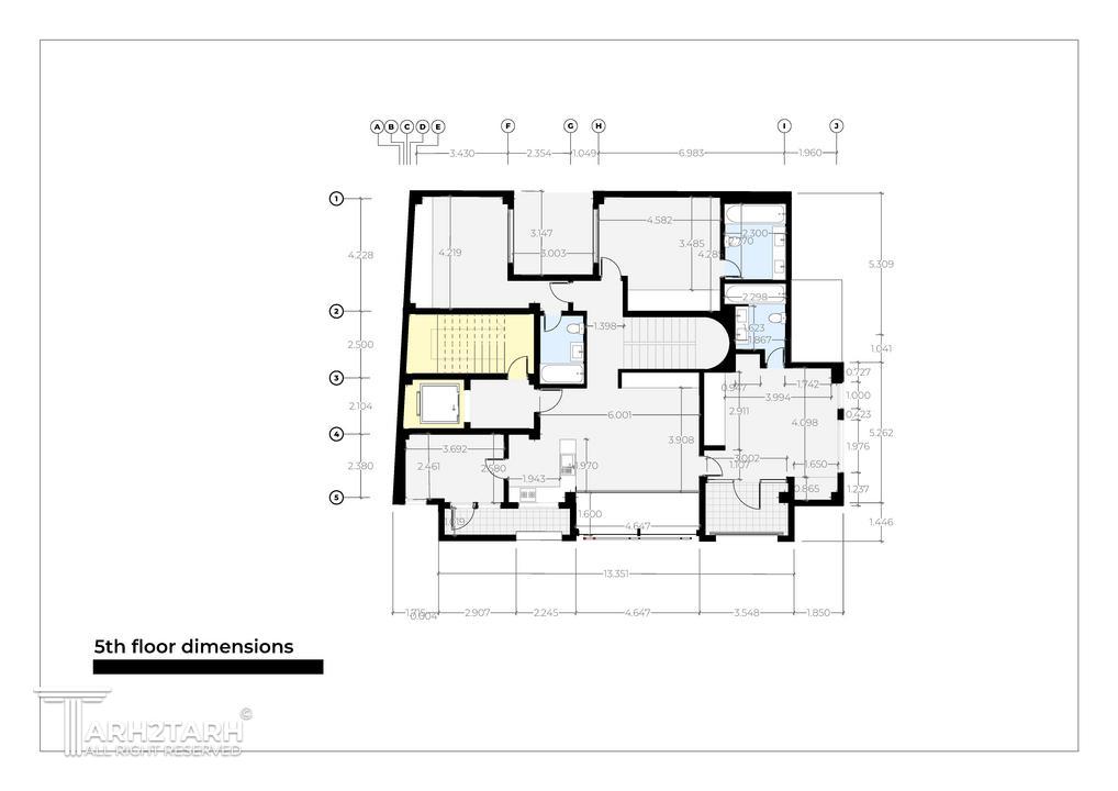
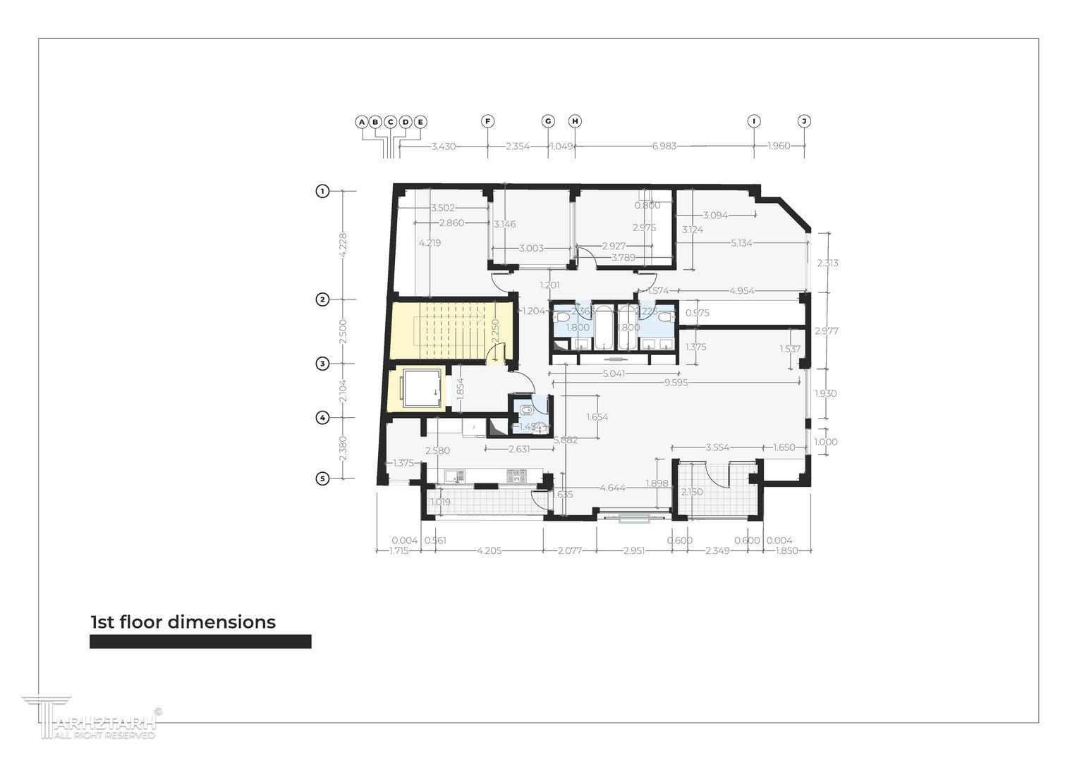
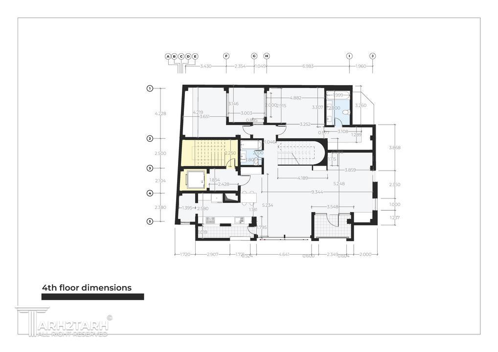
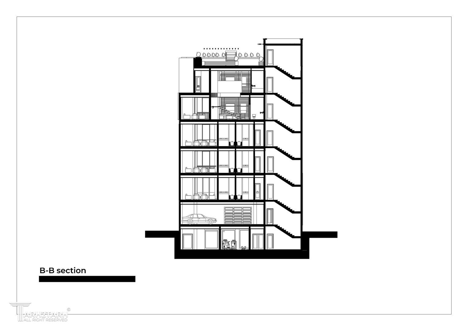
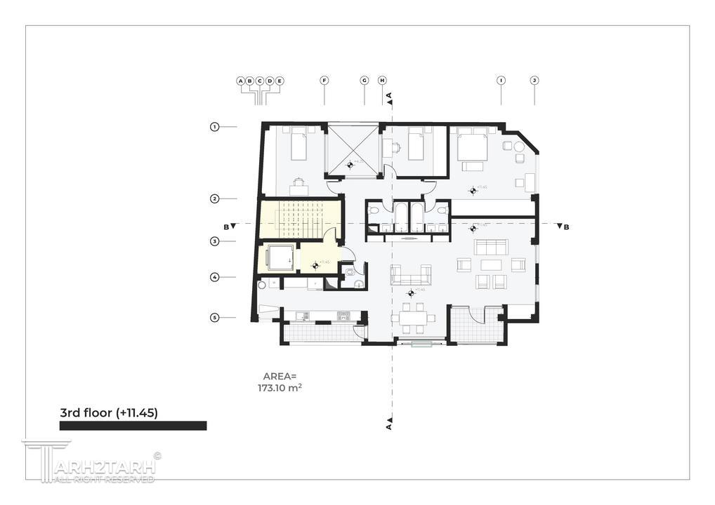
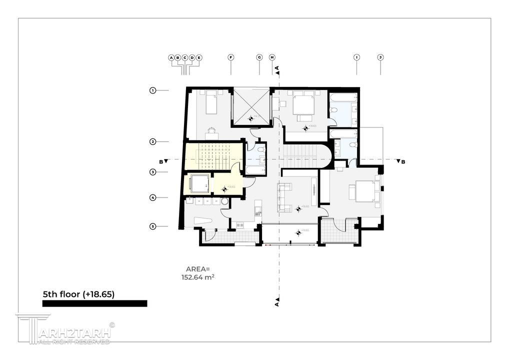
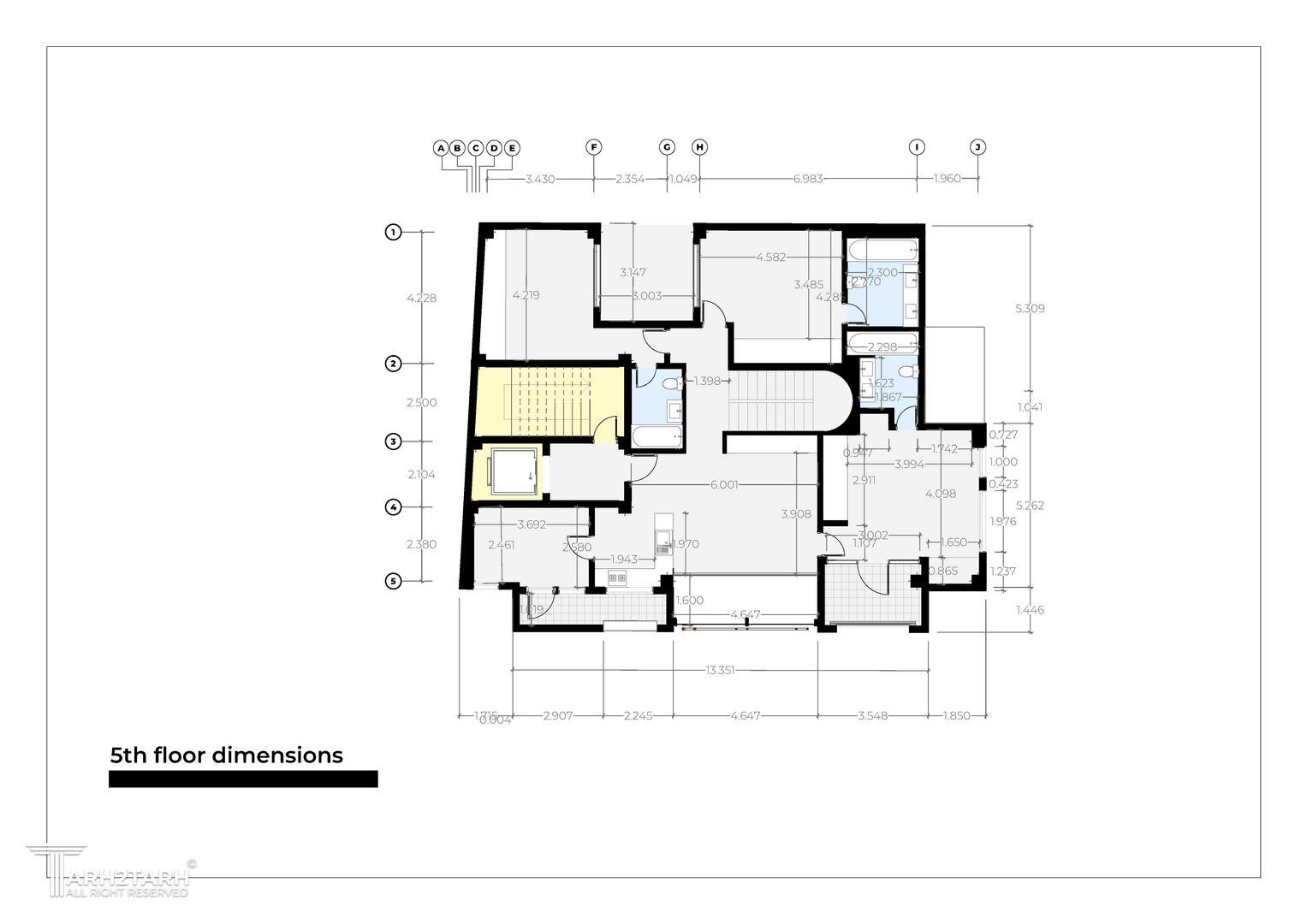
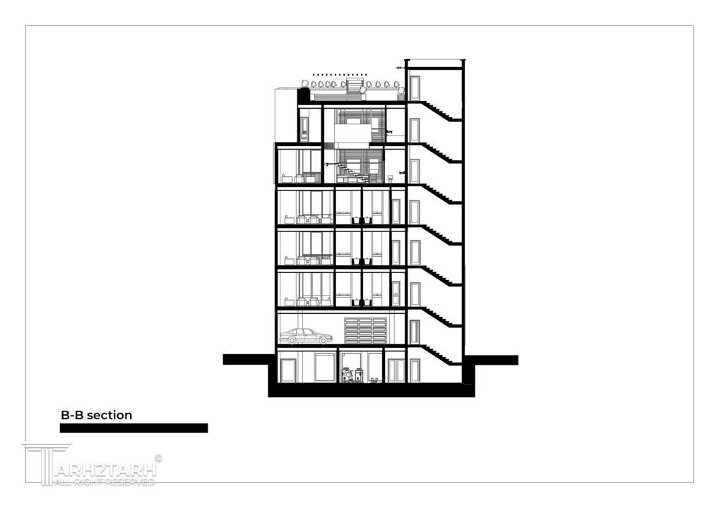
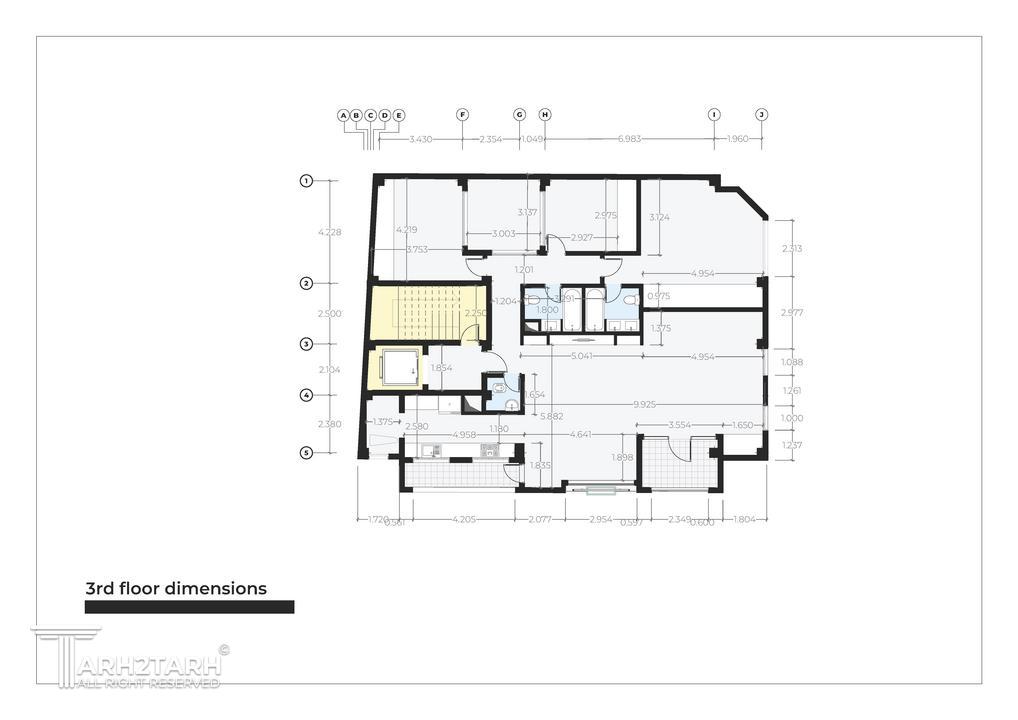
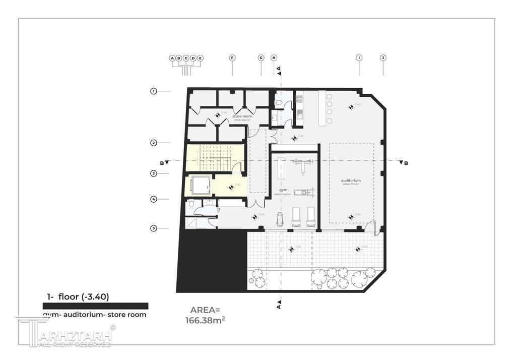
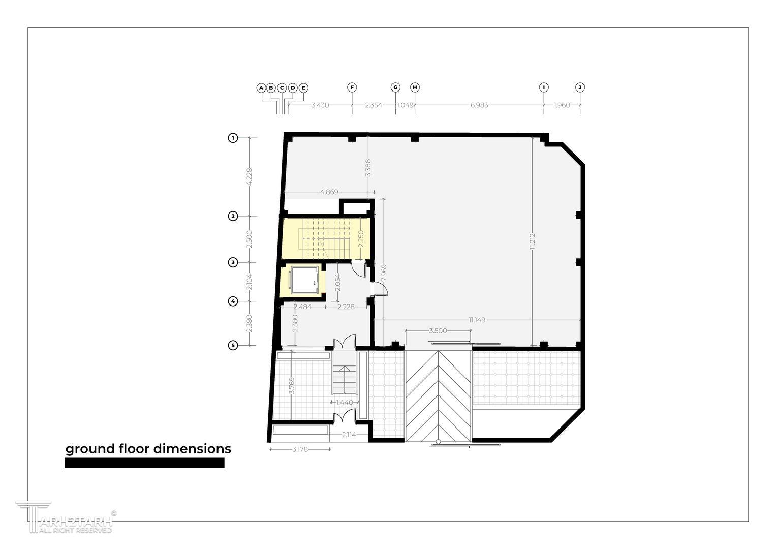
طراحی پلان (نقشه معماری) فاز 1
طراحی نما

موقعیت مکانی پروژه

پیشنهاد و بازخورد