مسابقه طراحی نما ، پلان پارکینگ و پلان طبقات اداری پطروس

0

اطلاعات پروژه

محسن یزدان پناه

نوع مسابقه: طراحی تجاری/ اداری
سال انجام پروژه : 1404
نقش: طراح
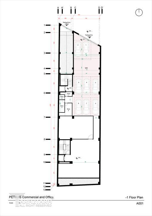
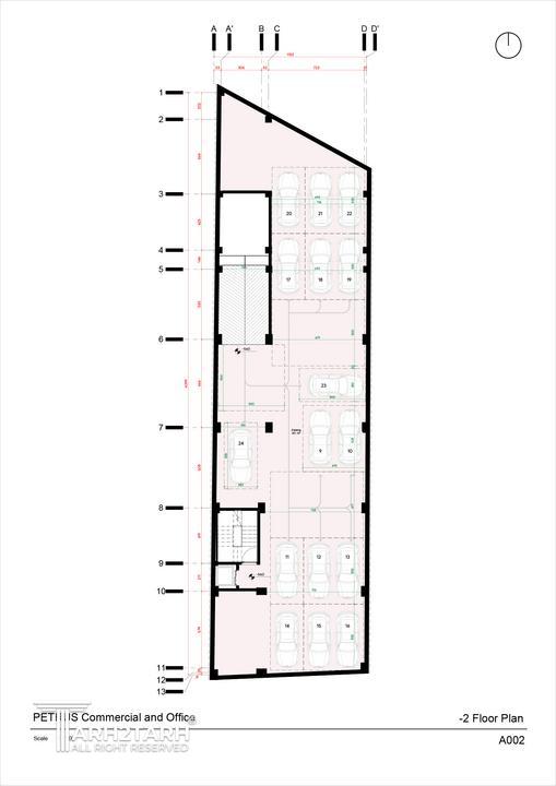
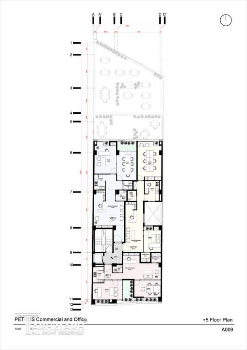
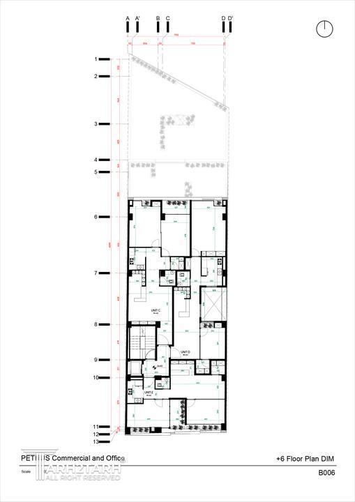
موقعیت : گرگان
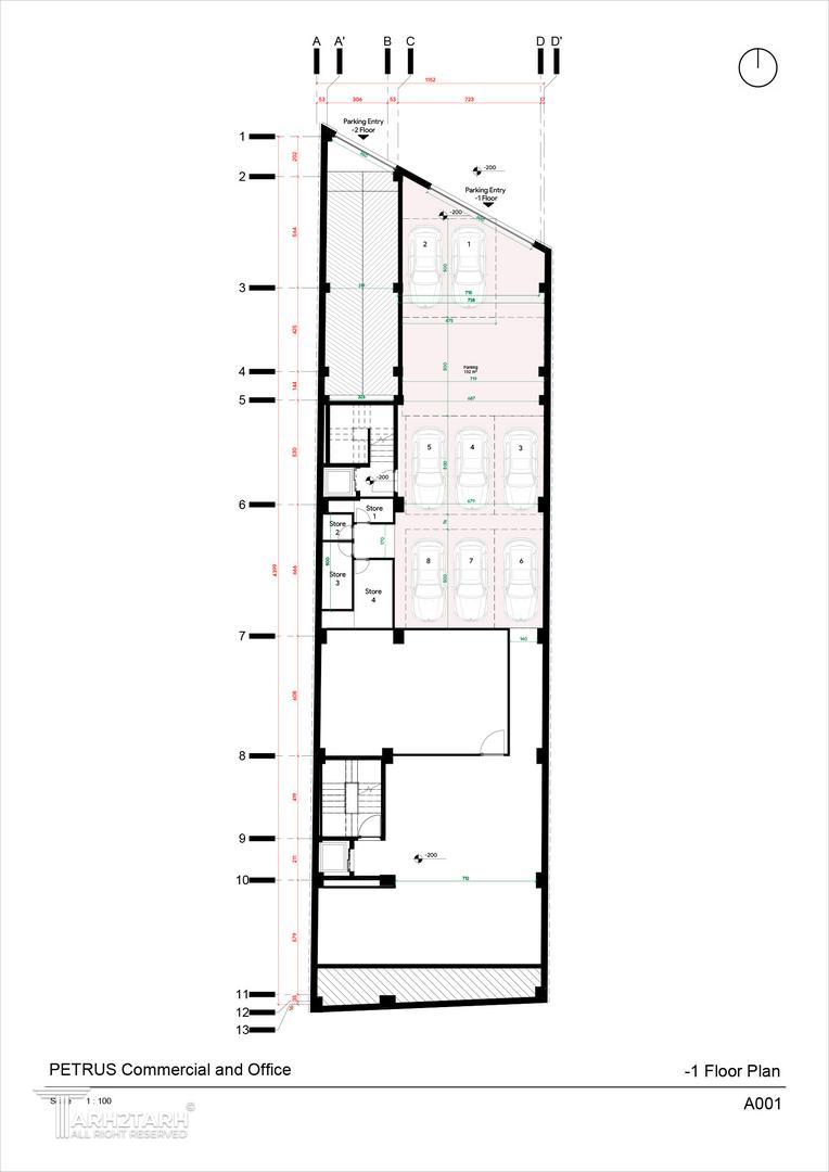
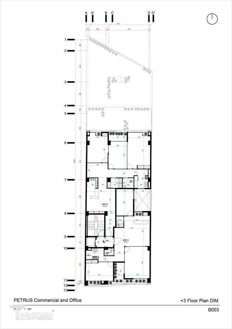
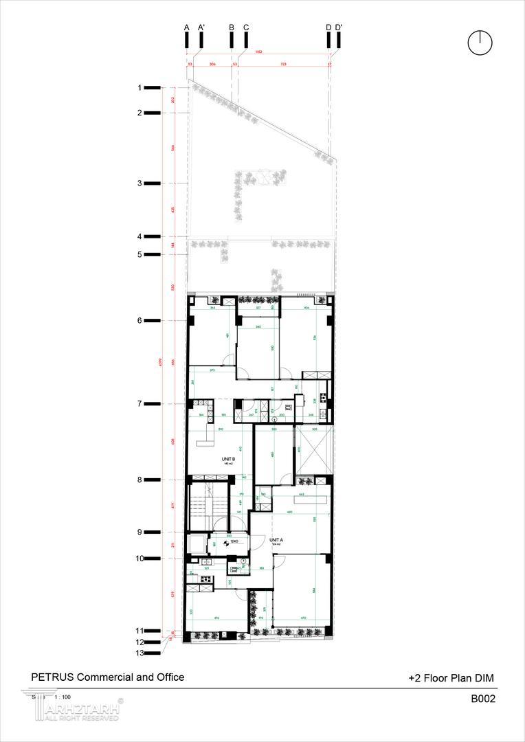
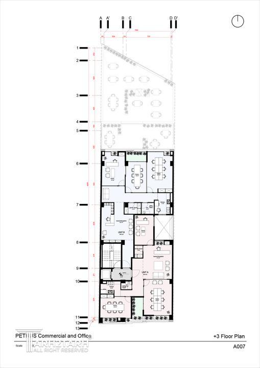
متراژ زیربنا : 3225
مساحت زمین : 495
کارفرما : علی یزدان پناه

خدمات ارائه شده توسط طراح

خدمات طراحی و کانسپت
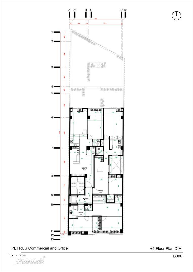
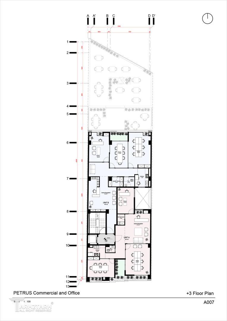
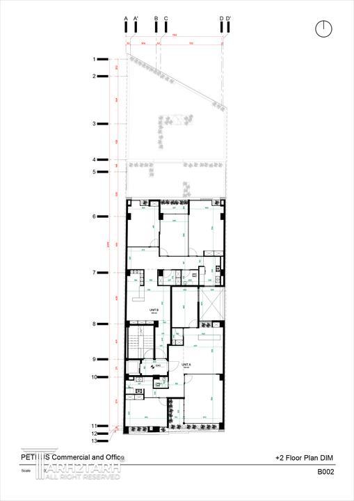
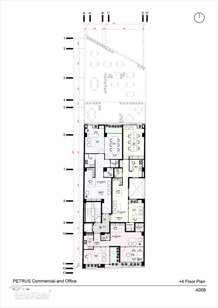
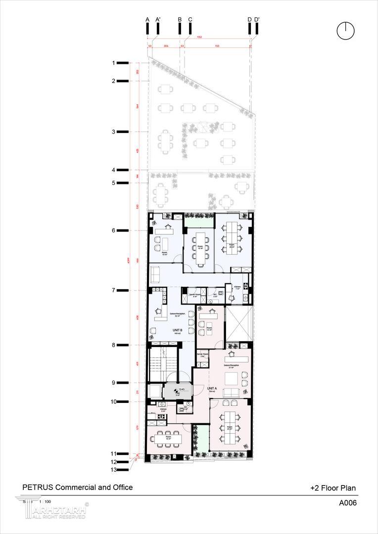
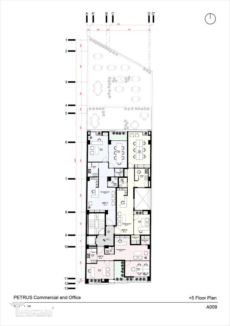
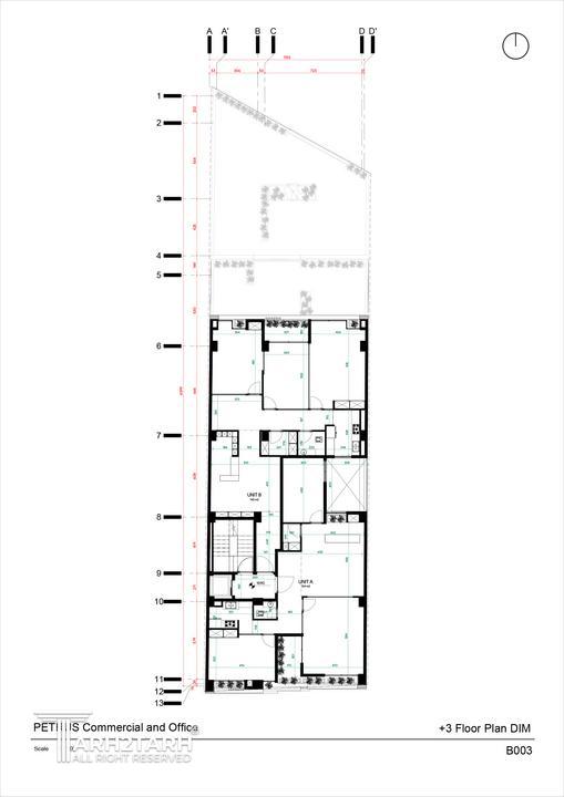
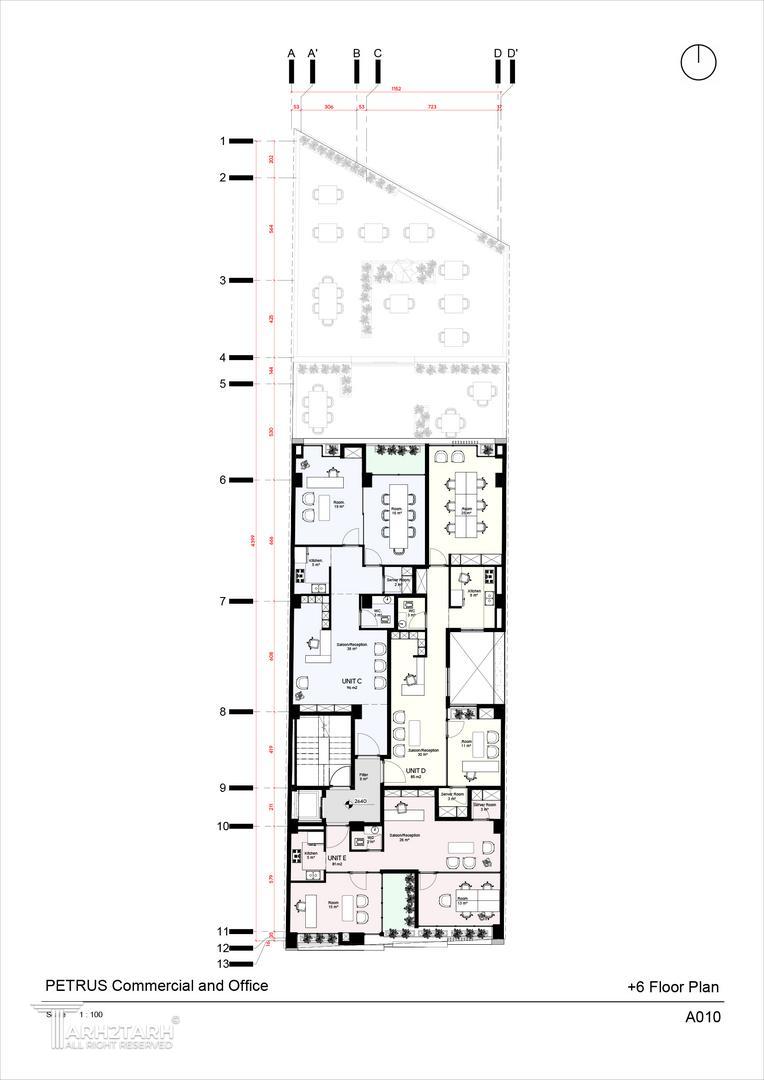
طراحی پلان (نقشه معماری) فاز 1
طراحی نما
طراحی منظر، فضای سبز، لند اسکیپ، روف گاردن و محوطه
طراحی نورپردازی

موقعیت مکانی پروژه

پیشنهاد و بازخورد