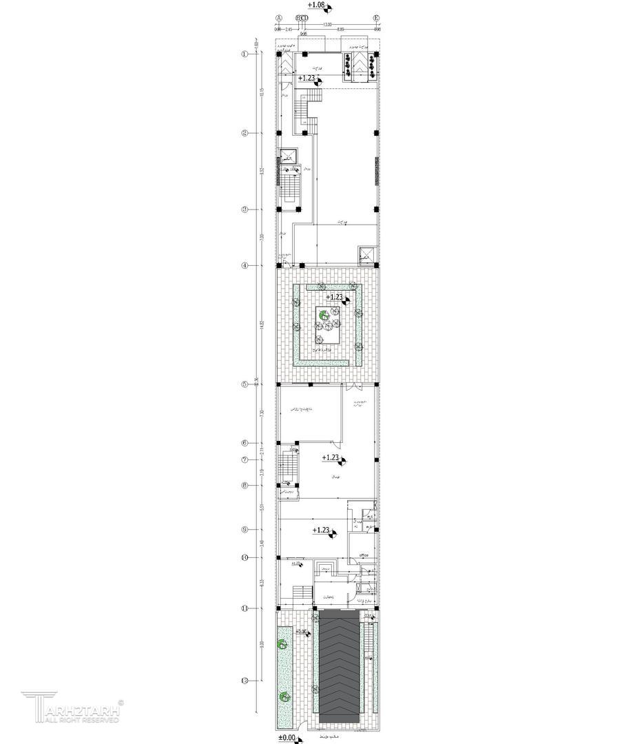
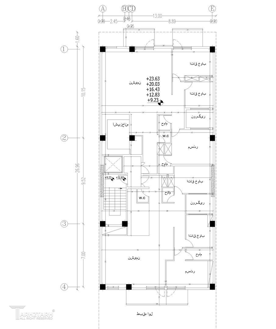
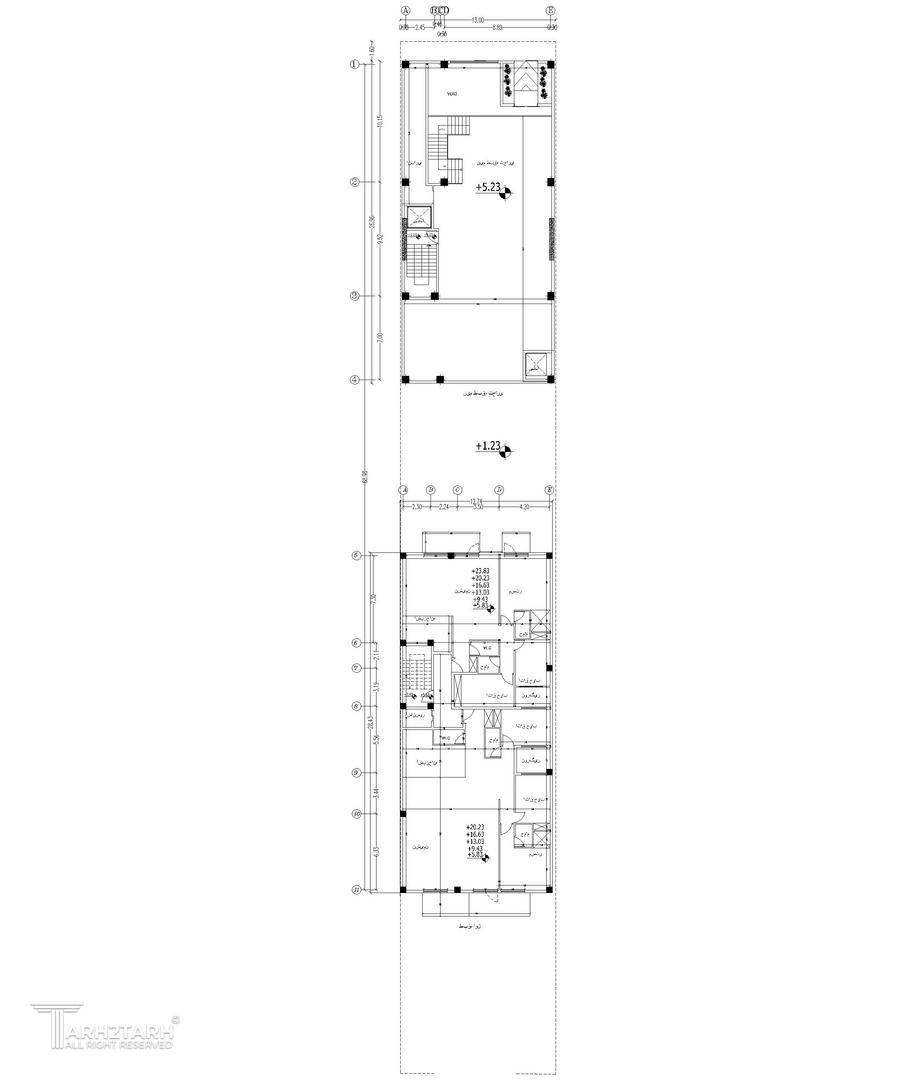
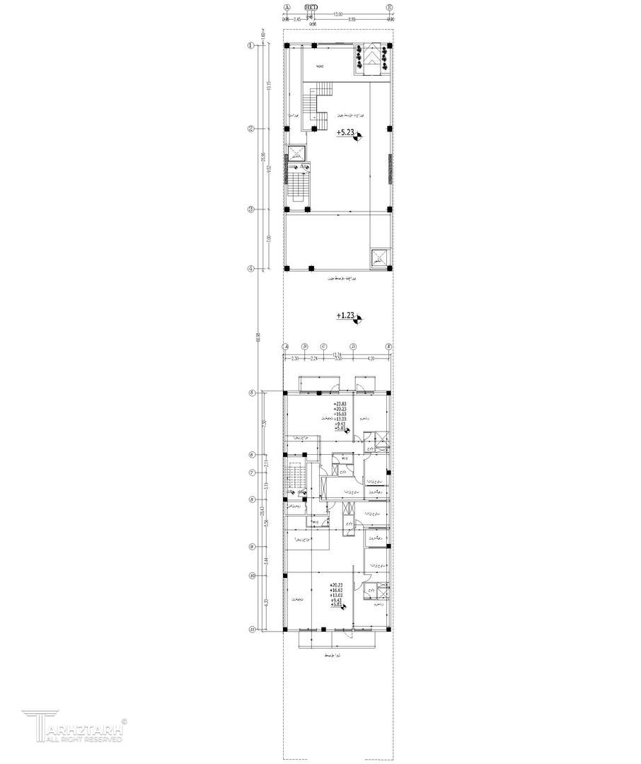
مسابقه طراحی پلان و نما ساختمان مسکونی رادو

0

اطلاعات پروژه

هادی کیان

نوع مسابقه: طراحی مسکونی
سال انجام پروژه : 1400
نقش: طراح
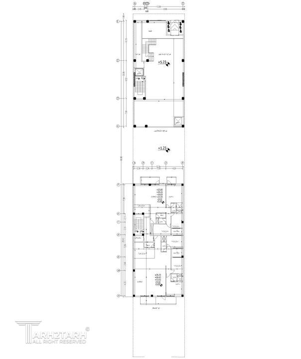
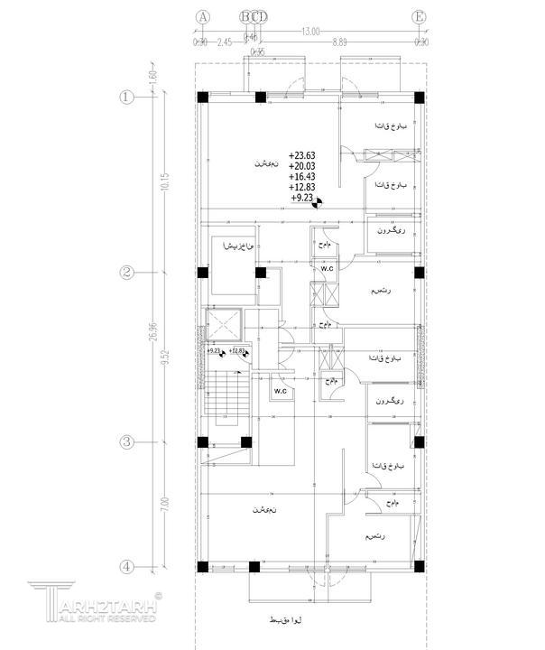
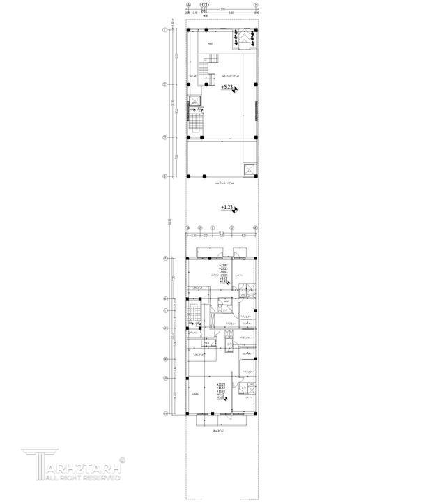
موقعیت : فردیس
متراژ زیربنا : 6700
مساحت زمین : 1120
کارفرما : حسین فاضل

موقعیت مکانی پروژه

پیشنهاد و بازخورد