نفر دوم مسابقه طراحی پلان و نما ساختمان مسکونی رادو

0

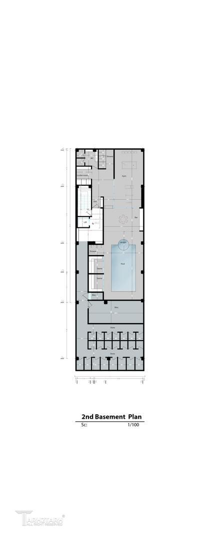
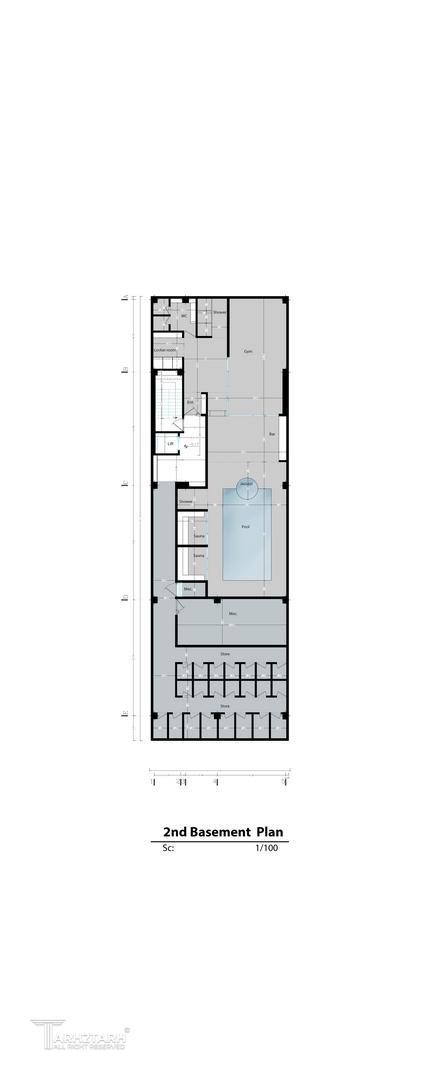
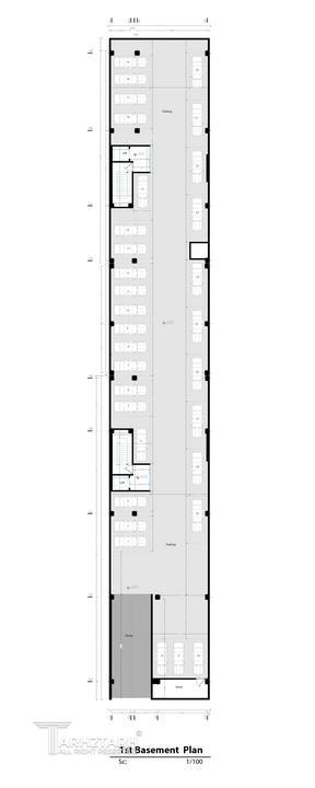
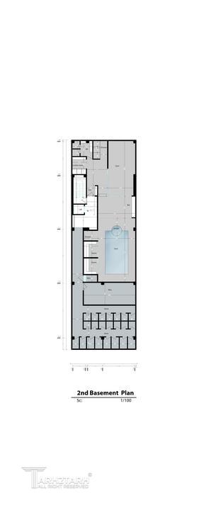
اطلاعات پروژه

گروه ساختمانی شهسان

نوع مسابقه: طراحی مسکونی
سال انجام پروژه : 1400
نقش: طراح
موقعیت : فردیس
متراژ زیربنا : 6700
مساحت زمین : 1120
کارفرما : حسین فاضل
پیشنهاد و بازخورد