مسابقه طراحی دفتر مرکزی راک سرامیک

0

اطلاعات پروژه

وحید رهبری مندولکانی

نوع مسابقه: طراحی تجاری/ اداری
سال انجام پروژه : 1401
نقش: طراح
موقعیت : تهران
متراژ زیربنا : 850
مساحت زمین : 300
کارفرما : Rak Ceramics

خدمات ارائه شده توسط طراح

خدمات طراحی و کانسپت
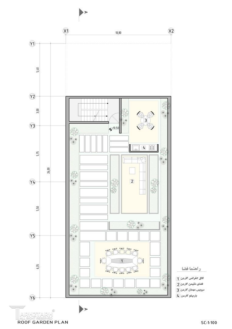
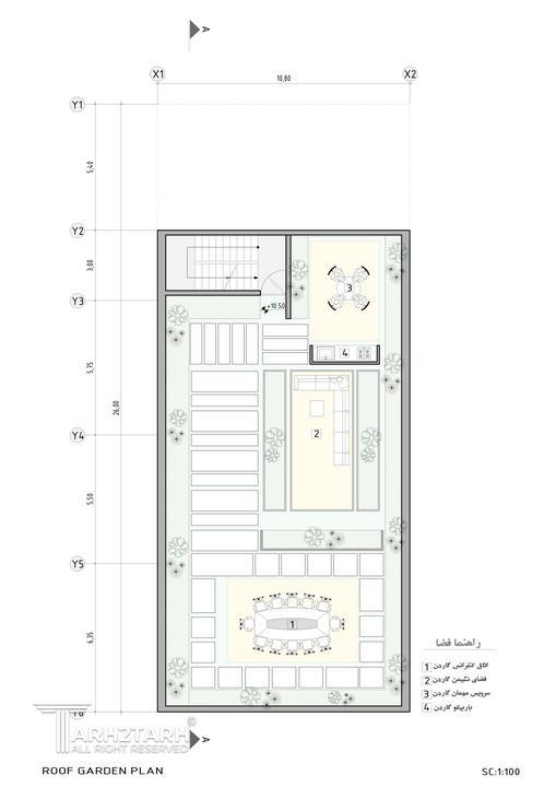
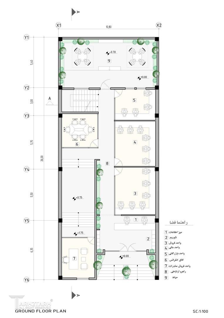
طراحی منظر، فضای سبز، لند اسکیپ، روف گاردن و محوطه
طراحی نورپردازی
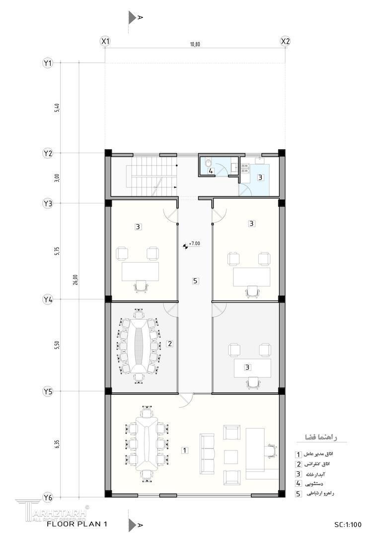
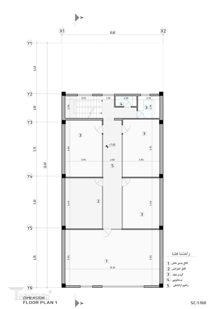
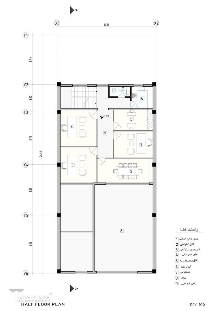
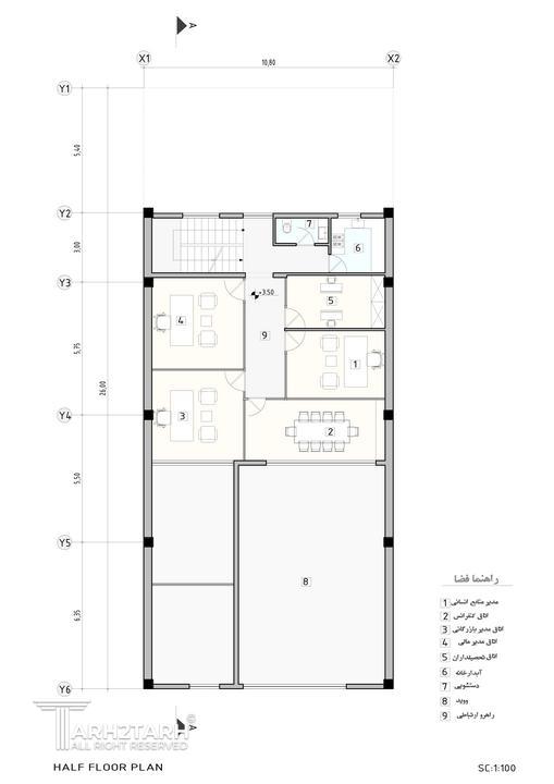
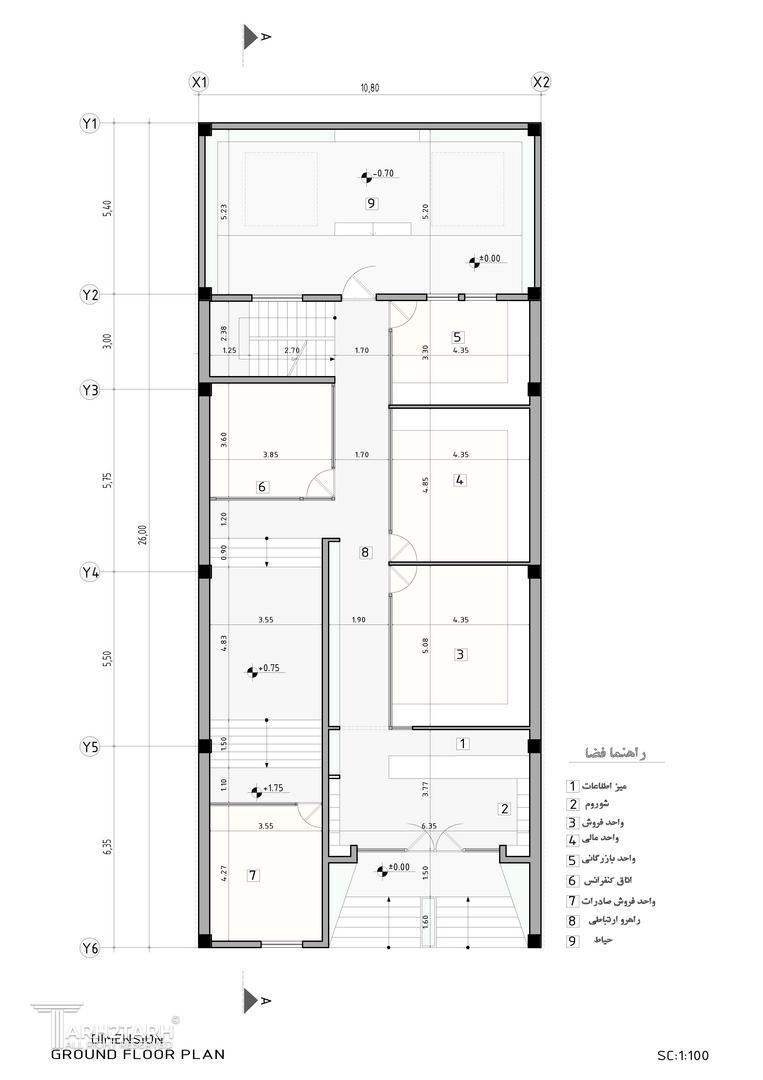
طراحی پلان (نقشه معماری) فاز 1
طراحی نما
طراحی داخلی

موقعیت مکانی پروژه

پیشنهاد و بازخورد