مسابقه طراحی پلان ساختمان رز (گلستان جنوبی)

0

اطلاعات پروژه

ARMINARMANSTUDIO

نوع مسابقه: طراحی مسکونی
سال انجام پروژه : 1403
نقش: طراح
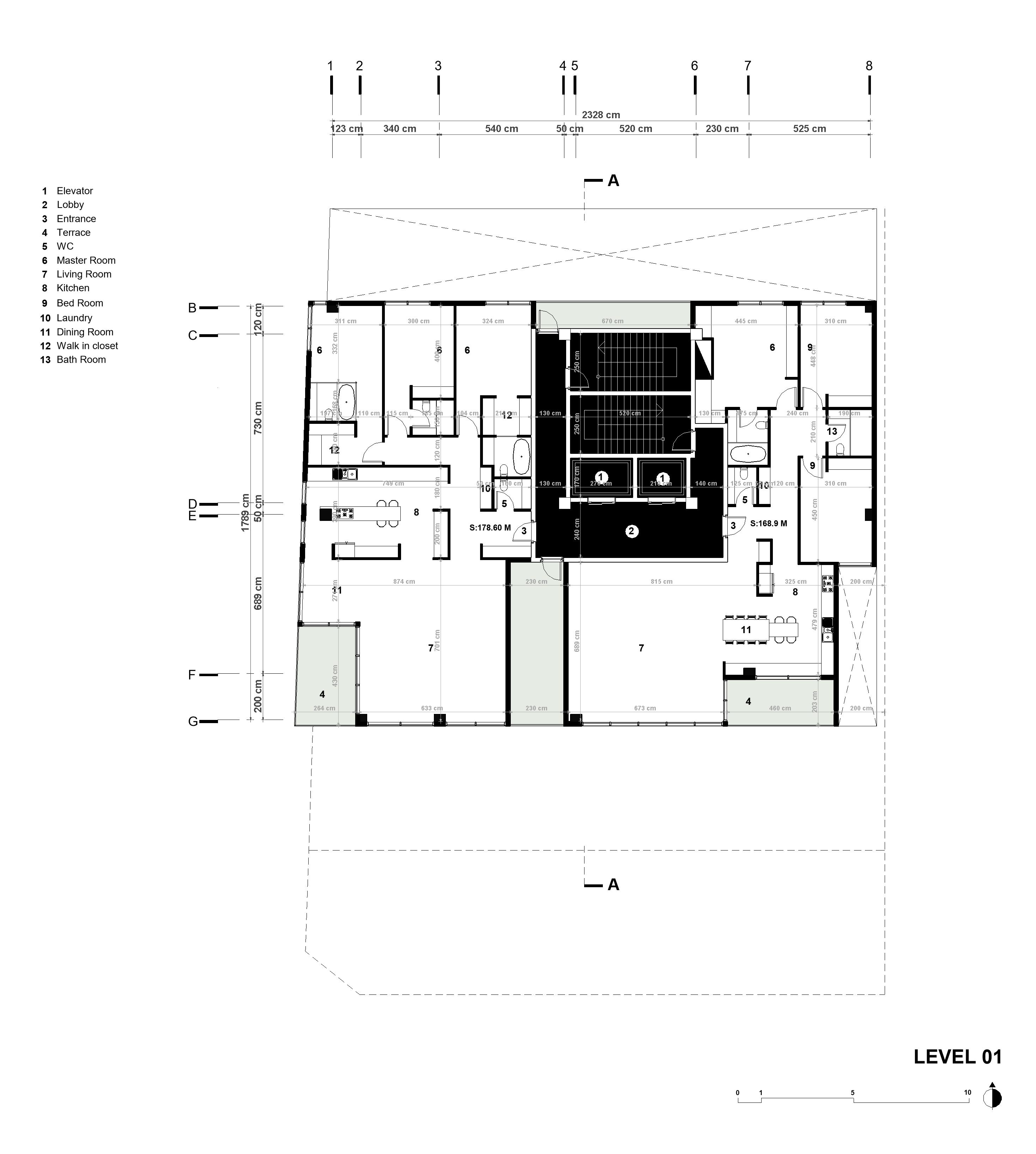
موقعیت : تهران
متراژ زیربنا : 6200
مساحت زمین : 843.41
کارفرما : حامد شیدا

خدمات ارائه شده توسط طراح

خدمات طراحی و کانسپت
طراحی پلان (نقشه معماری) فاز 1

موقعیت مکانی پروژه

پیشنهاد و بازخورد