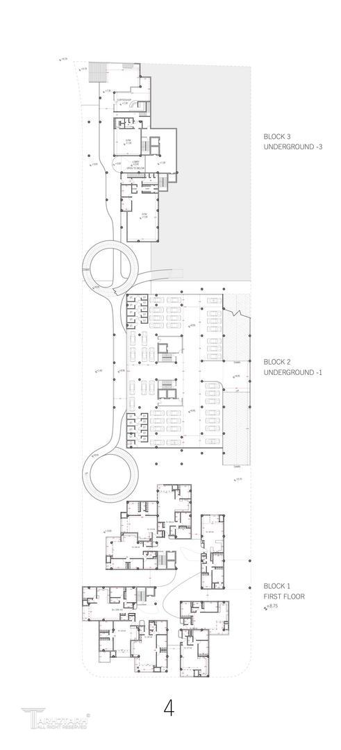
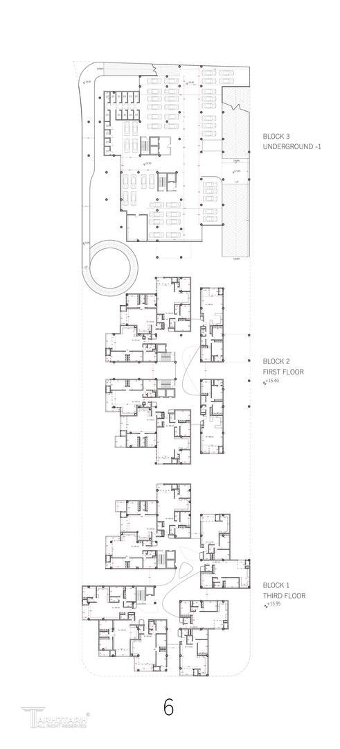
مسابقه طراحی مجتمع مسکونی رویال

0

اطلاعات پروژه

حسین حاجیان

نوع مسابقه: طراحی مسکونی
سال انجام پروژه : 1401
نقش: طراح
موقعیت : رودهن
متراژ زیربنا : 48000
مساحت زمین : 9000
کارفرما : احسان طالبی

خدمات ارائه شده توسط طراح

خدمات طراحی و کانسپت
طراحی منظر، فضای سبز، لند اسکیپ، روف گاردن و محوطه
طراحی پلان (نقشه معماری) فاز 1
طراحی نما

موقعیت مکانی پروژه

پیشنهاد و بازخورد