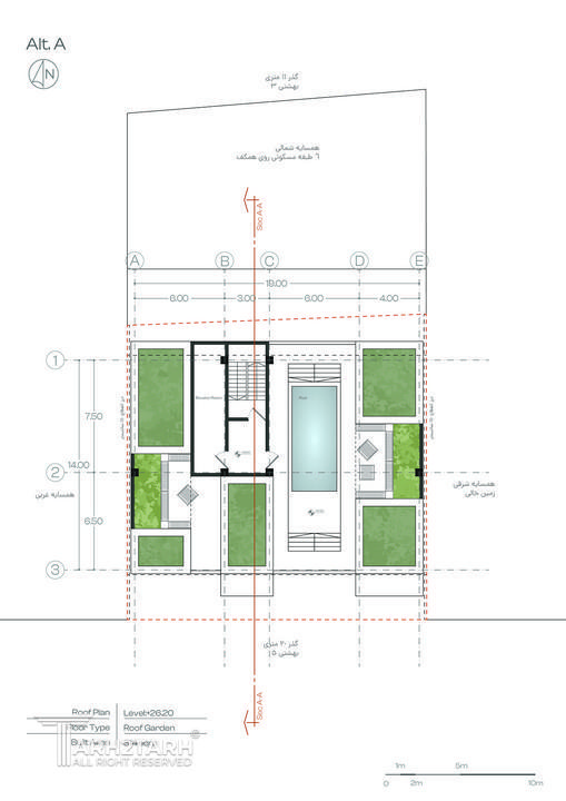
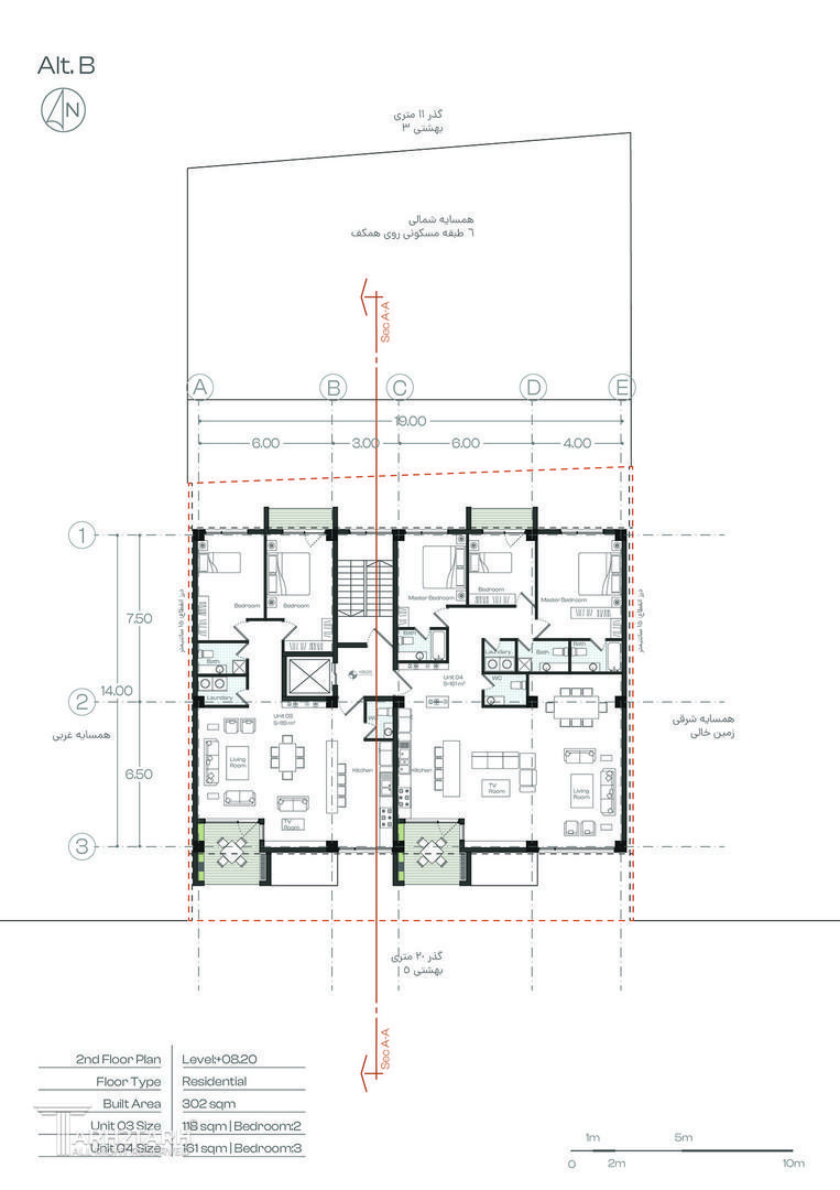
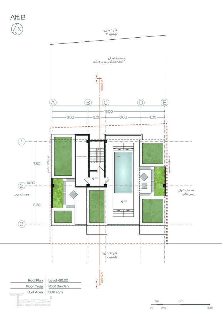
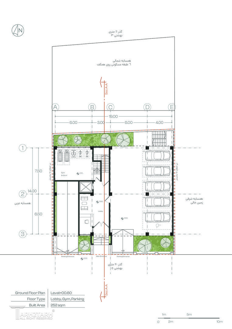
مسابقه طراحی ساختمان مسکونی صحرا (متل قو)

0

اطلاعات پروژه

دفتر طراحان کالبدی معاصر

نوع مسابقه: طراحی مسکونی
سال انجام پروژه : 1403
نقش: طراح
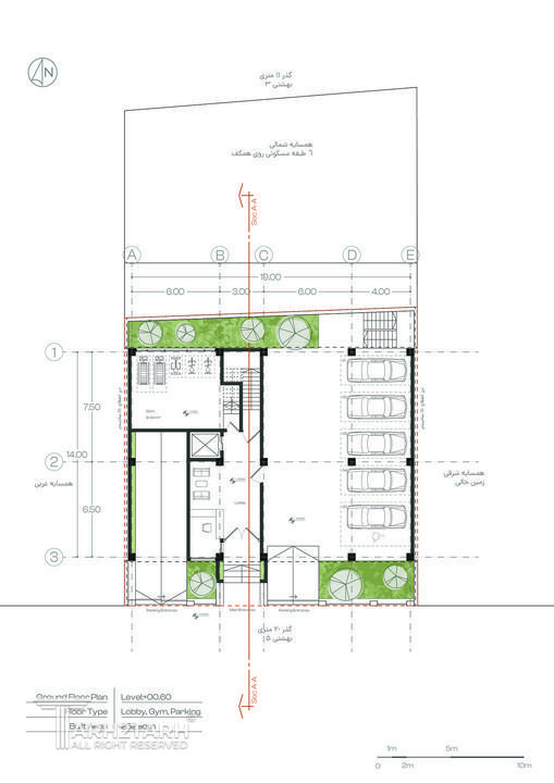
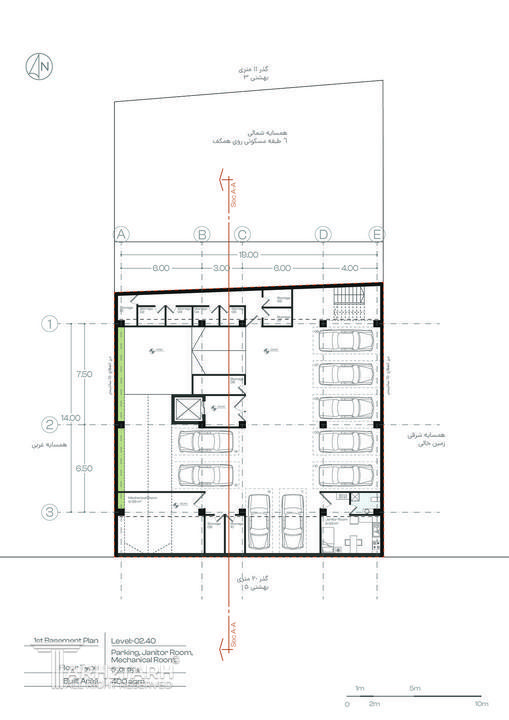
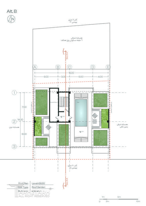
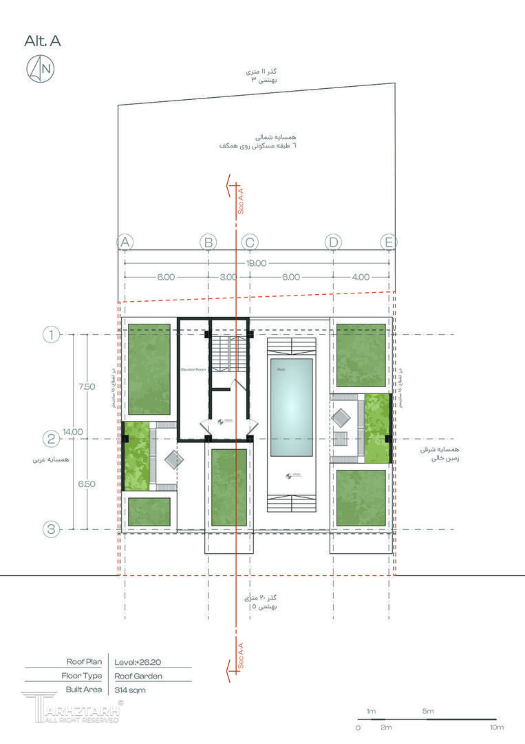
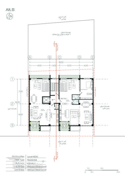
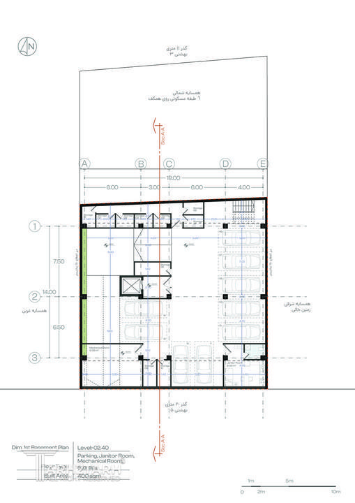
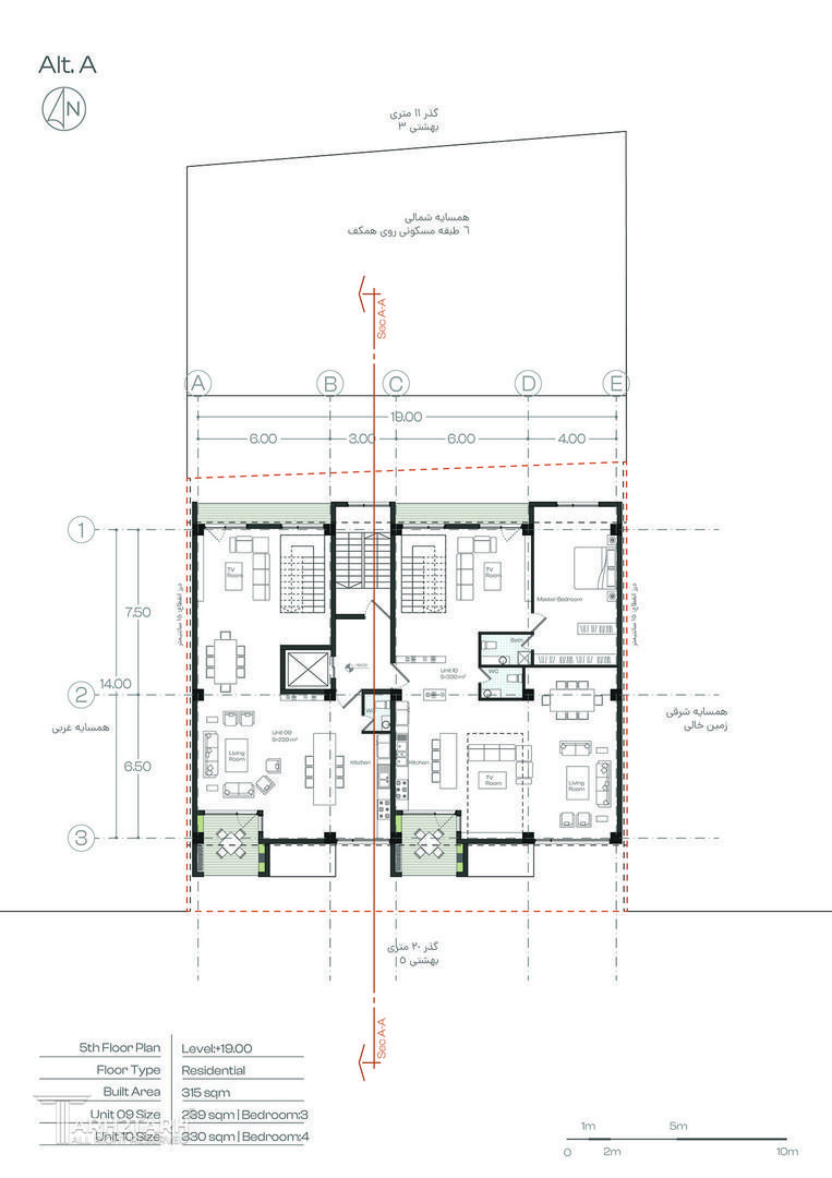
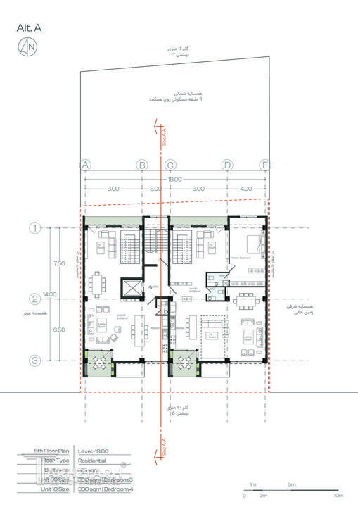
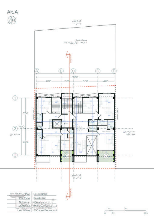
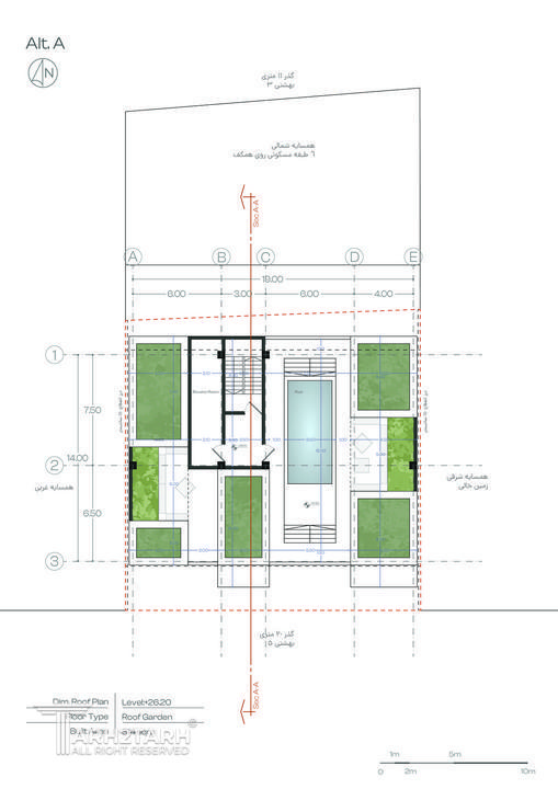
موقعیت : سلمان شهر
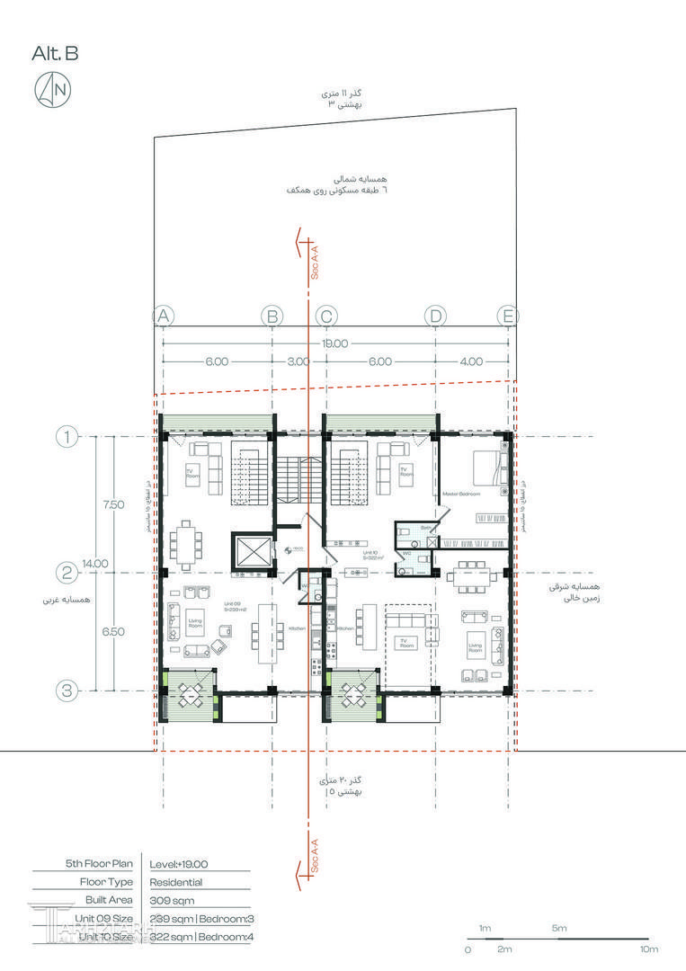
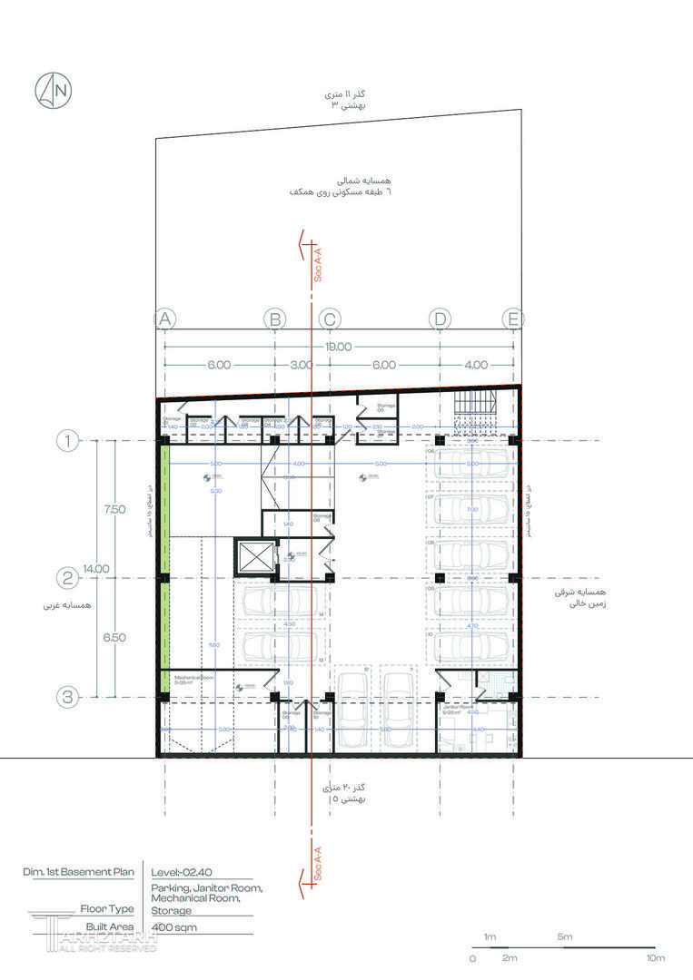
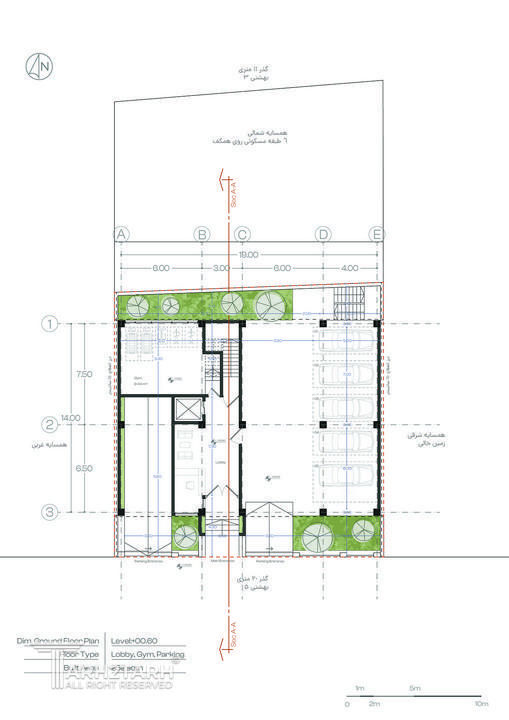
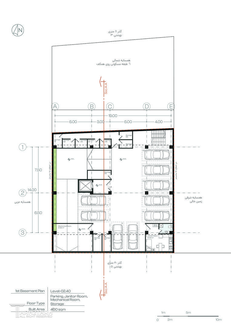
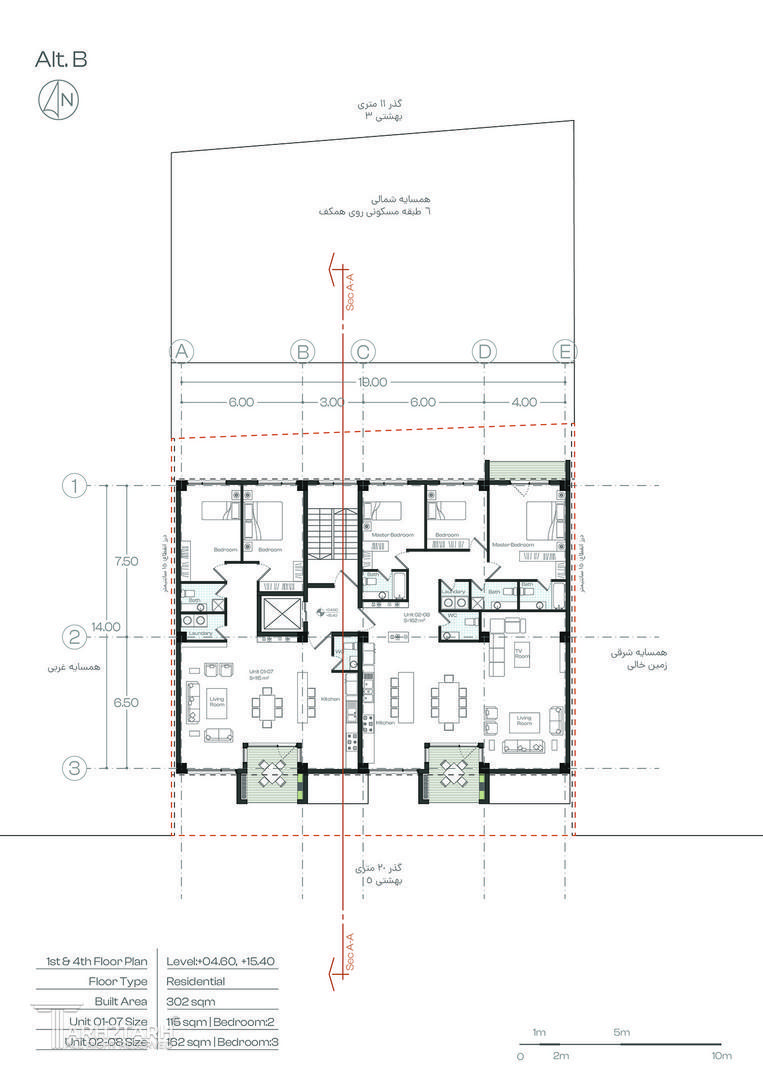
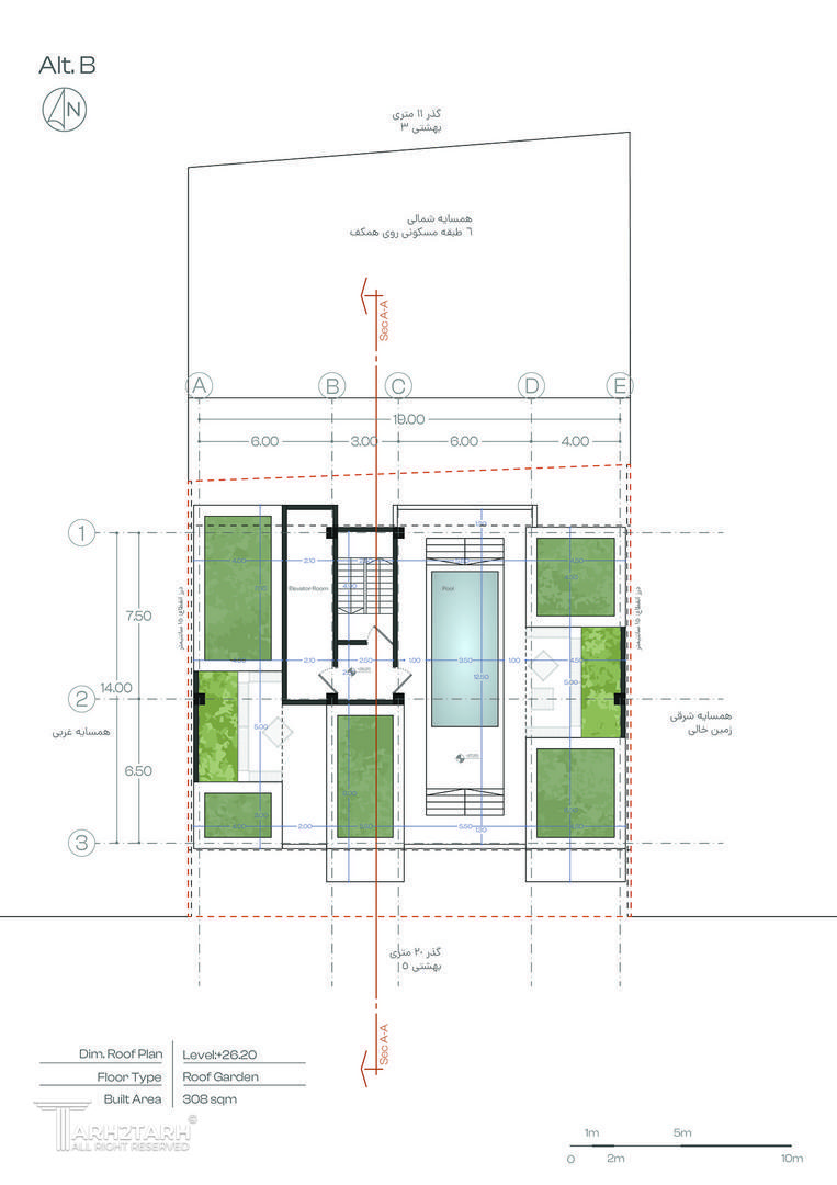
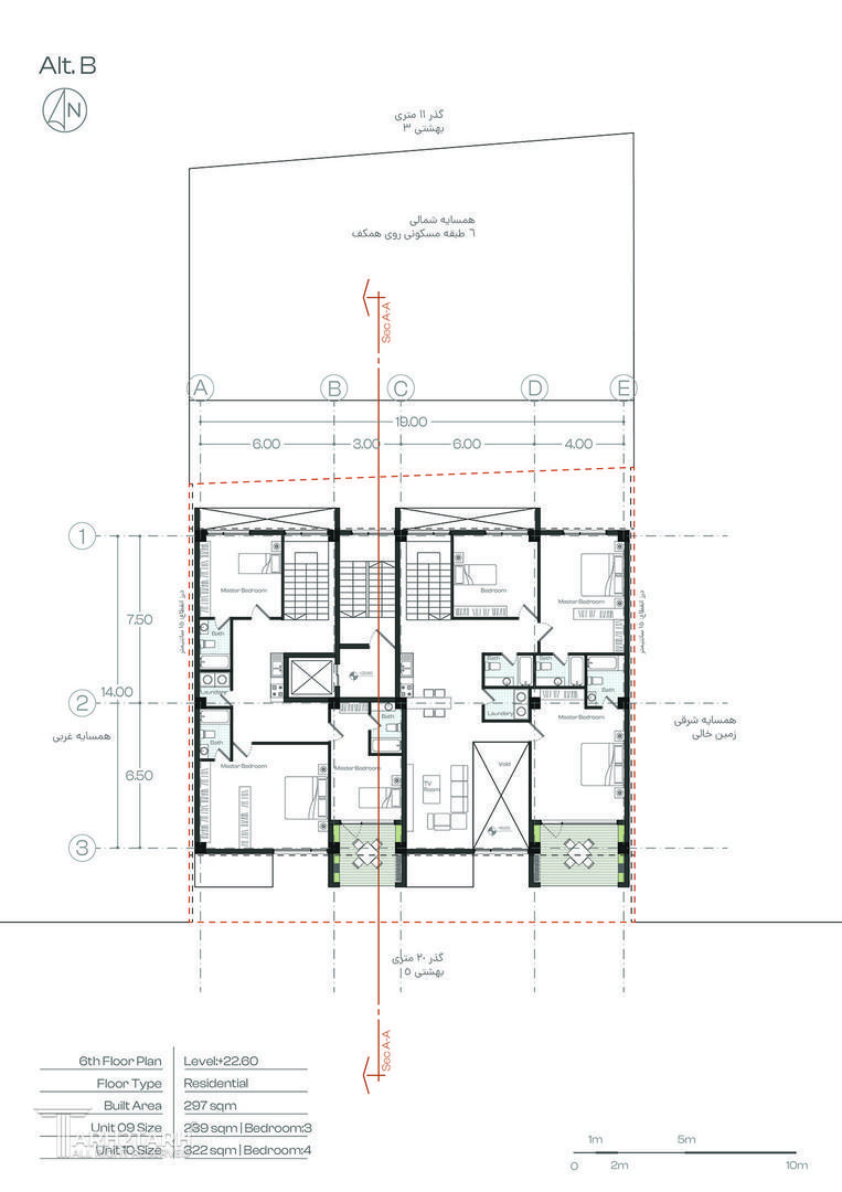
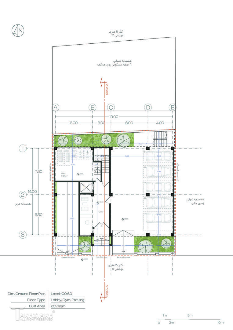
متراژ زیربنا : 2500
مساحت زمین : 400
کارفرما : طرح تو طرح (duplicate)

موقعیت مکانی پروژه

پیشنهاد و بازخورد