مسابقه طراحی مسکونی ساختمان سرو های فاخر

0

اطلاعات پروژه

HES OFFICE

نوع مسابقه: طراحی مسکونی
سال انجام پروژه : 1403
نقش: طراح
موقعیت : تهران
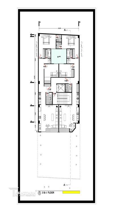
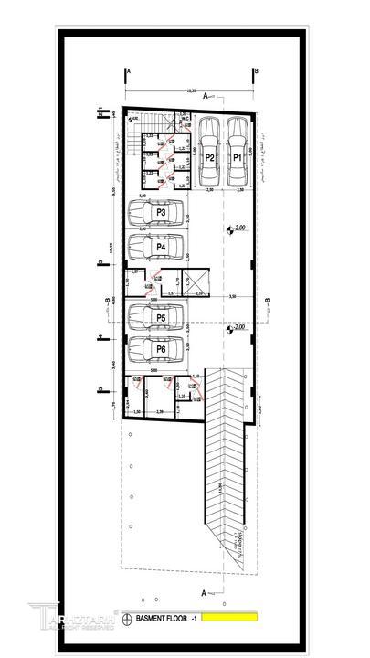
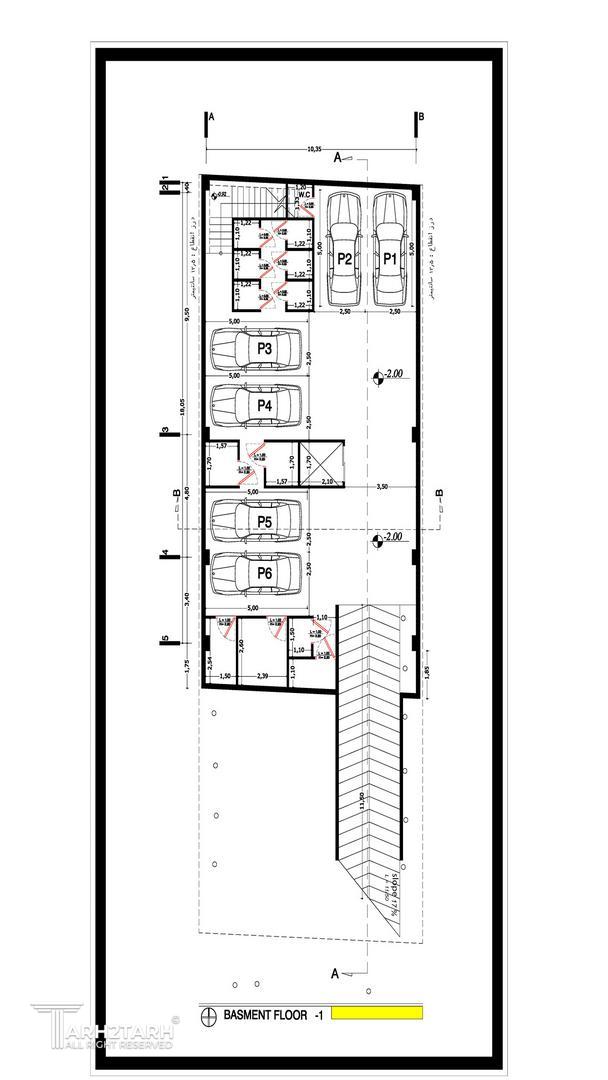
متراژ زیربنا : 1500
مساحت زمین : 354
کارفرما : رضا تهامی

خدمات ارائه شده توسط طراح

خدمات طراحی و کانسپت
طراحی منظر، فضای سبز، لند اسکیپ، روف گاردن و محوطه
طراحی نورپردازی
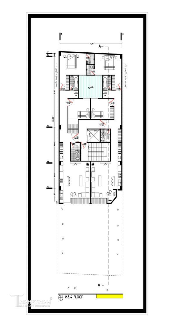
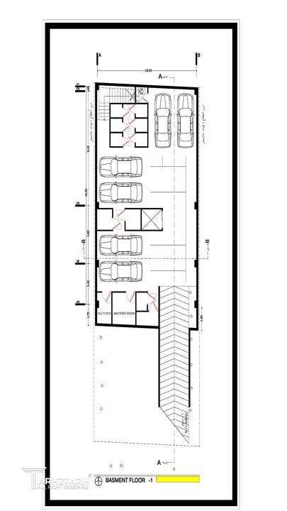
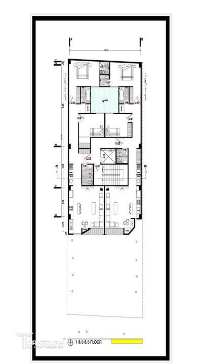
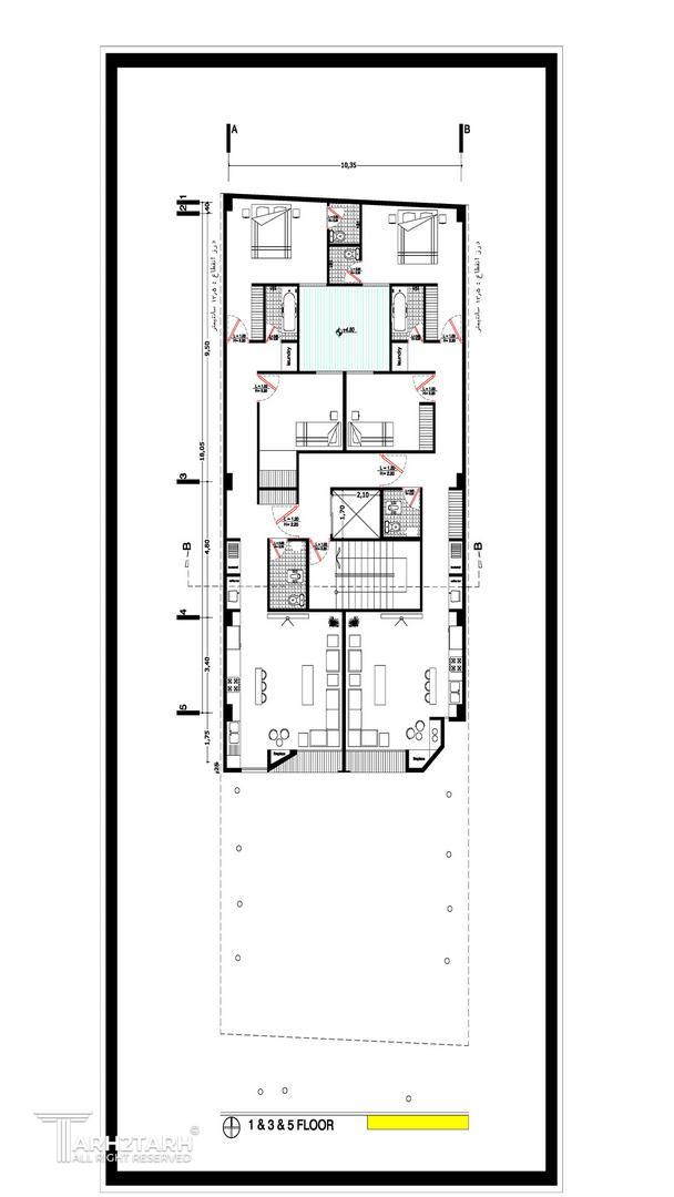
طراحی پلان (نقشه معماری) فاز 1
طراحی نما

موقعیت مکانی پروژه

پیشنهاد و بازخورد