نفر دوم مسابقه طراحی مسکونی ساختمان سرو های فاخر

0

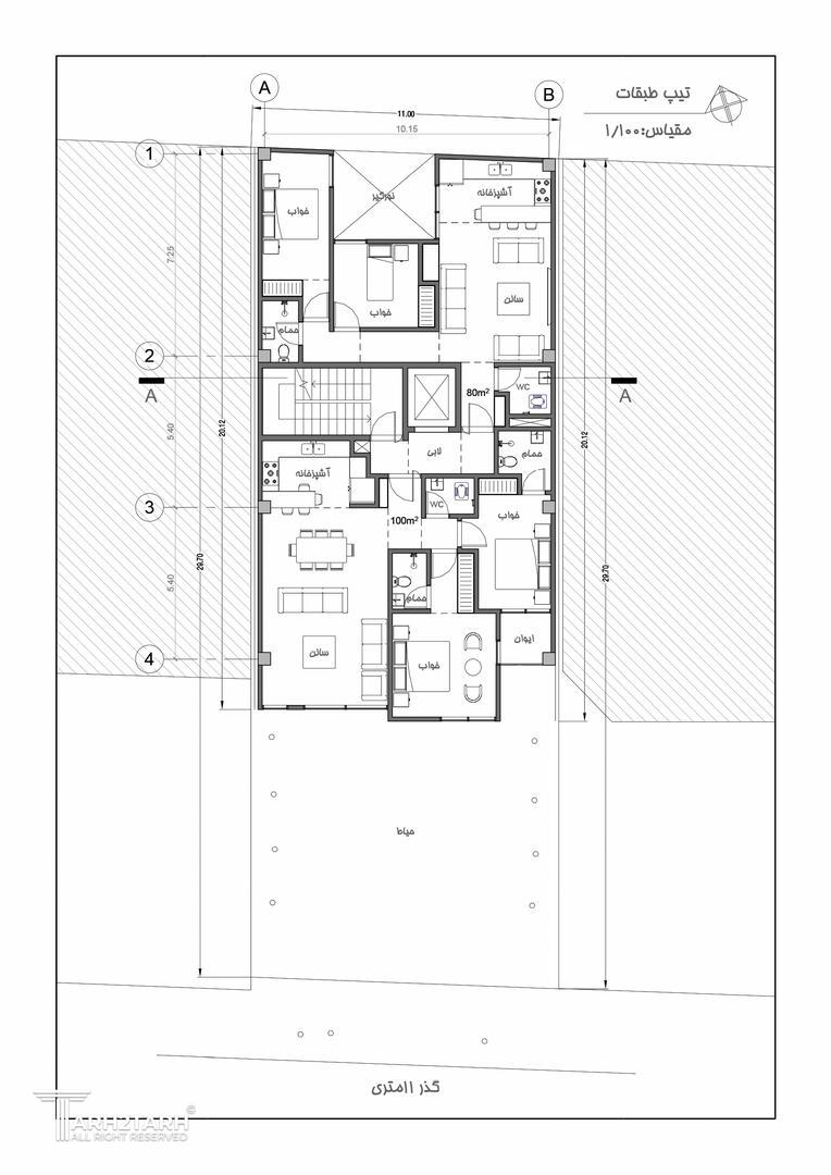
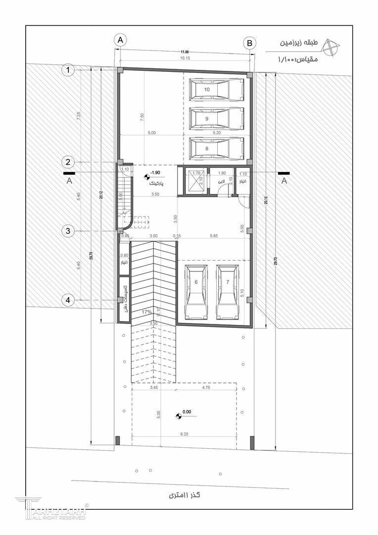
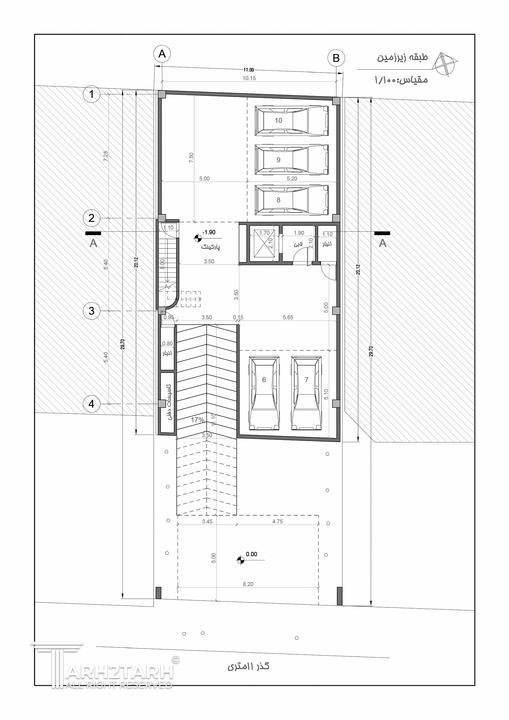
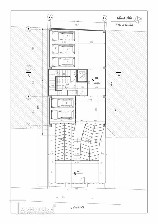
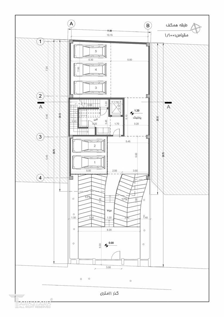
اطلاعات پروژه

معماران مرز سیال

نوع مسابقه: طراحی مسکونی
سال انجام پروژه : 1403
نقش: طراح
موقعیت : تهران
متراژ زیربنا : 1500
مساحت زمین : 354
کارفرما : رضا تهامی

خدمات ارائه شده توسط طراح

خدمات طراحی و کانسپت
طراحی پلان (نقشه معماری) فاز 1
طراحی نما
طراحی منظر، فضای سبز، لند اسکیپ، روف گاردن و محوطه
طراحی نورپردازی

موقعیت مکانی پروژه

پیشنهاد و بازخورد