مسابقه طراحی مسکونی ساختمان سلنا لواسان

0

اطلاعات پروژه

علیرضا حضرتی

نوع مسابقه: طراحی مسکونی
سال انجام پروژه : 1403
نقش: طراح
موقعیت : لواسان
متراژ زیربنا : 1800
مساحت زمین : 318
کارفرما : علی مبصر

خدمات ارائه شده توسط طراح

خدمات طراحی و کانسپت
طراحی منظر، فضای سبز، لند اسکیپ، روف گاردن و محوطه
طراحی نورپردازی
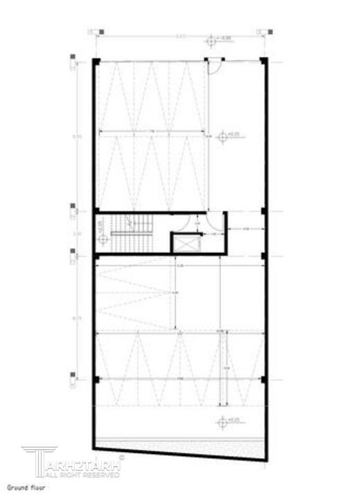
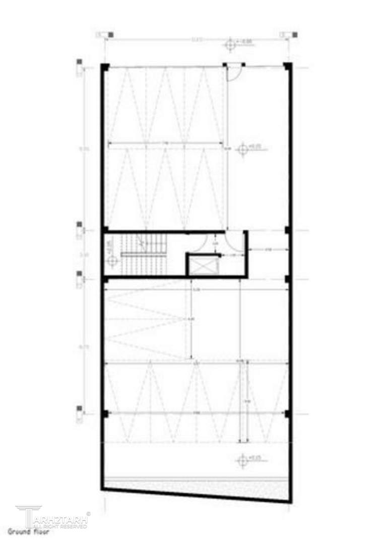
طراحی پلان (نقشه معماری) فاز 1
طراحی نما

موقعیت مکانی پروژه

پیشنهاد و بازخورد