مسابقه طراحی مجتمع مسکونی ساحلی سیسنگان

0

اطلاعات پروژه

داود علیزاده

نوع مسابقه: طراحی مسکونی
سال انجام پروژه : 1401
نقش: طراح
موقعیت : تهران
متراژ زیربنا : 25000
مساحت زمین : 6000
کارفرما : مسعود پورقدیری

خدمات ارائه شده توسط طراح

خدمات طراحی و کانسپت
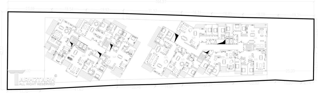
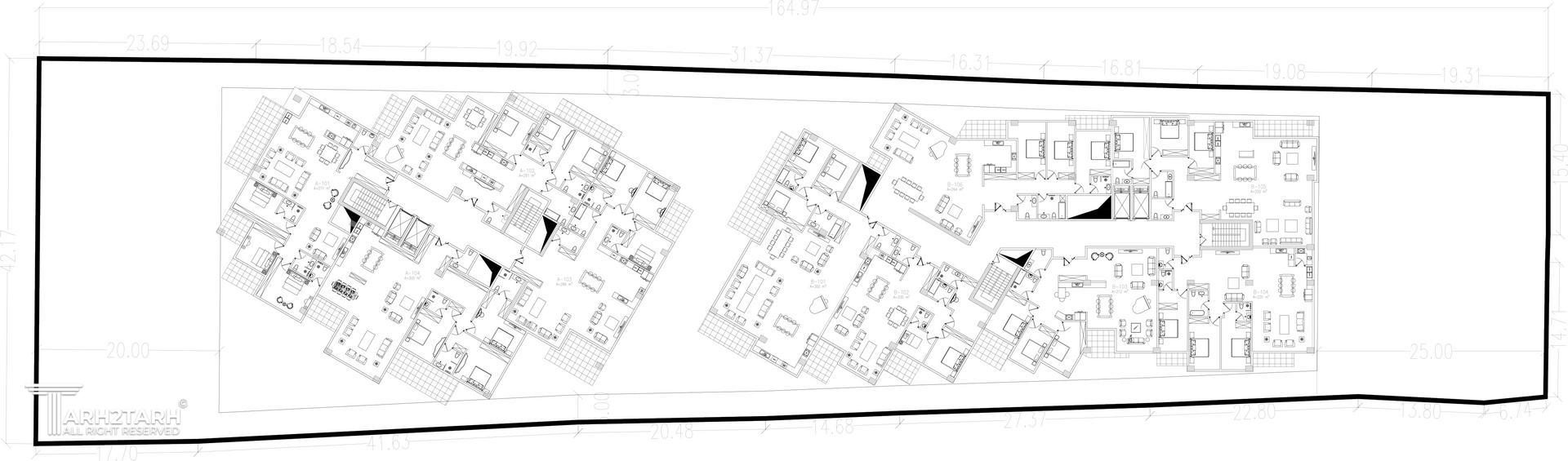
طراحی پلان (نقشه معماری) فاز 1
طراحی نما
طراحی نورپردازی

موقعیت مکانی پروژه

پیشنهاد و بازخورد