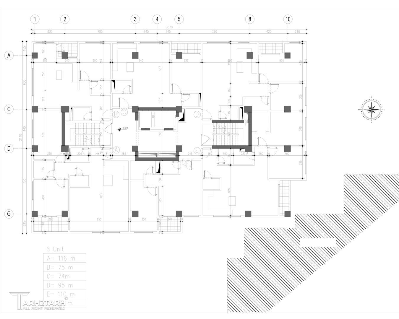
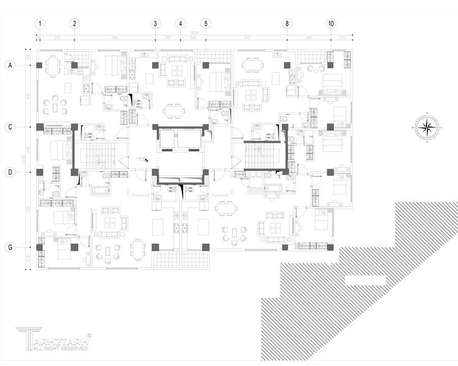
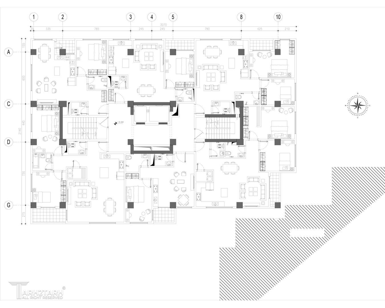
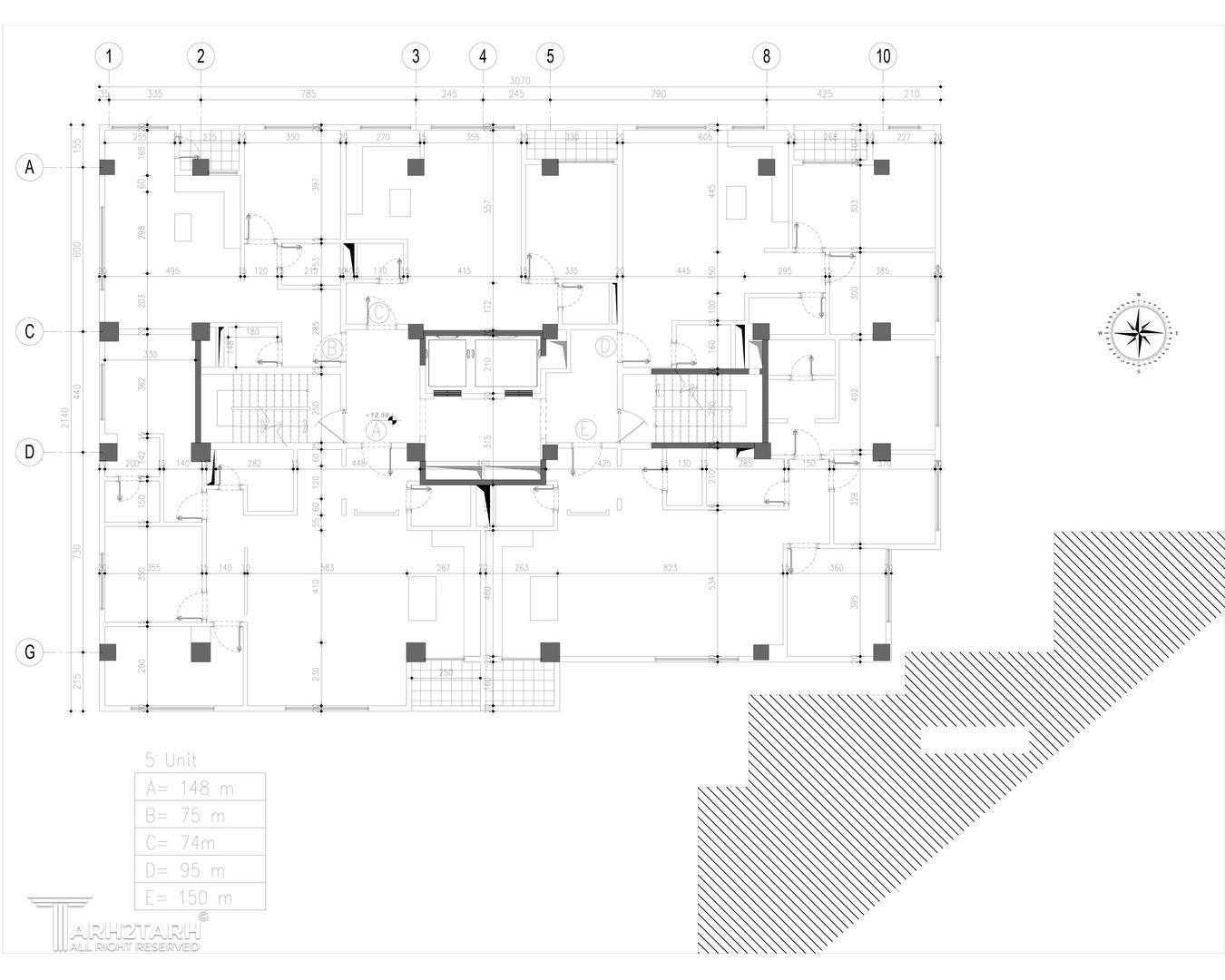
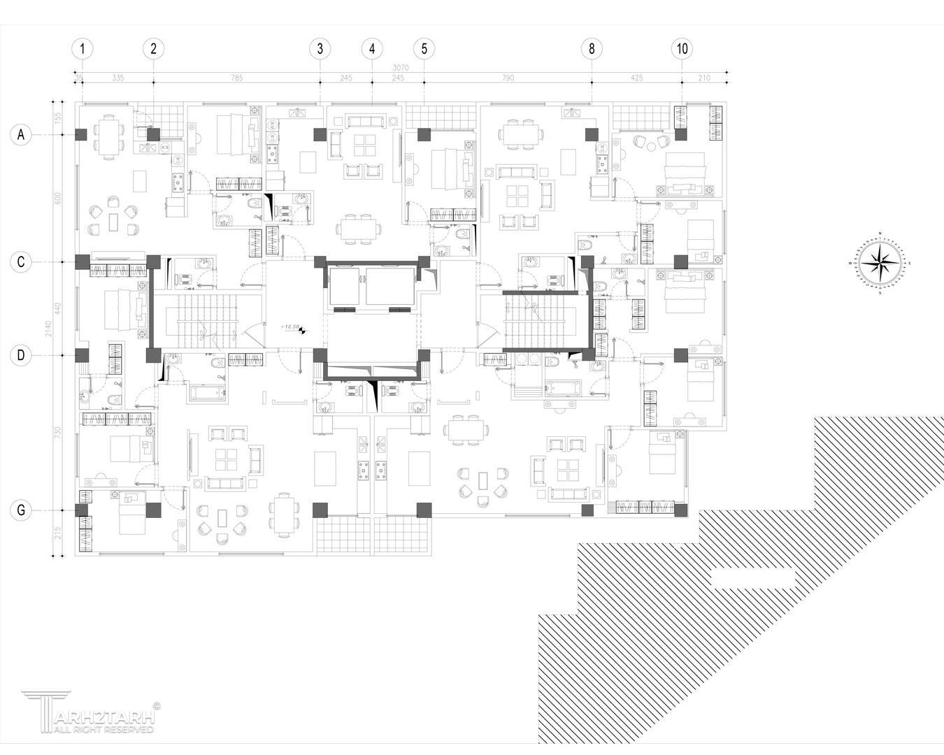
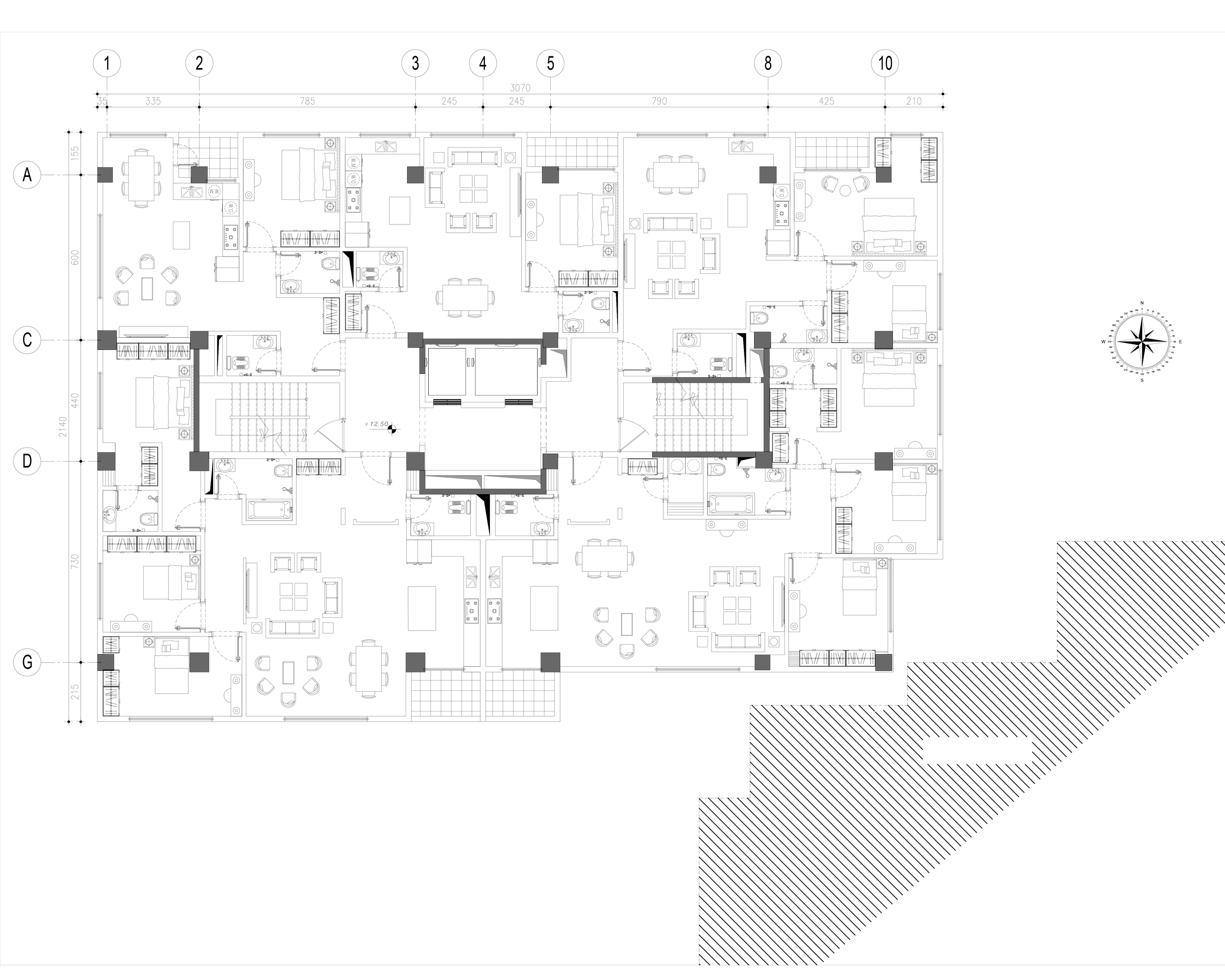
مسابقه طراحی پلان مجتمع مسکونی تهرانسر

0

اطلاعات پروژه

داود علیزاده

نوع مسابقه: طراحی مسکونی
سال انجام پروژه : 1401
نقش: طراح
موقعیت : تهران
متراژ زیربنا : 1248
مساحت زمین : 3000
کارفرما : حسین گندمی

موقعیت مکانی پروژه

پیشنهاد و بازخورد