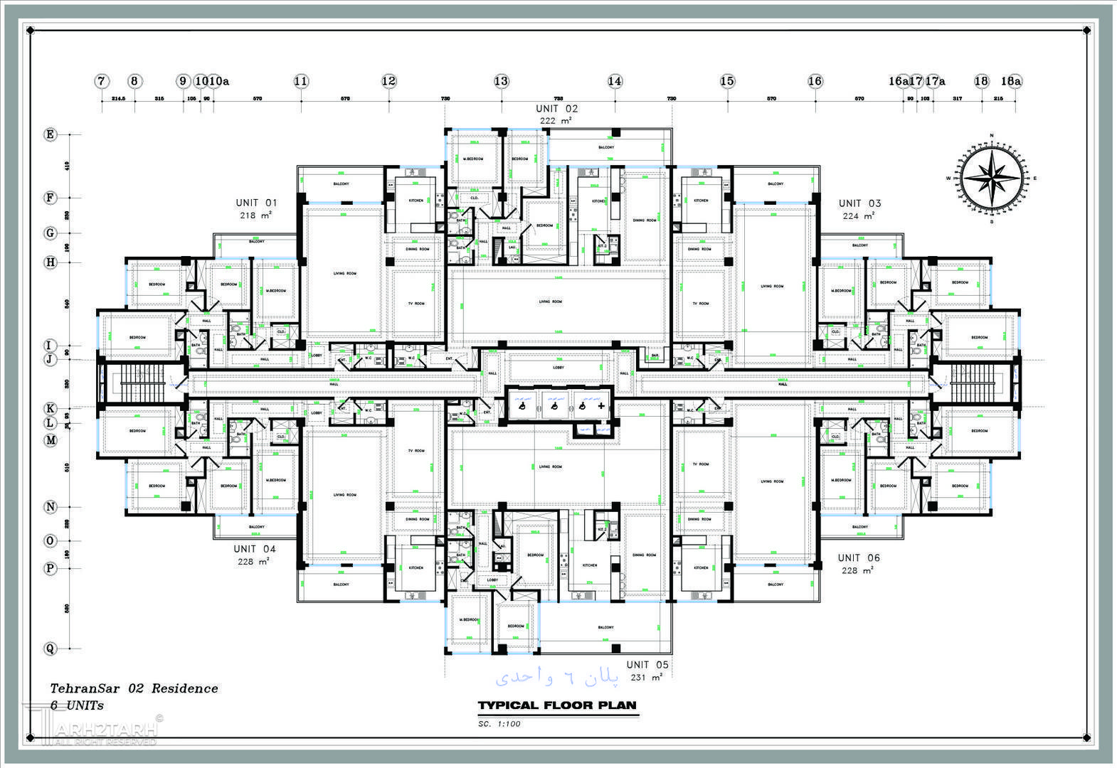
مسابقه طراحی پلان تهرانسر 2

0

اطلاعات پروژه

گروه مهندسی ای آر

نوع مسابقه: طراحی مسکونی
سال انجام پروژه : 1401
نقش: طراح
موقعیت : تهران
متراژ زیربنا : 1500
مساحت زمین : 3000
کارفرما : سعید جوانمردی

موقعیت مکانی پروژه

پیشنهاد و بازخورد