مسابقه طراحی سردرب پارک علم و فناوری سلامت دانشگاه علوم پزشکی تهران

0

اطلاعات پروژه

حامد صفری

نوع مسابقه: سایر
سال انجام پروژه : 1402
نقش: طراح
موقعیت : تهران
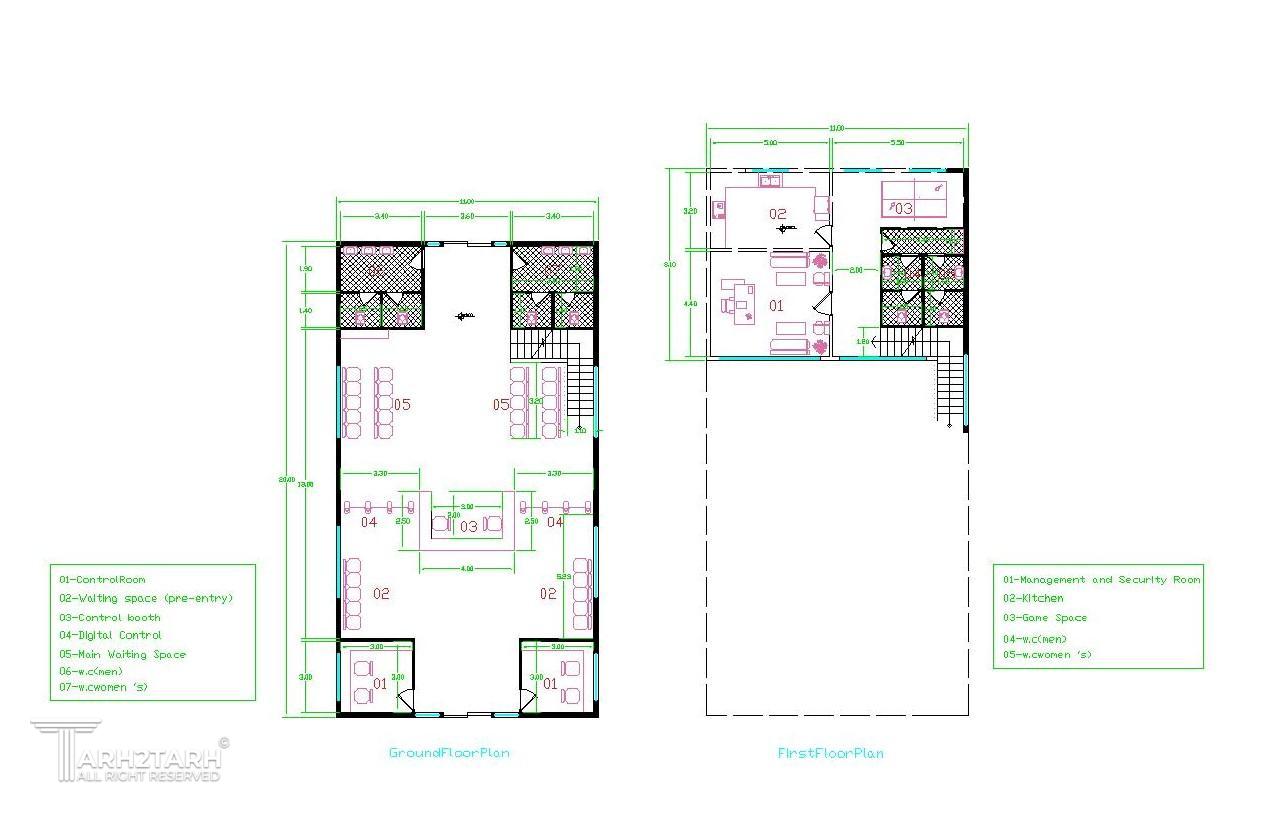
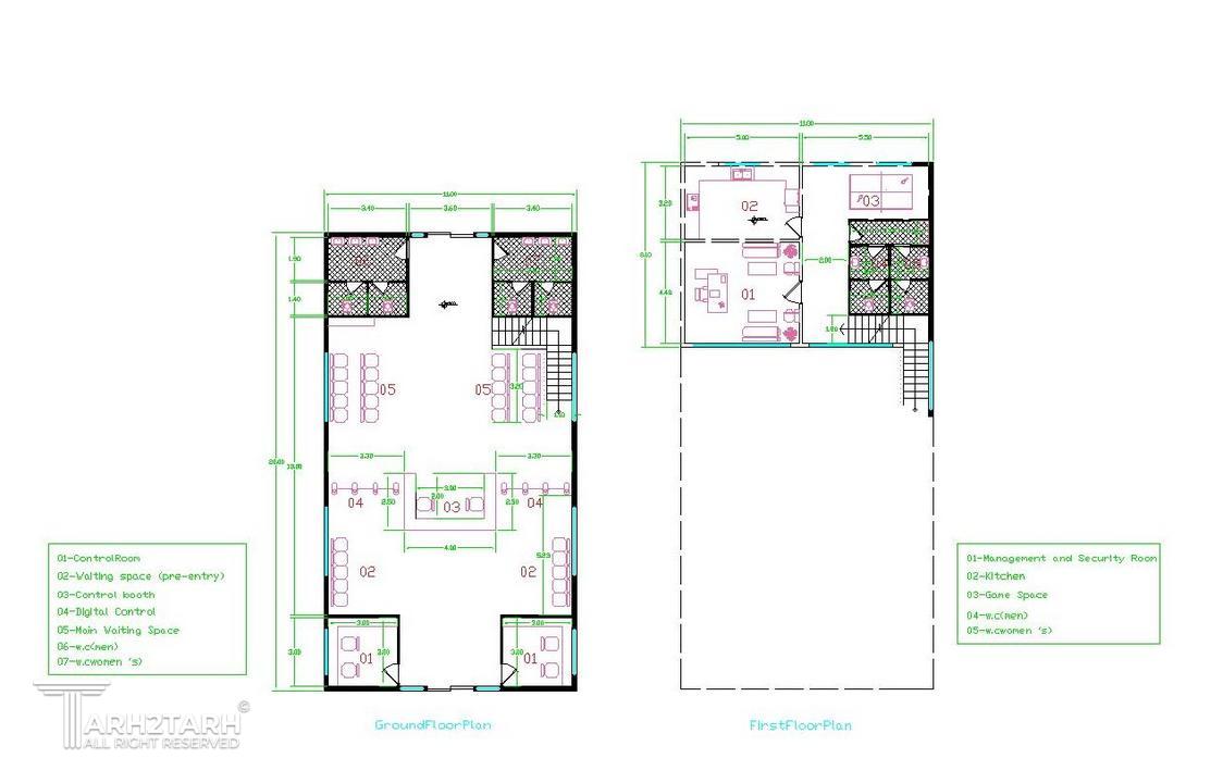
متراژ زیربنا : 150
کارفرما : علوم پزشکی تهران

موقعیت مکانی پروژه

پیشنهاد و بازخورد